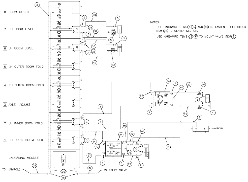
Запчасти Case IH SPX3310 (06-022) - BOOM HYDRAULIC GROUP - BEFORE SERIAL #20002 Hydraulic Plumbing

Схема запчастей Case IH SPX3310 - (06-022) - BOOM HYDRAULIC GROUP - BEFORE SERIAL #20002 Hydraulic Plumbing
10
1
8
24
37
5
5
11
6
32
22
5
22
12
3
32
26
7
11
39
26
9
1
38
3
37
1
5
14
24
34
41
22
3
35
22
12
1
40
3
18
36
3
3
40
27
15
20
FIT
1:1
100%

Артикул

Название

Примечание

Количество

1

BN21249

ADAPTER,3/4" - 16 ORFS x 7/16" - 20 JIC

6шт.

3

BN22160

ELBOW

90° 9/16-18 O-Ring X 7/16-20 JIC

10шт.

4

496-21034

WASHER,11/32" x 11/16" x 0.89", HDN

4шт.

5

BN51589

FITTING

6MB-4MJ

4шт.

6

87269496

HOSE

4 X 195

1шт.

7

87269480

HYDRAULIC HOSE,6.35mm ID x 4978.4mm L

4 X 196

1шт.

8

86986494

HYDRAULIC VALVE

Control 8 Bank CR

1шт.

See Fig. 06-031

1шт.

9

BN315697

HOSE ASSY.

8 X 190"

1шт.

10

87272236

HOSE,6.35mm ID x 7391.4mm L

4 x 291"

1шт.

11

BN319640

RESTRICTOR VALVE

#4 JIC (.042)

2шт.

11

BN319640

RESTRICTOR VALVE

#4 JIC (.042)

4шт.

Indicates Old Part Number or Can Order Newer Part Number Listed above

1шт.

12

BN445005

ADAPTER

adapter-90 37 flr 08

2шт.

13

88346

BOLT,Hex, 5/16" - 18 x 2 1/2", Gr 5

4шт.

14

87269499

HYDRAULIC HOSE,12.7mm ID x 1676.4mm L

8 X 62

1шт.

15

BN53707

FITTING

FT, E, 90D, 3/4-16 JIC ML & FML

2шт.

18

87270153

HOSE

4 X 258

1шт.

19

280736

NUT,5/16"-18, GC

4шт.

20

BN60440

ADAPTER

STR "O" RING

2шт.

22

BN67538

HOSE ASSY.

1/4" ID X 24"

4шт.

24

BN322491

VALVE SECTION

DOUBLE RELIEF

2шт.

See Fig. 06-041

1шт.

26

BN55333

ADAPTER

4 JIC, SWIVEL, 90

2шт.

27

87269501

HOSE,6.35mm ID x 3429mm L

4 x 135"

1шт.

29

9707580

BOLT,Hex, 1/4" - 20 x 3/4", Gr 5, Full Thd

4шт.

30

BN50052

LOCK NUT,1/4"-20, USR, SS

4шт.

32

BN53528

SLEEVE,12.7mm ID x 1828.8mm L, SAE 100R2

1/2 X 72" 100 R2

2шт.

34

87269479

HOSE

4 X 135

1шт.

35

BN53594

FITTING

8MJ-8MB X 90

2шт.

36

BN53452

TEE

jic-3/4"-16, male-female

1шт.

37

87270151

CHECK VALVE,9/16" - 18 ORB x 9/16" - 18 JIC

.050

2шт.

38

BN319200

HOSE

4 X 182"

1шт.

39

87270173

HOSE

4 X 200

1шт.

40

87270621

ORIFICE

#4 JIC (.060)

2шт.

Выбрано товаров: 35