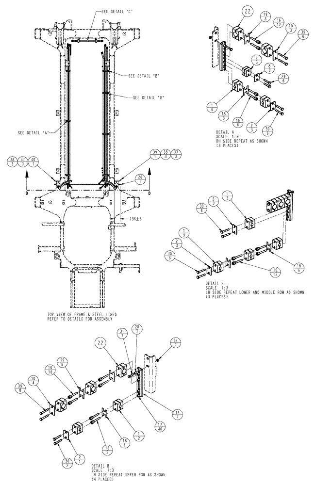
Запчасти Case IH SPX3320 (06-024[01]) - STEEL LINES GROUP Hydraulic Plumbing

Схема запчастей Case IH SPX3320 - (06-024[01]) - STEEL LINES GROUP Hydraulic Plumbing
2
38
30
29
30
1
34
16
10
38
16
16
7
39
1
2
2
22
30
31
37
2
26
19
14
8
30
22
18
1
35
1
18
40
19
35
20
10
37
18
17
16
16
FIT
1:1
100%

Артикул

Название

Примечание

Количество

1

BN307082

CLAMP

PAIR, 1.25 TUBE

2шт.

2

BN307083

PLATE

TOP, CLAMP, 1.25 TUBE

2шт.

3

86980369

BOLT,Hex, M6 x 80, Cl 8.8

M6 1 x 80, HH, 8.8, DOR

4шт.

4

353308

NUT,M6 x 1.0, Cl 8

15шт.

5

BN319659

TUBE

STL, RETURN MANIFOLD

1шт.

6

BN29785

PLATE

Cover, Single, 1/2" Tube

12шт.

7

BN29783

CLAMP

Single, 1/2" Tube

22шт.

8

86980366

BOLT,Hex, M6 x 50mm, Cl 8.8

M6 1 X 50, 8.8, DOR

4шт.

9

BN324491

TUBE

STEEL, HYD LINE

1шт.

10

BN313247

RAIL

C, STD DUTY

7шт.

11

BN316101

SPACER

C RAIL, HYD TUBE

7шт.

12

86980361

BOLT,Hex, M6 x 1 x 25mm, Cl 8.8, Full Thd

7шт.

13

BN307079

PLATE

TOP, CLAMP 3/8” TUBE

3шт.

14

87342607

BOLT

Hex, 1/4"-20 x 1 1/4", G5

6шт.

15

BN309602

BRAKE LINE

Return

1шт.

16

BN307078

CLAMP

PAIR, 3/8 TUBE

3шт.

17

87271120

SUPPORT

DRIVE HOSES, RH

1шт.

18

86980380

BOLT,Hex, M8 x 1.25 x 25mm, Cl 8.8, Full Thd

6шт.

19

9991588

NUT,M8 x 1.25, Cl 8

6шт.

20

87271119

SUPPORT

DRIVE HOSES, LH

1шт.

21

BN313262

NUT

C-RAIL 1/4”-20

40шт.

22

BN307080

CLAMP

PAIR, 1 TUBE

18шт.

23

BN313261

BOLT

Stacking 1/4"-20 x 1.12

42шт.

24

BN313265

PLATE

Safety -1" tube

11шт.

25

BN307081

PLATE

TOP, CLAMP, 1 TUBE

7шт.

26

87342609

BOLT

Hex, 1/4"-20 x 1 3/4", G5

14шт.

27

BN313264

PLATE

SAFETY, 1/2” TUBE

10шт.

28

87342608

BOLT

Hex, 1/4"-20 x 1 1/2", G5

20шт.

29

BN325316

TUBE

CASE DRAIN & RETURN

1шт.

30

BN305411

O-RING,0.07" Thk x 0.301" ID, -11, Cl 6, 90 Duro

.072 X .351IN CLASS 6

1шт.

31

BN305425

CAP

ORFS 6MM OR 1/4IN TUBE

1шт.

32

BN305412

O-RING

.078 X .468 IN CLASS 6

1шт.

33

BN305426

CAP

ORFS 10MM OR 3/8 IN TUBE

1шт.

34

BN306004

TUBE

AXLE ADJUST

2шт.

35

BN305996

TUBE

STR & DYN BRAKE PRESSURE

1шт.

36

BN324574

TUBE

PARK BRAKE

1шт.

37

BN306003

TUBE

Motor Servo Control

1шт.

38

87570217

HYD TUBE,1" OD

Drive Pressure "B", Not Shown, See 06-024[02]

1шт.

39

87570218

HYD TUBE,1" OD

Drive Pressure "A", Not Shown, See 06-024[02]

1шт.

40

87570220

HYD TUBE,1" OD

Drive Pressure "B", Not Shown, See 06-024[02]

1шт.

41

87570219

HYD TUBE,1" OD

Drive Pressure "A", Not Shown, See 06-024[02]

1шт.

42

87574765

HYD TUBE,.5" OD

Steering Return

1шт.

Выбрано товаров: 42