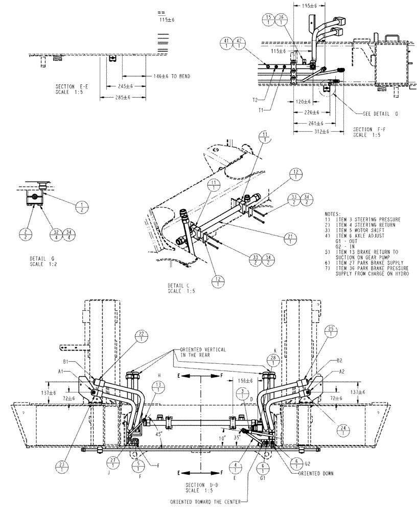
Запчасти Case IH SPX3320 (06-024[02]) - STEEL LINES GROUP Hydraulic Plumbing

Схема запчастей Case IH SPX3320 - (06-024[02]) - STEEL LINES GROUP Hydraulic Plumbing
4
24
5
34
2
12
3
28
25
41
13
36
34
21
6
22
33
11
32
33
1
12
11
6
34
42
232
27
15
FIT
1:1
100%

Артикул

Название

Примечание

Количество

2

BN307083

PLATE

TOP, CLAMP, 1.25 TUBE

2шт.

3

86980369

BOLT,Hex, M6 x 80, Cl 8.8

M6 1 x 80, HH, 8.8, DOR

4шт.

4

353308

NUT,M6 x 1.0, Cl 8

15шт.

5

BN319659

TUBE

STL, RETURN MANIFOLD

1шт.

6

BN29785

PLATE

Cover, Single, 1/2" Tube

12шт.

7

BN29783

CLAMP

Single, 1/2" Tube

22шт.

8

86980366

BOLT,Hex, M6 x 50mm, Cl 8.8

M6 1 X 50, 8.8, DOR

4шт.

9

BN324491

TUBE

STEEL, HYD LINE

1шт.

10

BN313247

RAIL

C, STD DUTY

7шт.

11

BN316101

SPACER

C RAIL, HYD TUBE

7шт.

12

86980361

BOLT,Hex, M6 x 1 x 25mm, Cl 8.8, Full Thd

7шт.

13

BN307079

PLATE

TOP, CLAMP 3/8” TUBE

3шт.

14

87342607

BOLT

Hex, 1/4"-20 x 1 1/4", G5

6шт.

15

BN309602

BRAKE LINE

Return

1шт.

16

BN307078

CLAMP

PAIR, 3/8 TUBE

3шт.

17

87271120

SUPPORT

DRIVE HOSES, RH

1шт.

18

86980380

BOLT,Hex, M8 x 1.25 x 25mm, Cl 8.8, Full Thd

6шт.

19

9991588

NUT,M8 x 1.25, Cl 8

6шт.

20

87271119

SUPPORT

DRIVE HOSES, LH

1шт.

21

BN313262

NUT

C RAIL 1/4”-20

40шт.

22

BN307080

CLAMP

PAIR, 1 TUBE

18шт.

23

BN313261

BOLT

Stacking 1/4"-20 x 1.12

42шт.

24

BN313265

PLATE

Safety -1" tube

11шт.

25

BN307081

PLATE

TOP, CLAMP, 1 TUBE

7шт.

26

87342609

BOLT

Hex, 1/4"-20 x 1 3/4", G5

14шт.

27

BN313264

PLATE

SAFETY, 1/2” TUBE

10шт.

28

87342608

BOLT

Hex, 1/4"-20 x 1 1/2", G5

20шт.

29

BN325316

TUBE

CASE DRAIN & RETURN

1шт.

30

BN305411

O-RING,0.07" Thk x 0.301" ID, -11, Cl 6, 90 Duro

.072 X .351 IN CLASS 6

1шт.

31

BN305425

CAP

ORFS 6 MM OR 1/4IN TUBE

1шт.

32

BN305412

O-RING

.078 X .468 IN CLASS 6

1шт.

33

BN305426

CAP

ORFS 10MM OR 3/8IN TUBE

1шт.

34

BN306004

TUBE

AXLE ADJUST

2шт.

35

BN305996

TUBE

STR & DYN BRAKE PRESSURE

1шт.

36

BN324574

TUBE

PARK BRAKE

1шт.

37

BN306003

TUBE

Motor Servo Control

1шт.

38

87570217

HYD TUBE,1" OD

Drive Pressure "B"

1шт.

39

87570218

HYD TUBE,1" OD

Drive Pressure "A"

1шт.

40

87570220

HYD TUBE,1" OD

Drive Pressure "B"

1шт.

41

87570219

HYD TUBE,1" OD

Drive Pressure "A"

1шт.

42

87574765

HYD TUBE,.5" OD

Steering Return

1шт.

Выбрано товаров: 41