Запчасти Case IH SPX3320 (11-036[01]) - AUTOBOOM, ULTRAGLIDE Options

Схема запчастей Case IH SPX3320 - (11-036[01]) - AUTOBOOM, ULTRAGLIDE Options
6
-
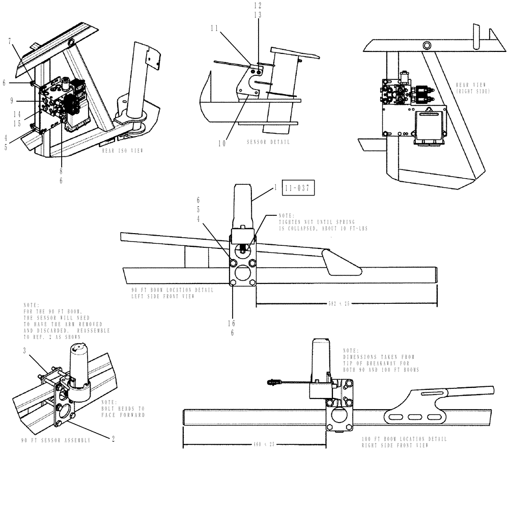
11-037
100 ft boom location detail
8
face forward
the sensor will need
16
rear view
to have the arm removed
5
right side front view
90 ft sensor assembly
4
1
left side front view
sensor detail
6
12
7
rear iso view
3
-
9
90 ft boom location detail
15
both 90 and 100 ft booms
6
6
5
tip of breakaway for
to ref. 2 as shown
11
(right side)
and discarded. reassemble
13
bolt heads to
14
tighten nut until spring
4
2
10
dimensions taken from
FIT
1:1
100%

Артикул

Название

Примечание

Количество

1

NSS

NOT SOLD SEPARAT

AUTOBOOM, Hight Control

1шт.

See Fig. 11-037

1шт.

2

84255690

BRACKET

Sensor Mount

2шт.

3

84256576

BRACKET

Sensor Mount Base

2шт.

4

86980409

BOLT,Hex, M10 x 1.5 x 90mm, Cl 8.8

12шт.

5

87529312

WASHER,11mm ID x 24mm OD x 3mm Thk

10шт.

6

86980515

NUT,Hex, M10 x 1.5, Cl 8.8, DOR

19шт.

7

87620862

PLATE

Backer, 2 1/2" Tube

2шт.

8

86980401

BOLT,Hex, M10 x 1.5 x 30mm, Cl 8.8, Full Thd

3шт.

9

BN446048

PLUG

HEX, ORING, -6, 9/16-18 PLATE

2шт.

10

87723957

BASE PLATE

PROXIMITY, SWITCH

2шт.

11

BN315498

SWITCH

POSITION SENSOR - W/DIODE

2шт.

12

86980359

BOLT,Hex, M6 x 1 x 16mm, Cl 8.8

4шт.

13

86980513

NUT,Prev Torque, Hex, M6, 1mm Pitch, Cl 8, DOR

4шт.

14

80681

LOCK WASHER,5/16"

4шт.

15

86512037

BOLT,Hex, 5/16" - 24 x 3/4", Gr 8, Full Thd

5/16-24 X 3/4 FULL GR8

4шт.

16

86980408

BOLT,Hex, M10 x 1.5 x 80mm, Cl 8.8

4шт.

17

BN302435

TEE

11/16 -16 ORFS x 11/16 -16 ORFS Swivel

4шт.

18

BN302436

TEE

13/16 -16 ORFS x 13/16 -16 ORFS Swivel

2шт.

19

342591A1

HOSE ASSY.

6 x 40"

4шт.

20

87487132

HOSE ASSY.

8 x 813 mm

1шт.

21

BN302554

FITTING

6MOR-8MB X 90

2шт.

21a

128825

O-RING,0.087" Thk x 0.644" ID, -908, Cl 6, 90 Duro

3/4", ORB

2шт.

21b

9993141

O-RING,0.07" Thk x 0.364" ID, -12, Cl 6, 90 Duro

11/16", OFRS

2шт.

22

BN302646

FITTING

11/16-16 ORFS x 9/16-18 ORB

2шт.

23

BN302650

FITTING

8 MOR-8 MB

2шт.

24

87487133

HOSE ASSY.

8 x 864 mm

1шт.

Выбрано товаров: 27