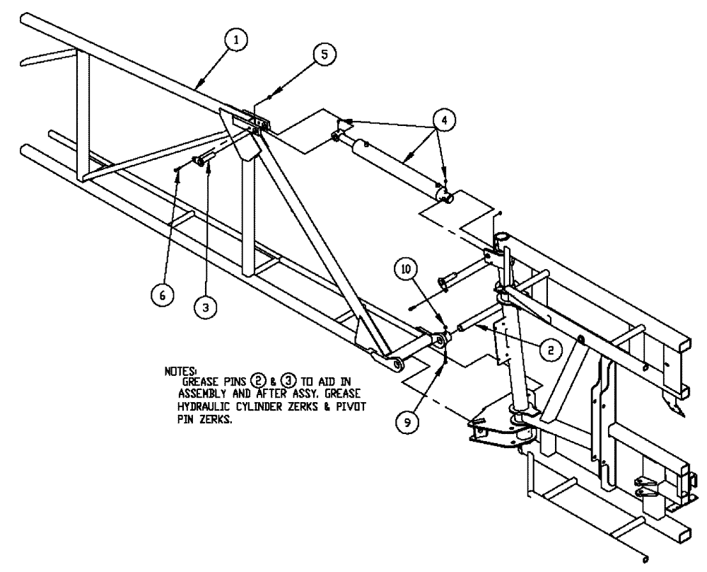
Запчасти Case IH SPX3320 (08-010) - WING, LEFT GROUP, 60’ BOOM (09) - BOOMS

Схема запчастей Case IH SPX3320 - (08-010) - WING, LEFT GROUP, 60’ BOOM (09) - BOOMS
10
5
1
4
2
9
6
3
FIT
1:1
100%

Артикул

Название

Примечание

Количество

1

BN326077

FRAME

Inner Sec, LH

1шт.

2

BN326079

PIN,38.1mm OD x 408.94mm L

BOOM PIVOT

1шт.

3

BN305621

PIN

2шт.

4

87266461

CYLINDER ASSY.,Double Acting, 38.1mm Rod, 533.4mm Stroke

Hydraulic, 3.00 x 21 x 1.50

1шт.

See Fig. 07-003

1шт.

4

87266461R

REMAN-HYD CYLINDER

SPX3320 PATRIOT SPRAYER, Hydraulic, LEFT (11/06-4/09)

1шт.

4

87266461C

CORE-HYD CYLINDER

Return Number

1шт.

5

86980515

NUT,Hex, M10 x 1.5, Cl 8.8, DOR

2шт.

6

86980402

BOLT,Hex, M10 x 1.5 x 35mm, Cl 8.8, Full Thd

2шт.

8

331-37

SPARE PART

FLUID, 1 lb. Lithium #2 grease

1шт.

9

87342784

BOLT

Hex, 3/8"-16 x 3 1/2", G5

1шт.

10

87343970

NUT,3/8"-16, G8, DOR

1шт.

Выбрано товаров: 12