Качественные детали и логистика
Оригинальные и аналоговые запчасти с доставкой по России, Казахстану и Беларуси
©2022 PartSell ООО "Система" ИНН 2463123282 ОГРН 1212400004838
Центральный офис: г. Красноярск, Академика Киренского, д.87, пом.4
Телефон: 8 (800) 777-65-74 Email: zakaz@partsell.ru
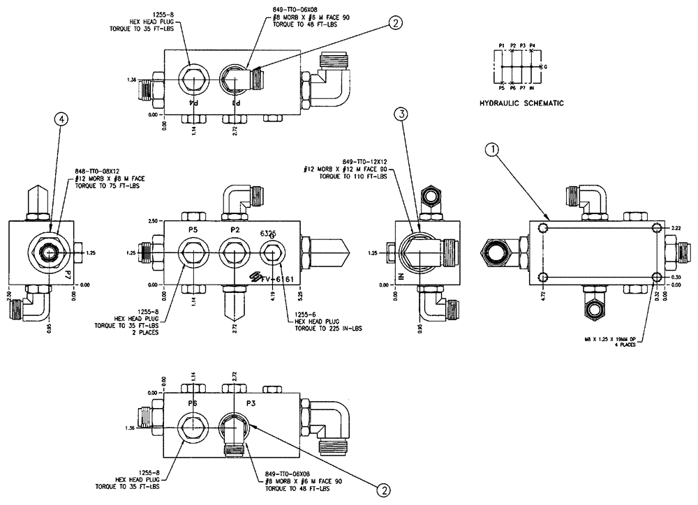
(06-029) - MANIFOLD, PRESSURE COMP {323902}
№
Артикул
Название
Примечание
Количество
1
BN326042
BODY
Aluminum
1шт.
2
BN302554
FITTING
11/16-16 ORFS x 3/4-16 ORB x 90 Deg
2шт.
2a
128825
O-RING,0.087" Thk x 0.644" ID, -908, Cl 6, 90 Duro
2b
9993141
O-RING,0.07" Thk x 0.364" ID, -12, Cl 6, 90 Duro
3
BN302568
ELBOW
12MOR-12MBX90
4
BN302652
8MOR-12MB
Выбрано товаров: 0