Запчасти Case IH SPX4260 (03-032) - A/C GROUP (01) - ENGINE

Схема запчастей Case IH SPX4260 - (03-032) - A/C GROUP (01) - ENGINE
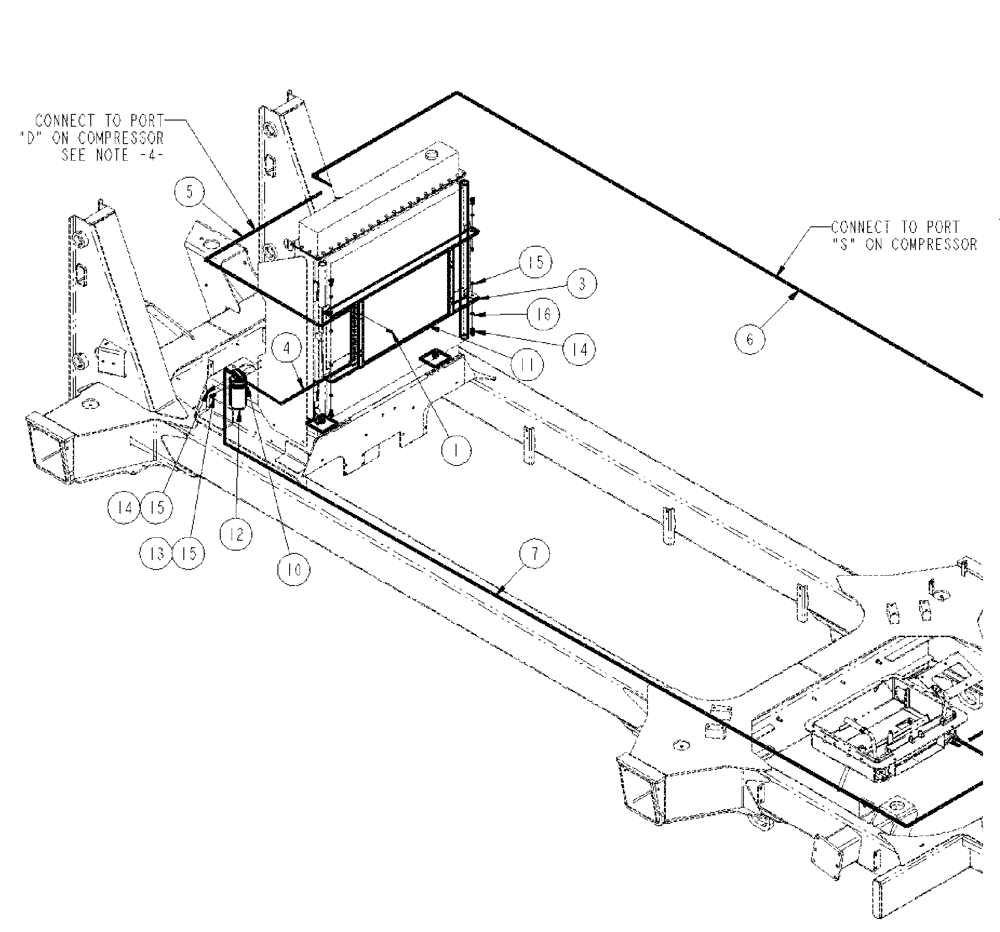
12
15
11
14
15
5
15
14
13
7
4
10
6
3
1
16
FIT
1:1
100%

Артикул

Название

Примечание

Количество

1

276-14712

SELF-TAP SCREW,Hex Hd, 1/4" x 3/4"

4шт.

1a

87000227

SWITCH, A/C HIGH PRE

High N.C.

1шт.

Not Shown

1шт.

3

BN304862

MOUNTING PARTS

Condensor-A/C

1шт.

4

BN309643

HOSE

Assembly (A.C.)

1шт.

5

BN313857

HOSE

Compressor To Condensor

1шт.

6

BN324891

HOSE ASSY.

Compressor To Cab

1шт.

7

BN320604

HOSE ASSY.

Dryer To Cab

1шт.

7a

BN43197

CLAMP

Vinyl Covered 3/4"

1шт.

Not Shown

1шт.

7b

331-578

FLUID

refrigerant, 1 Kg, HFC-134A

1шт.

10

BN67726

CLAMP

Clamp-Receiver Dryer

1шт.

11

BN67785

CONDENSER

Coil

1шт.

12

BN67797

RECEIVER-DRYER

1шт.

13

120104

BOLT,Hex, M8 x 1.25 x 20mm, Cl 8.8

1шт.

14

43127

BOLT,Hex, M8 x 1.25 x 25mm, Cl 8.8

6шт.

15

86528579

NUT,M8 x 1.25

7шт.

16

86624184

WASHER,9mm ID x 16mm OD x 1.6mm Thk

5шт.

Выбрано товаров: 18