Качественные детали и логистика
Оригинальные и аналоговые запчасти с доставкой по России, Казахстану и Беларуси
©2022 PartSell ООО "Система" ИНН 2463123282 ОГРН 1212400004838
Центральный офис: г. Красноярск, Академика Киренского, д.87, пом.4
Телефон: 8 (800) 777-65-74 Email: zakaz@partsell.ru
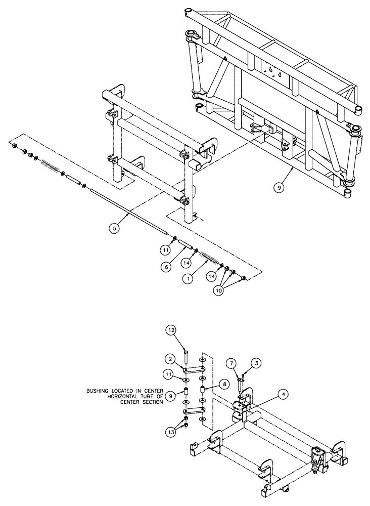
(08-014) - BOOM, CENTER SECTION GROUP
№
Артикул
Название
Примечание
Количество
1
BN27328
SPRING
Compression, 1.75" od x11"
2шт.
2
BN29505
HANGER
3/4 x 3 HRFB x 10.50
4шт.
3
43140
BOLT,Hex, M10 x 1.5 x 30mm, Cl 8.8
4
100037
LOCK NUT,M10 x 1.5, Cl 8
5
BN306783
SHAFT
Threaded 1"
1шт.
6
BN306784
TUBE
RND Spacer 1.25 X 12G
7
BN306785
PIN
8
BN308003
BUSHING
Hanger
9
BN318747
FRAME
Center Section
10
87553819
JAM NUT
1"-8 Hex, Jam
6шт.
11
87529238
WASHER,1.06" ID x 2" OD x 0.13" Thk
1.0625 x 2 x 0.134 HTS DOR
12шт.
12
BN50363
BOLT
1-14 X 6, HH, 5, Plate
13
425-1516
JAM NUT,Jam, 1"-14, G5
14
87016613
WASHER,25.8mm ID x 56.5mm OD x 6mm Thk
Выбрано товаров: 0