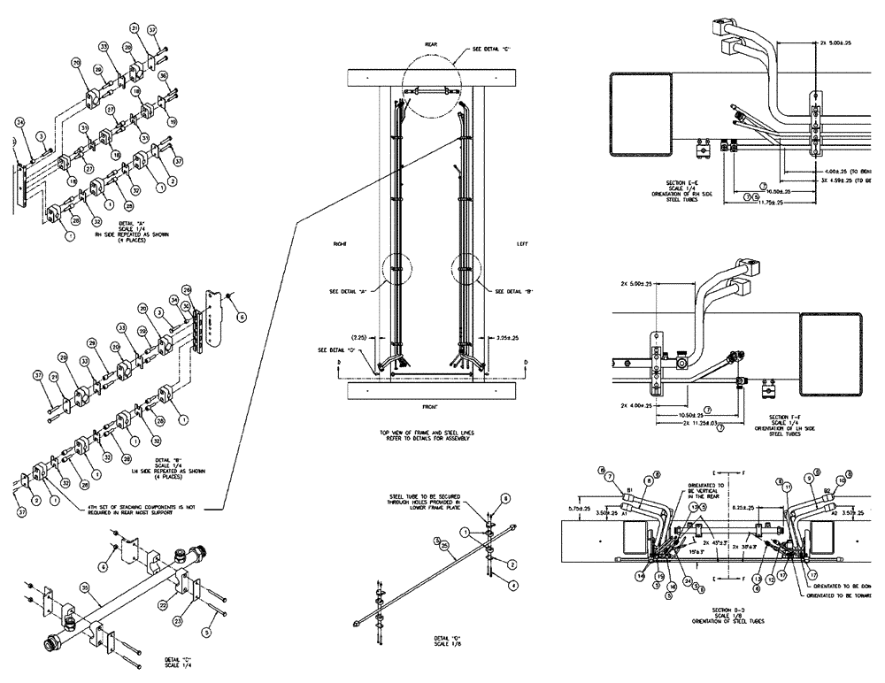
Запчасти Case IH SPX4260 (06-018) - STEEL LINES GROUP Hydraulic Plumbing

Схема запчастей Case IH SPX4260 - (06-018) - STEEL LINES GROUP Hydraulic Plumbing
2
13
13
10
2
1
29
27
37
1
15
20
18
17
4
1
17
34
6
20
1
34
20
1
29
6
14
21
26
3
32
35
37
32
33
20
32q
12
8
28
37
33
24
29
32
1
26
33
5
18
20
25
37
28
18
3
32
28
21
31
9
36
22
6
6
11
28
30
31
1
27
1
16
7
2
23
19
FIT
1:1
100%

Артикул

Название

Примечание

Количество

1

BN29783

CLAMP

Single, 1/2" Tube

29шт.

2

BN29785

PLATE

Cover, Single, 1/2" Tube

10шт.

3

86977789

BOLT,Hex, M6 x 1.0 x 35mm, Cl 8.8

8шт.

4

814-6055

BOLT,Hex, M6 x 1 x 55mm, Cl 8.8

4шт.

5

86508569

BOLT,Hex, M6 x 70mm, Cl 8.8

4шт.

6

353308

NUT,M6 x 1.0, Cl 8

16шт.

7

BN325883

TUBE

Drive Pressure, RH

1шт.

8

BN325884

TUBE

Drive Pressure, RH

1шт.

9

BN325885

TUBE

Drive Pressure, LH

1шт.

10

BN325886

TUBE

Drive Pressure, LH

1шт.

11

BN325316

TUBE

Case Drain & Return

1шт.

12

BN305996

TUBE

STR & DYN Brake PRS

1шт.

13

BN305997

TUBE

Steering Return

2шт.

14

BN305999

TUBE

Fuel Line

2шт.

15

BN324574

TUBE

Park Brake

1шт.

16

BN306003

TUBE

Motor Servo Control

1шт.

17

BN306004

TUBE

Axle Adjust

2шт.

18

BN307078

CLAMP

Pair-3/8 Tube

12шт.

19

BN307079

PLATE

Top, Clamp 3/8" Tube

4шт.

20

BN307080

CLAMP

Pair, 1 " Tube

20шт.

21

BN307081

PLATE

Top, Clamp 1" Tube

8шт.

22

BN307082

CLAMP

Pair 1.25" Tube

2шт.

23

BN307083

PLATE

Top, Clamp 1.25" Tube

2шт.

24

BN309602

BRAKE LINE

Return

1шт.

25

BN324491

TUBE

Steel, HYD. Line

1шт.

26

BN313247

RAIL

STD Duty

8шт.

27

BN313259

BOLT

Stacking (1/4"-20)

16шт.

28

BN313261

BOLT

Stacking 1/4"-20 x 1.12

38шт.

29

BN313261

BOLT

Stacking 1/4"-20 x 1.12

24шт.

30

BN313262

NUT

C-Rail (1/4"-20)

40шт.

31

BN313263

PLATE

Safety 3/8"Tube

8шт.

32

BN313264

PLATE

Safety 1/2"Tube

19шт.

33

BN313265

PLATE

Safety -1" tube

12шт.

34

BN316101

SPACER

C-Rail, HYD. Tube

8шт.

35

BN319659

TUBE

STL, Return Manifold

1шт.

36

87716

BOLT,1/4"-20 x 1-1/4", Cl 5

8шт.

37

280112

BOLT,Hex, 1/4" - 20 x 1-1/2", Gr 5

32шт.

Выбрано товаров: 37