Запчасти Case IH PATRIOT (03-001) - ENGINE MOUNTS (01) - ENGINE

Схема запчастей Case IH PATRIOT - (03-001) - ENGINE MOUNTS (01) - ENGINE
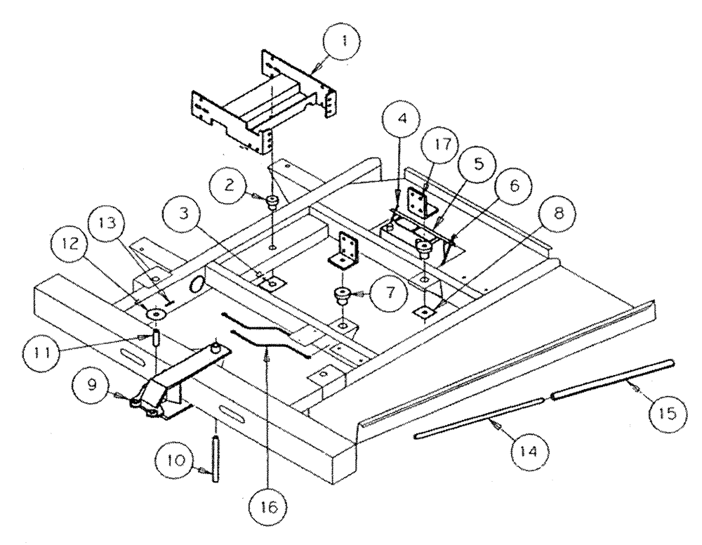
1
6
15
12
7
2
11
9
14
5
4
16
3
17
13
10
8
FIT
1:1
100%

Артикул

Название

Примечание

Количество

1

BN29501

MOUNTING PARTS

Motor & Radiator

1шт.

2

BN29243

ISOLATOR

Rubber 1/2" Bore

1шт.

3

BN316870

WASHER

2.25 x 0.52 x 7 GA, 304 SS

1шт.

4

BN7020

ROD

5/16 dia. x 11.5

2шт.

5

BN29276

ANGLE

Battery Hold Down

1шт.

6

BN57227

1шт.

BN29435

CABLE

2шт.

7

BN29242

ISOLATOR

Rubber 3/4" Bore

2шт.

8

BN63818

WASHER,20.57mm ID x 69.85mm OD x 4.76mm Thk

7 GA 304 .81 x 2.75

2шт.

9

BN29223

ARM

Steering, 6.12"

1шт.

9

BN25519

ARM

Steering, 8.12"

1шт.

10

BN29404

PIN

1.031" x 9.63"

1шт.

11

BN71213A

PIN

1" x 3.25" (Steering Hyd Cyl.)

2шт.

12

50161

WASHER Hex, 3/4"-10 x 5", G5

4шт.

13

BN50601

PIN, SPLIT (COTTER)

PIN, COTTER 3/16" x 3/4", Type E

4шт.

14

BN29702

Hose Roller

2шт.

15

BN29793

Hose Roller

2шт.

16

BN29427

Ground (Frame to Cab & Engine)

2шт.

17

BN29207

Mount - Motor

2шт.

Выбрано товаров: 19