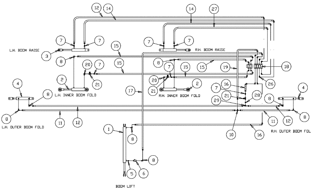
Запчасти Case IH PATRIOT NT (06-002) - BOOMS - 6 BANK VALVE Hydraulic Plumbing

Схема запчастей Case IH PATRIOT NT - (06-002) - BOOMS - 6 BANK VALVE Hydraulic Plumbing
4
19
3
28
4
16
2
21
8
15
29
7
20
16
8
7
7
6
14
8
11
8
7
8
8
7
21
2
12
15
12
14
15
12
1
18
17
10
27
5
21
8
8
11
7
26
15
20
7
FIT
1:1
100%

Артикул

Название

Примечание

Количество

1

BN68696

CYLINDER

HYD. Boom Height

1шт.

See Fig. 07-001

1шт.

2

BN52316

CYLINDER

HYD.- Inner Boom Fold

2шт.

See Fig. 07-002

1шт.

3

BN53806

CYLINDER

HYD. - Boom Level

2шт.

See Fig. 07-004

1шт.

4

BN21402

CYLINDER

HYD. - Outer Boom Fold

2шт.

See Fig. 07-003

1шт.

5

BN51665

FITTING

3/8" Close

1шт.

6

BN53681

HYDRAULIC VALVE

Snubber

1шт.

7

BN22158

ADAPTER,3/8" NPT X 7/16"-20, 37 Degree

7шт.

8

BN21401

ELBOW,90 Degree 3/8" NPT x 7/16"-20 JIC

8шт.

10

BN21422

TEE

7/16-20 JIC

1шт.

11

BN55179

HOSE

1/4" X 228"

2шт.

12

BN55178

HOSE

1/4" X 224"

3шт.

14

BN68498

HOSE

1/4" X 220"

2шт.

15

BN68496

HOSE

1/4" X 172"

4шт.

16

BN68493

HOSE

1/4" x 170"

2шт.

17

BN68499

NUT

LH thread, fuel fitting

1шт.

18

BN69403

6 Bank

1шт.

See Fig. 08-010 For Seal & Repair Parts

1шт.

19

BN68495

HOSE

1/4" X 154"

1шт.

20

BN51123

ADAPTER

90º, 3/8-18 NPT

2шт.

21

BN53856

HYDRAULIC VALVE

Needle

3шт.

26

BN22160

ELBOW

90° 9/16-18 O-Ring X 7/16-20 JIC

14шт.

26

BN98019

O-RING

#6

14шт.

Associated Part Of Adapter, P/N BN22160

1шт.

27

BN68497

1/4" x 218"

1шт.

28

BN51352

BUSHING

1/4-18 x 3/8-18 NPT

1шт.

29

BN53711

TEE

1/4 NPT x 7/16-20 JIC

1шт.

Выбрано товаров: 0