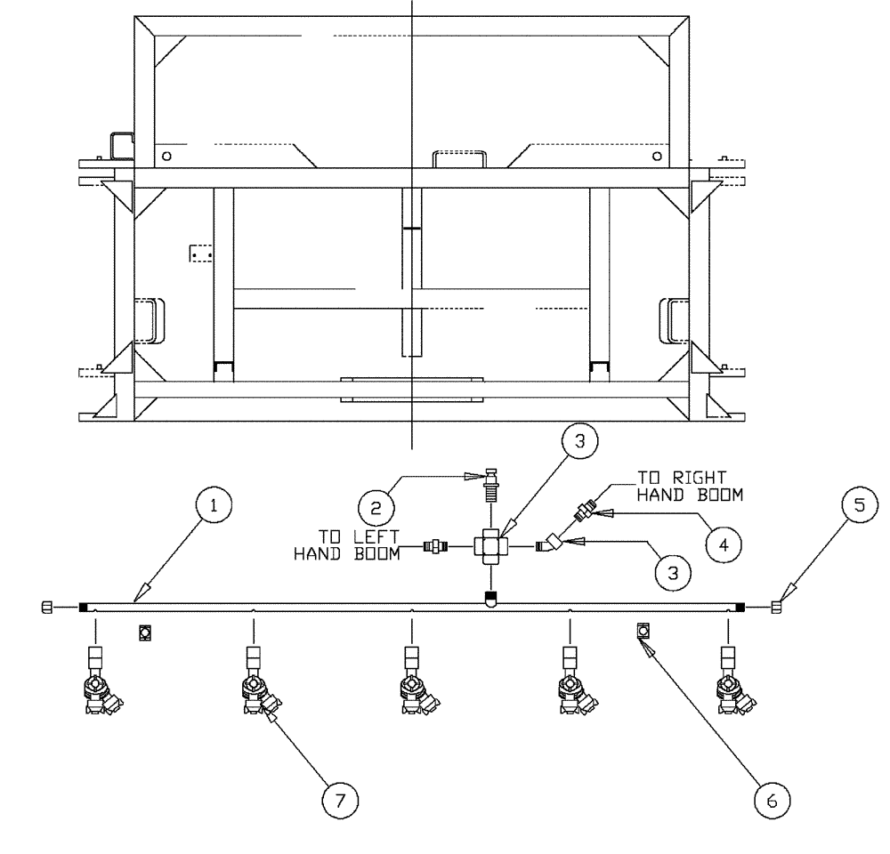
Запчасти Case IH PATRIOT NT (09-013) - 24M, 20” SPACING, 3-WAY NOZZLE, CENTER BOOM / 3 BOOM SHUT-OFF Liquid Plumbing

Схема запчастей Case IH PATRIOT NT - (09-013) - 24M, 20” SPACING, 3-WAY NOZZLE, CENTER BOOM / 3 BOOM SHUT-OFF Liquid Plumbing
5
4
7
3
1
2
3
6
FIT
1:1
100%

Артикул

Название

Примечание

Количество

1

BN69756

BOOM

Wet 20" Spacing

1шт.

2

BN53667

COUPLING

Camlock-Male, Serial Range: (Thd)-Male

1шт.

3

BN53663

COUPLING

Cross 1" NPT Poly

1шт.

4

BN53476

FITTING,1" Male NPT x 1" Hose Barb, Poly

1" NPT x 1" Hose Barb, Poly

2шт.

5

BN73571

CAP

3/4" NPT

2шт.

6

BN65324

CLAMP

1" OD, Poly

2шт.

7

BN65323

Nozzle (3 Way) 3/4 Pipe

5шт.

Выбрано товаров: 0