Запчасти Case IH TYLER (06-002) - HYDRAULIC CYLINDER - BOOM HEIGHT Cylinders

Схема запчастей Case IH TYLER - (06-002) - HYDRAULIC CYLINDER - BOOM HEIGHT Cylinders
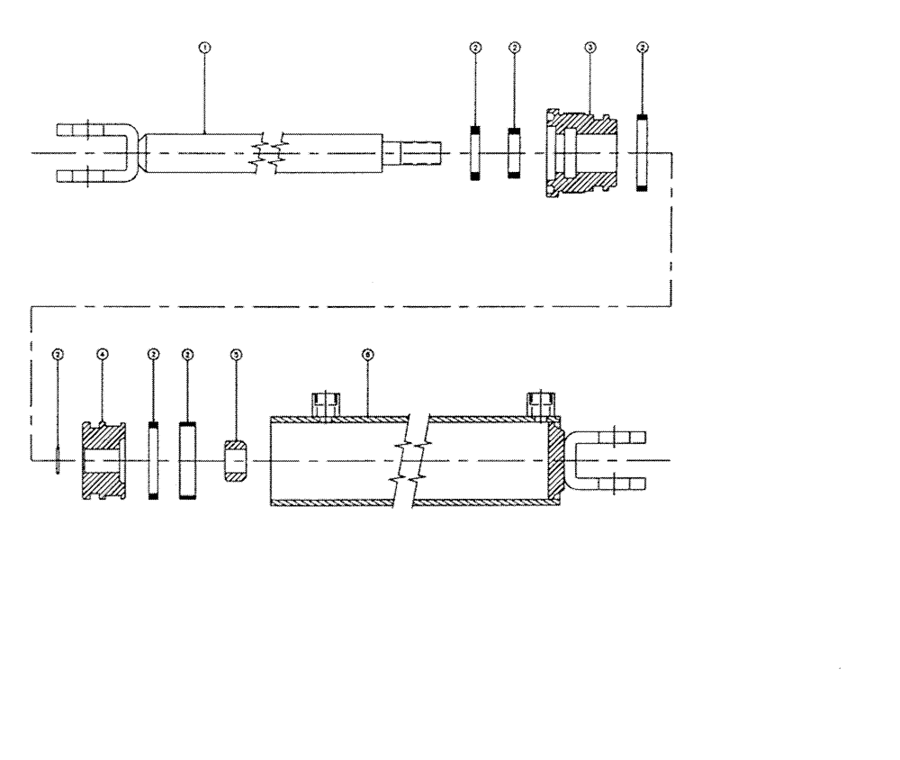
2
2
2
2
5
6
1
2
4
3
2
FIT
1:1
100%

Артикул

Название

Примечание

Количество

0

BN68696

CYLINDER

Hyd., w/Clevis (Complete)

1шт.

2

BN68842

ROD

cylinder

1шт.

3

BN98656

GLAND

End

1шт.

4

BN98657

PISTON

1шт.

5

BN98093

LOCK NUT

Jam, 3/4"-16

1шт.

6

NSS

NOT SOLD SEPARAT

1шт.

7

BN98643

SEAL KIT

1шт.

For the screw-on end gland - When replacing - take note on how old seals are positioned

1шт.

Выбрано товаров: 8