Запчасти Case IH 2500 ECOLO-TIL (39.110.03) - AUTO RESET REAR HITCH - AA OPTION (39) - FRAMES AND BALLASTING

Схема запчастей Case IH 2500 ECOLO-TIL - (39.110.03) - AUTO RESET REAR HITCH - AA OPTION (39) - FRAMES AND BALLASTING
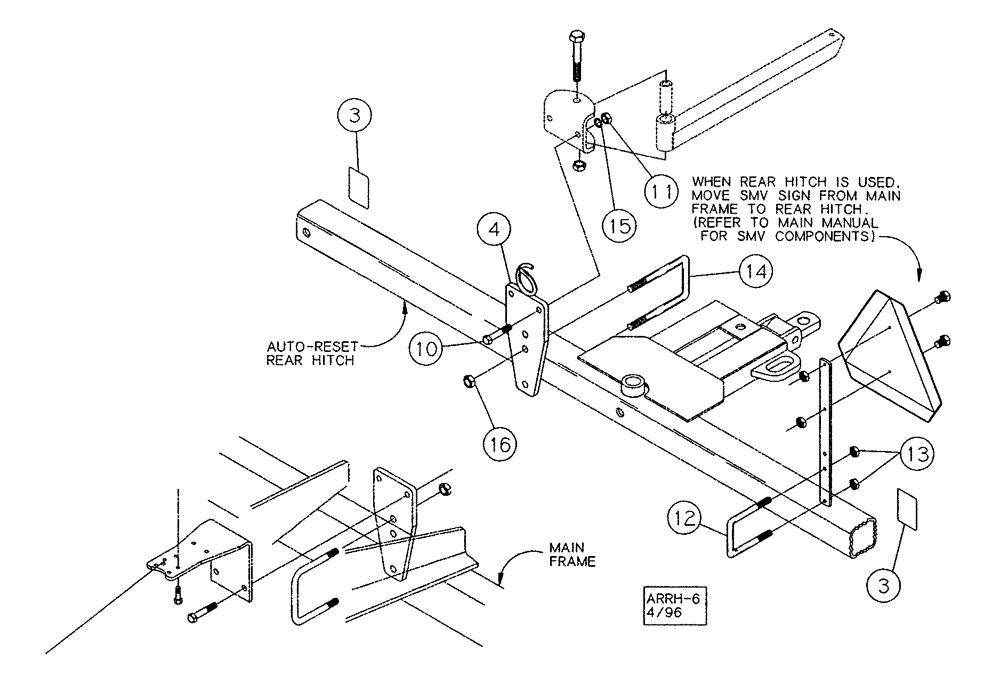
4
12
3
11
14
13
10
15
3
3
16
FIT
1:1
100%

Артикул

Название

Примечание

Количество

1

25675820

HOSE,1.25" ID x 82.00"

1шт.

2

15071251

ADAPTER

1-1/4, NPT

1шт.

3

18534244

REFLECTOR

Red

2шт.

4

09662380

BRACKET

Weldment

1шт.

10

413-1032

BOLT,Hex, 5/8" - 11 x 2", Gr 5

2шт.

11

425-1010

NUT,5/8"-11, G5

2шт.

12

16309091

U-BOLT,3/8" - 16, Square, 4" W x 5" L

BOLT "U" 3/8 x 4 x 6

1шт.

13

231-4246

LOCK NUT,3/8"-16, GB

Stover

2шт.

14

87427185

U-BOLT

3/4 x 4 x 5-1/2

1шт.

15

492-11062

BEARING WASHER,5/8"

2шт.

16

425-1012

NUT,3/4"-10, G5

2шт.

Выбрано товаров: 0