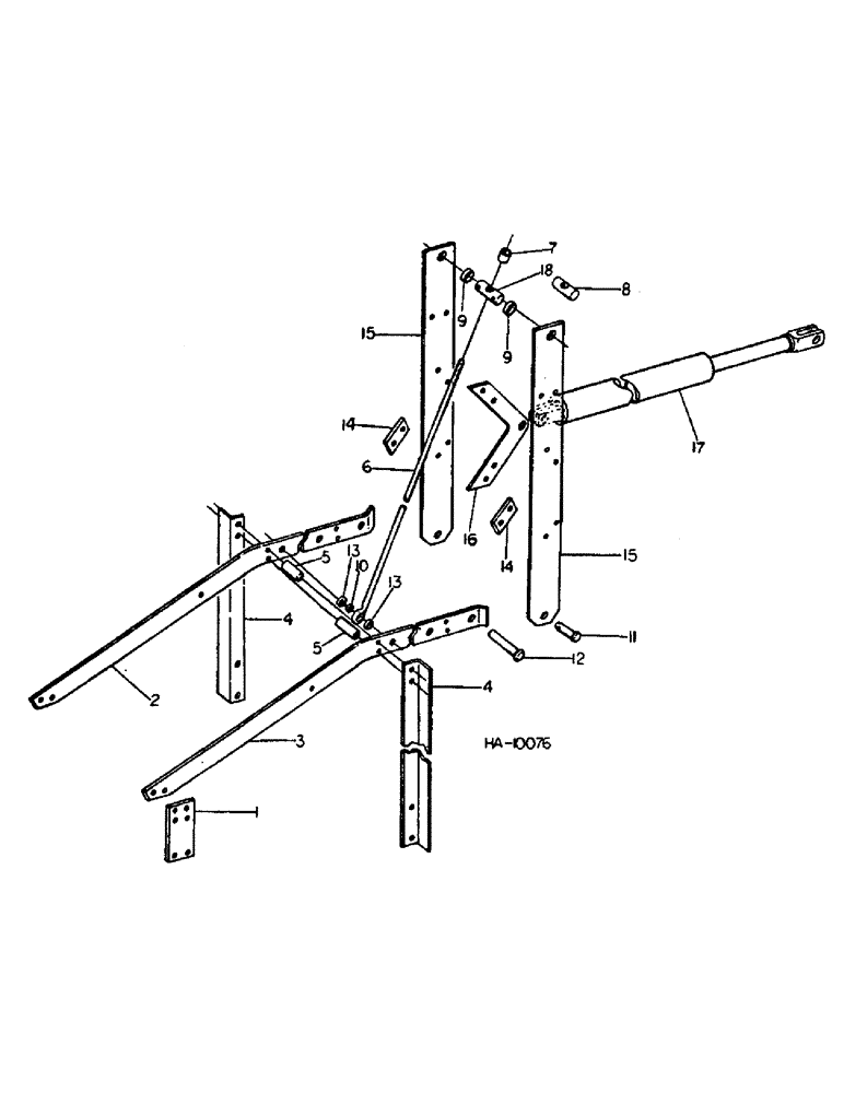
Запчасти Case IH 5000 (H-10) - 5000 VIBRA CHISEL, 31-1/2 FOOT WING, WING LIFT UNIT, WITH 7/8 DIAMETER WING LIFT CONTROL ROD

Схема запчастей Case IH 5000 - (H-10) - 5000 VIBRA CHISEL, 31-1/2 FOOT WING, WING LIFT UNIT, WITH 7/8 DIAMETER WING LIFT CONTROL ROD
FIT
1:1
100%

Артикул

Название

Примечание

Количество

1

813040C1

BAR

wing lift support

4шт.

271735

BODY,Hex, 5/8" - 11 x 5", Gr 5

5/8 x 5 type 5

8шт.

280374

NUT,Hex, 5/8" - 11, Gr 5

5/8 type 5

8шт.

2

812596C3

SUPPORT, wing frame lift front LH

1шт.

2

812597C3

SUPPORT

wing frame lift front RH

1шт.

3

812597C3

SUPPORT

wing frame lift rear LH

1шт.

3

812596C3

SUPPORT, wing frame lift rear RH

1шт.

271548

BOLT (SPREADER),Hex, 5/8" - 11 x 1 3/4", Gr 5

BOLT, 5/8 x 1-3/4 type 5

8шт.

280374

NUT,Hex, 5/8" - 11, Gr 5

5/8 type 5

8шт.

4

812599C1

ANGLE

lift support

4шт.

445608

BOLT,Hex, 1/2" - 13 x 5 1/2", Gr 5

1/2 x 5-1/2 type 5

4шт.

413-1068

BOLT,Hex, 5/8" - 11 x 4-1/4", Gr 5

5/8 x 4-1/4 type 5

4шт.

120378

NUT,Hex, 1/2" - 13, Gr 5

NUT, 1/2"-13, G5

4шт.

280374

NUT,Hex, 5/8" - 11, Gr 5

5/8 type 5

4шт.

5

F18186

SPACER,1/2" Pipe x 3 1/4"

1/2 x 3.250 pipe

4шт.

6

810150C2

ROD

wing lift control 7/8 dia

1шт.

426898

NUT,Jam, 7/8"-9, G5

7/8 jam type 5

4шт.

26070R1

WASHER,15/16" x 1 3/4" x .179", HDN

.938 x 1.750 x .079 hdn

2шт.

413-1280

BOLT,Hex, 3/4" - 10 x 5", Gr 5

3/4 x 5 type 5 , Course threads

2шт.

280954

NUT,3/4"-10, G5

2шт.

87340

LOCK WASHER,Helical Spring, 0.759" ID, CST, ZND

WASHER, LOCK, 3/4"

2шт.

467750R1

WASHER

.781 x 1.500 x .105

4шт.

7

810154C1

SPACER

control rod

1шт.

8

(Not used this application)

1шт.

9

(Not used this application)

1шт.

10

812419C1

BUSHING

control rod

2шт.

11

22973R1

PIN,1" x 4 1/2"

1 x 4-1/2 std hd dld

2шт.

456396R1

SPACER, 1 x 1.812 std pipe

2шт.

432-1620

COTTER PIN,1/4" x 1 1/4"

Pin, Split (Cotter), 1/4" x 1 1/4"

2шт.

12

813039C1

PIN

lift support transport

2шт.

599744R1

AXLE PIN

PIN, Q.A. cotter

2шт.

13

631648R1

BUSHING

control rod spacer

4шт.

14

812730C1

BAR

arm spacer

16шт.

180192

BOLT (SPREADER),Hex, 1/2" - 13 x 3 1/2", Gr 5

BOLT, 1/2 x 3-1/2 type 5

12шт.

120378

NUT,Hex, 1/2" - 13, Gr 5

NUT, 1/2"-13, G5

12шт.

15

812430C1

BAR

wing lift control arm

4шт.

16

812592C1

ARM, wing lift control

4шт.

17

812699C91

CYLINDER

ASSY, hyd 4 x 48 DA, cross, or

1шт.

17

813104C91

CYLINDER

ASSY, hyd 4 x 48 DA, alco, for components refer to hydraulic cylinders section L

1шт.

18

812420C1

PIN

control rod

2шт.

617943R1

PIN,5/16" x 2 1/2", Coiled

4шт.

609376R1

WASHER

1.781 x 2.500 x .105

4шт.

Выбрано товаров: 42