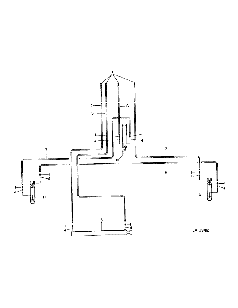
Запчасти Case IH 5500 (D-13) - DEPTH CONTROL AND WING LIFT HYDRAULIC SYSTEM, SINGLE WING, MACHINES BUILT 1986 AND SINCE

Схема запчастей Case IH 5500 - (D-13) - DEPTH CONTROL AND WING LIFT HYDRAULIC SYSTEM, SINGLE WING, MACHINES BUILT 1986 AND SINCE
FIT
1:1
100%

Артикул

Название

Примечание

Количество

1

587639R1

HYD CONNECTOR,9/16"-18, 37 Degree x 3/4"-18, O-Ring

CONNECTOR, C-Z hyd fld 3/8 to 1/2 sht

12шт.

2

1284260C1

HYDRAULIC HOSE

HOSE ASSY, 3/8 x 265 in. wing lift cylinder pressure hyd

1шт.

3

129673C2

HOSE

ASSY, 3/8 x 280 in. wing lift cylinder pressure hyd

1шт.

4

570828R1

O-RING,0.087" Thk x 0.644" ID, -908, Cl 6, 90 Duro

1/2 OD tube class 6

8шт.

5

1286311C91

CYLINDER ASSY.

CYLINDER ASSY, 2-1/2 x 34 in. double acting hydraulic, wing lift, Replaces 811888C91, Refer to cyl-1 for components

1шт.

85023C1

KIT

o-ring and seal service

1шт.

936587R91

PIN

ASSY, connecting bar

2шт.

432-1640

COTTER PIN,1/4" x 2 1/2"

Pin, Split (Cotter), 1/4" x 2 1/2"

2шт.

6

1284253C1

HYDRAULIC HOSE,9.52 mm ID x 3810.00 mm

Assy - Master cylinder hydraulic pressure, from tractor 9.52 mm ID x 3810.00 mm

1шт.

7

1284252C1

HYDRAULIC HOSE

HOSE ASSY, 3/8 x 140 in. slave cylinder pressure LH hyd

1шт.

8

1284258C1

HYDRAULIC HOSE,9.53mm ID x 5715mm L

HOSE ASSY, 3/8 x 225 in. slave cylinder LH to RH hyd

1шт.

9

139522C2

HOSE

ASSY, 3/8 x 255 in. slave cylinder return hyd

1шт.

10

149950C92

CYLINDER

ASSY, 4.25 x 8 in. double acting hydraulic, depth control master, Replaces 813526C91, Refer to cyl-1 for components

1шт.

1252009C2

SEAL KIT

o-ring and seal service

1шт.

1263435C91

ADJUSTMENT SCREW

ASSY, L

1шт.

124824

NUT,Hex, 5/16" - 18

5/16 jam type 5

1шт.

810751C1

PIN

1 x 3-1/2 in. std-hd-dld special

2шт.

432-1624

COTTER PIN,1/4" x 1 1/2"

Pin, Split (Cotter), 1/4" x 1 1/2"

2шт.

11

1272485C92

CYLINDER ASSY.

CYLINDER ASSY, 4 x 8 in. double acting hydraulic, depth control main slave, Replaces 813527C91, Refer to cyl-1 for components

1шт.

11

87423777R

REMAN-HYD CYLINDER

Reman for New PN 1272485C92

1шт.

11

87423777C

CORE-HYD CYLINDER

Return Number

1шт.

80117C2

SEAL KIT

o-ring and seal service

1шт.

810751C1

PIN

1 x 3-1/2 in. std-hd-dld special

2шт.

432-1624

COTTER PIN,1/4" x 1 1/2"

Pin, Split (Cotter), 1/4" x 1 1/2"

2шт.

12

1282328C92

CYLINDER ASSY.

CYLINDER ASSY, 3.75 x 8 in. double acting hydraulic, depth control wing slave, Replaces 813528C91, Refer to cyl-1 for components

1шт.

12

87423766R

REMAN-HYD CYLINDER

CYLINDER ASSY, 3.75 x 8 in. double acting

1шт.

12

87423766C

CORE-HYD CYLINDER

Return Number

1шт.

80115C2

SEAL KIT

KIT, o-ring and seal service

1шт.

810751C1

PIN

1 x 3-1/2 in. std-hd-dld special

1шт.

432-1624

COTTER PIN,1/4" x 1 1/2"

Pin, Split (Cotter), 1/4" x 1 1/2"

2шт.

129083R1

CLAMP

.625 dia znp coated med clo, hydraulic hose

20шт.

495967R1

CARRIAGE BOLT,Short NK, 3/8"-16 x 1", G5, Full Thd

BOLT, 3/8 x 1 crg type 5

10шт.

120382

LOCK WASHER,Helical Spring, 3/8"

WASHER, LOCK, 3/8"

10шт.

120377

NUT,3/8" - 16, Gr 5

10шт.

306132C1

CABLE TIE,14.5" L

STRAP, hose tie

1шт.

Выбрано товаров: 35