Запчасти Case IH 5500 (G-12) - TRACTOR HITCH, WING TYPE

Схема запчастей Case IH 5500 - (G-12) - TRACTOR HITCH, WING TYPE
FIT
1:1
100%

Артикул

Название

Примечание

Количество

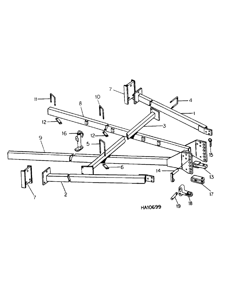
1

810042C1

BRACE

ASSY, hitch LH

1шт.

2

810043C1

BRACE

ASSY, hitch RH

1шт.

3

810130C1

BRACE

ASSY, hitch cross

1шт.

4

811627C1

BOLT

U-BOLT, cross brace

2шт.

5

810141C1

BOLT,U, 5/8" - 11 x 10"

U-BOLT, cross brace

2шт.

280374

NUT,Hex, 5/8" - 11, Gr 5

5/8 type 5

8шт.

492-11062

BEARING WASHER,5/8"

WASHER, LOCK, 5/8"

8шт.

6

812662C1

BAR

u-bolt mounting

2шт.

7

810145C1

SUPPORT

ASSY, hitch brace rear

2шт.

20166R1

BOLT,Hex, 5/8" - 11 x 6", Gr 5

5/8 x 6 type 5

6шт.

280374

NUT,Hex, 5/8" - 11, Gr 5

5/8 type 5

6шт.

492-11062

BEARING WASHER,5/8"

WASHER, LOCK, 5/8"

6шт.

8

810198C1

BEAM

ASSY, hitch LH

1шт.

9

810199C1

BEAM

ASSY, hitch RH

1шт.

19866R1

BOLT,Hex, 3/4" - 10 x 6 1/2", Gr 5

3/4 x 6-1/2 type 5

3шт.

280954

NUT,3/4"-10, G5

3шт.

10

810050C1

BOLT,U, 5/8" - 11 x 13.50

U-BOLT, hitch beam front

2шт.

280374

NUT,Hex, 5/8" - 11, Gr 5

5/8 type 5

4шт.

492-11062

BEARING WASHER,5/8"

WASHER, LOCK, 5/8"

4шт.

11

812864C1

U-BOLT,5/8" - 11 x 11.6"

hitch beam rear

6шт.

280374

NUT,Hex, 5/8" - 11, Gr 5

5/8 type 5

12шт.

492-11062

BEARING WASHER,5/8"

WASHER, LOCK, 5/8"

12шт.

12

812865C1

BAR

u-bolt clamping

8шт.

13

605866R91

TOW BAR

CLEVIS ASSY, heavy duty hitch

1шт.

14

810066C2

PIN

ASSY, hitch clevis

1шт.

15

D33805

PIN

hitch klik, Replaces 621006C1

1шт.

21718R1

WASHER

1.531 x 2.250 x .105

1шт.

16

810363C91

JACK ASSY.

JACK ASSY, tractor hitch

1шт.

17

1279227C1

TRAILER HITCH

CLEVIS ASSY, heavy duty hitch, Replaces 597324R1

1шт.

18

810442C1

TOW BAR

TONGUE, heavy duty rigid hitch

1шт.

19

810462C1

PIN

hitch

2шт.

432-1640

COTTER PIN,1/4" x 2 1/2"

Pin, Split (Cotter), 1/4" x 2 1/2"

2шт.

22051R1

WASHER

1.531 x 2.250 x .054

2шт.

Выбрано товаров: 33