Запчасти Case IH 5800 (9-48) - REAR SECONDARY WING LIFT HINGE, AND CYLINDER MOUNTING (09) - CHASSIS/ATTACHMENTS

Схема запчастей Case IH 5800 - (9-48) - REAR SECONDARY WING LIFT HINGE, AND CYLINDER MOUNTING (09) - CHASSIS/ATTACHMENTS
32
34
34
35
25
34
10
34
20
14
40
1
18
33
23
30
27
34
26
2
28
30
26
39
28
17
36
16
19
4
15
11
12
3
8
31
21
34
41
9
22
37
30
38
26
24
13
29
24
26
5
7
6
FIT
1:1
100%

Артикул

Название

Примечание

Количество

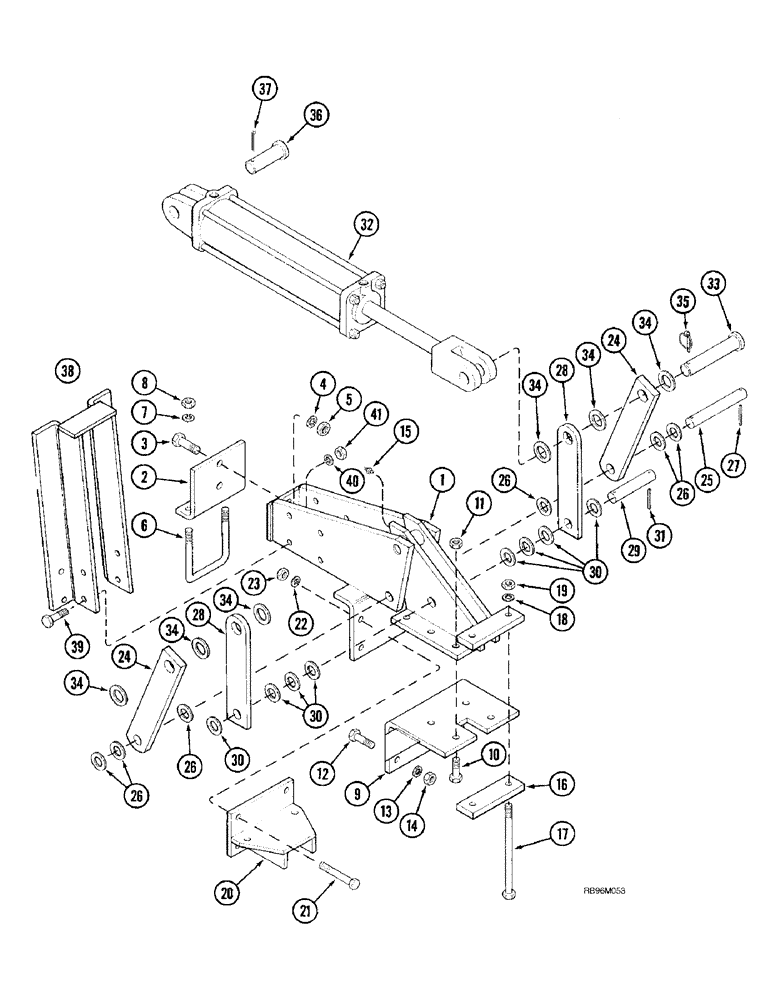
1

141060A1

HINGE

- secondary wing lift, rear

2шт.

2

140991A1

BAR

ANGLE - hinge support

2шт.

3

426-1232

BOLT,Hex, 3/4" - 10 x 2", Gr 8

8шт.

4

492-11075

LOCK WASHER,3/4"

3/4"

8шт.

5

429-1012

NUT,3/4"-10, G8

- hex, 3/4 inch NC, grade 8

8шт.

6

608294R1

U-BOLT,U, 5/8" - 11 x 134mm

- 5/8 inch NC

2шт.

7

492-11062

BEARING WASHER,5/8"

WASHER, LOCK, 5/8"

4шт.

8

425-1010

NUT,5/8"-11, G5

4шт.

9

187355A1

LARGE PLATE

SUPPORT - hinge mounting

2шт.

10

413-1028

BOLT,Hex, 5/8" - 11 x 1-3/4", Gr 5

- hex, 5/8 NC x 1-3/4 inch

8шт.

11

231-42110

LOCK NUT,Hex, 5/8"-11, GB

NUT - hex, self-locking, 5/8 inch NC

8шт.

12

413-1032

BOLT,Hex, 5/8" - 11 x 2", Gr 5

- hex, 5/8 NC x 2 inch

8шт.

13

492-11062

BEARING WASHER,5/8"

WASHER, LOCK, 5/8"

8шт.

14

425-1010

NUT,5/8"-11, G5

8шт.

15

219-87

LUBE NIPPLE,1/4" - 28 NPTF

NIPPLE, LUBE, 1/4"-28 x .56" lg, Self-Tap

2шт.

16

142354A1

BAR

- mounting

2шт.

17

413-10160

BOLT,Hex, 5/8" - 11 x 10", Gr 5

- hex, 5/8 NC x 10 inch

4шт.

18

492-11062

BEARING WASHER,5/8"

WASHER, LOCK, 5/8"

4шт.

19

425-1010

NUT,5/8"-11, G5

4шт.

20

142370A1

STOP

- rigid wing

2шт.

21

413-1060

BOLT,Hex, 5/8" - 11 x 3-3/4", Gr 5

- hex, 5/8 NC x 3-3/4 inch

8шт.

22

492-11062

BEARING WASHER,5/8"

WASHER, LOCK, 5/8"

8шт.

23

425-1010

NUT,5/8"-11, G5

8шт.

24

189248A1

BAR

- rigid

4шт.

25

811962C1

PIN

- pivot

2шт.

26

495-81074

WASHER,1 1/32" x 1 3/4" x .120"

- flat, 1-1/32 x 1-3/4 x 7/64"

12шт.

27

438-31636

PIN,1/4" x 2 1/4", Coiled

4шт.

28

186864A1

BAR

LINK - outer hinge

4шт.

29

854527C1

PIN

- pivot

2шт.

30

495-81074

WASHER,1 1/32" x 1 3/4" x .120"

- flat, 1-1/32 x 1-3/4 x 7/64"

16шт.

31

438-31636

PIN,1/4" x 2 1/4", Coiled

4шт.

32

1272149C92

CYLINDER,Double Acting, 38.1mm Rod, 406.4mm Stroke

ASSEMBLY - 89 (3-1/2) ID x 406 mm (16 inch) stroke (See Page 8-31)

2шт.

32

1272149C92R

REMAN-HYD CYLINDER

5800 CASE IH CHISEL PLOW, ASSEMBLY

2шт.

32

1272149C92C

CORE-HYD CYLINDER

Return Number

2шт.

33

427-20625

CLEVIS PIN,31.75mm OD x 158.75mm L

PIN - clevis, 1-1/4 x 6-1/4 inch, hardened

2шт.

34

495-81203

WASHER,1 9/32" x 2" x .120"

- flat, 1-9/32 x 2 x 1/8 inch

12шт.

35

A30338

PIN

- lock

2шт.

36

427-20325

CLEVIS PIN,1 1/4" x 3 1/4"

PIN - clevis, 1-1/4 x 3-1/4 inch, hardened

2шт.

37

432-1632

COTTER PIN,1/4" x 2"

Pin, Split (Cotter), 1/4" x 2"

2шт.

38

183133A2

STAND

SUPPORT - wing stop

2шт.

39

413-1032

BOLT,Hex, 5/8" - 11 x 2", Gr 5

- hex, 5/8 NC x 2 inch

8шт.

40

492-11062

BEARING WASHER,5/8"

WASHER, LOCK, 5/8"

8шт.

41

425-1010

NUT,5/8"-11, G5

8шт.

Выбрано товаров: 43