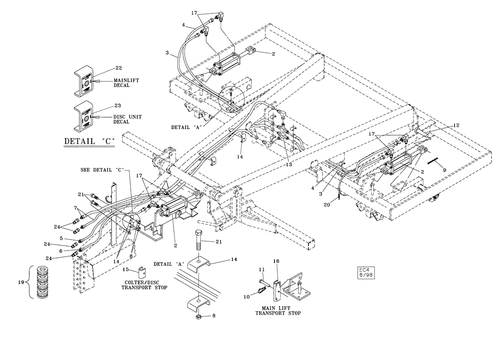
Запчасти Case IH 6750 (35.100.01) - HYDRAULICS WITH COULTER ATTACHMENT (08) - HYDRAULICS

Схема запчастей Case IH 6750 - (35.100.01) - HYDRAULICS WITH COULTER ATTACHMENT (08) - HYDRAULICS
24
8
9
21
17
14
2
24
21
12
2
17
6
8
7
11
2
3
20
14
16
17
19
14
24
5
3
15
4
10
4
13
22
23
FIT
1:1
100%

Артикул

Название

Примечание

Количество

2

25330082

HYDRAULIC CYLINDER,Double Acting, 31.75mm Rod, 203.2mm Stroke

3 x 8, 3000 PSI, 7 & 9 Shank

3шт.

2

87423763

HYDRAULIC CYLINDER,Double Acting, 31.75mm Rod, 203.2mm Stroke

3-1/2 x 8, 3000 PSI, 11 & 13 Shank

2шт.

3

25600655

HYDRAULIC HOSE,0.38" ID x 55.00", SAE 100R17

7, 9, & 13 Shank

2шт.

3

25600662

HYDRAULIC HOSE,0.38" ID x 72.00", SAE 100R17

11 Shank

2шт.

4

25600664

HYDRAULIC HOSE,0.38" ID x 60.00", SAE 100R17

7, 9, & 13 Shank

2шт.

4

25600678

HYDRAULIC HOSE,0.38" ID x 78.00", SAE 100R17

11 Shank

2шт.

5

25610713

HYDRAULIC HOSE

3/8 x 118

1шт.

6

25610712

HYDRAULIC HOSE

3/8 x 110

1шт.

7

25610901

HYDRAULIC HOSE

1/2 x 196

2шт.

8

425-106

NUT,3/8"-16, Cl 5

10шт.

9

432-1232

COTTER PIN,3/16" OD x 2" L

6шт.

10

14720411

COTTER PIN

PIN, COTTER 1/8 x 2, Long Hair

2шт.

11

14810251

HEADED PIN,15.88mm OD x 96.77mm L

5/8 x 3-1/8, Clevis

2шт.

12

25890100

KIT

1, Cylinder Bag

3шт.

13

218-594

TEE,3/4"-16, 37 Degree

2шт.

14

06200125

HOSE CLAMP

Double

9шт.

15

09650207

STAY

Cylinder Transport, Coulter & Disc

1шт.

16

04632700

STAY

Cylinder, Main Lift

2шт.

17

218-5106

90 ELBOW,90 Degree Elbow, 3/4" - 16 Male JIC x 3/4" - 16 Male ORB

6шт.

19

25800010

CYLINDER

1-1/4, Stroke Control

3шт.

20

30007000

CABLE TIE,.350" x 20.9"

CABLE STRAP Tie

4шт.

21

424-624

BOLT,Hex, 3/8" - 16 x 1-1/2", Gr 2

8шт.

22

18534237

DECAL

Main Lift

1шт.

23

18534239

DECAL

Disc Unit

1шт.

24

25705041

COUPLING

Male, ISO-3/4, SAEF Hydraulic

4шт.

Выбрано товаров: 25