Запчасти Case IH 730B (35.100.04) - DISC LEVELER HYDRAULICS (08) - HYDRAULICS

Схема запчастей Case IH 730B - (35.100.04) - DISC LEVELER HYDRAULICS (08) - HYDRAULICS
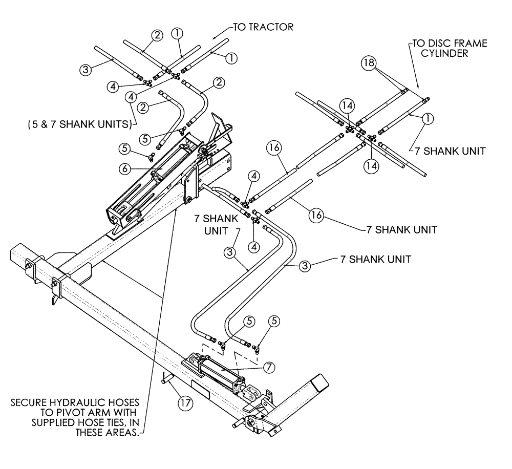
3
16
3
5
1
1
6
5
4
7
16
14
4
2
4
17
5
14
4
1
2
3
2
5
18
FIT
1:1
100%

Артикул

Название

Примечание

Количество

1

25610700

HYDRAULIC HOSE

3/8" x 280" Long

2шт.

2

25600692

HYDRAULIC HOSE,0.38" ID x 108.00", SAE 100R17

Long

4шт.

3

25600814

HYDRAULIC HOSE

3/8" x 148" Long, 7 Shank

1шт.

4

218-594

TEE,3/4"-16, 37 Degree

JICM

2шт.

5

218-5106

90 ELBOW,90 Degree Elbow, 3/4" - 16 Male JIC x 3/4" - 16 Male ORB

Fitting

4шт.

6

25330083

CYLINDER ASSY.

3" x 8", Main Lift, 3000 PSI

2шт.

7

25330101

HYDRAULIC CYLINDER,Double Acting, 31.75mm Rod, 254mm Stroke

3" x 10", Wing Lift, 3000 PSI

2шт.

7

25330101R

REMAN-HYD CYLINDER

530B, 730B, Both ECOLO-TIGER MULCH CHISEL, Wing Lift, 3000 PSI

2шт.

7

25330101C

CORE-HYD CYLINDER

Return Number

2шт.

8

06200125

HOSE CLAMP

(Not Shown)

1шт.

9

30007000

CABLE TIE,.350" x 20.9"

CABLE STRAP Plastic Hose Tie, 24" (Not Shown)

1шт.

10

289862C1

CABLE TIE,3/16" x 7"

CABLE STRAP 6", Plastic Hose Tie (Not Shown)

1шт.

12

413-624

BOLT,Hex, 3/8" - 16 x 1-1/2", Gr 5

1 Clamp (Not Shown)

1шт.

12

413-636

BOLT,Hex, 3/8" - 16 x 2-1/4", Gr 5

2 Clamps (Not Shown)

1шт.

12

413-648

BOLT,Hex, 3/8" - 16 x 3", Gr 5

3 Clamps (Not Shown)

1шт.

12

413-664

BOLT,Hex, 3/8" - 16 x 4", Gr 5

4 Clamps (Not Shown)

1шт.

13

425-106

NUT,3/8"-16, Cl 5

NC Hex

1шт.

14

218-654

4 WAY CONNECTION,3/4"-16, 37 Degree

Cross, JICM, 7 Shank Disc Frame Only

2шт.

15

25600615

HYDRAULIC HOSE,0.38" ID x 173.00", SAE 100R17

Long (Not Shown)

4шт.

16

25600607

HYDRAULIC HOSE,0.38" ID x 76.00", SAE 100R17

Long

2шт.

17

25890100

KIT

Pin, 1" Dia. Clevis Pin Bag of Parts

2шт.

18

25705041

COUPLING

ISO, Male

2шт.

Выбрано товаров: 22