Запчасти Case IH 163 (AQ-12) - TRANSPORT ATTACHMENT, FOR 6-ROW AND 8-ROW, 1972 AND SINCE

Схема запчастей Case IH 163 - (AQ-12) - TRANSPORT ATTACHMENT, FOR 6-ROW AND 8-ROW, 1972 AND SINCE
16
12
7
5
9
2
6
11
14
18
5
4
1
4
10
9
3
17
15
19
8
13
FIT
1:1
100%

Артикул

Название

Примечание

Количество

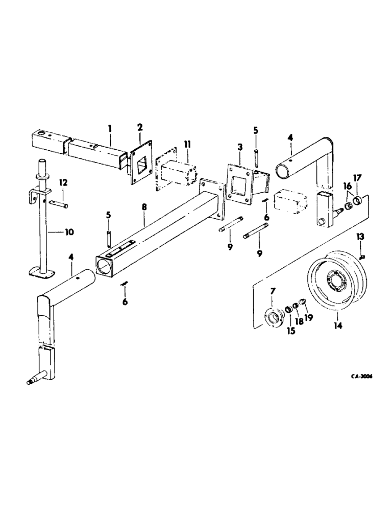
1

549841R1

TUBE

ASSY

1шт.

2

549838R1

BRACKET

ASSY, hitch

1шт.

271771

HOUSING,Hex, 3/4" - 10 x 2", Gr 5

SCREW, 3/4-10 x 2 znd hex-hd cap

4шт.

87340

LOCK WASHER,Helical Spring, 0.759" ID, CST, ZND

WASHER, LOCK, 3/4"

4шт.

280954

NUT,3/4"-10, G5

4шт.

3

549828R1

TUBE ASSY, short

1шт.

4

549835R4

AXLE ASSY

2шт.

5

541769R1

PIN

7/8 diameter

2шт.

6

517843R1

COTTER PIN

PIN, quick attachable cot.

4шт.

7

472220R21

HUB

W/FITTING, wheel

2шт.

443804

SCREW, 1/4-28 x 1/4 C-Z slt-ov-pt hdls set

2шт.

366112R1

WASHER

25/32 x 1-1/4 x 11 ga C-Z

2шт.

69442D

NUT

slt-hex.

2шт.

87395

COTTER PIN,1/8" OD x 1-1/4" OAL

PIN, SPLIT (COTTER), 1/8" x 1-1/4"

2шт.

86636814

LUBE NIPPLE,1/4"-28 x .52" lg

FITTING, 1/4-28 NF str-lub

2шт.

8

549831R1

TUBE

ASSY, long

1шт.

9

549834R1

ROD

threaded

4шт.

NLS

NO LONGER SERVICED

LOCK, 7/8"

8шт.

425-1014

NUT,7/8"-9, G5

NUT, 7/8"-9, G5

8шт.

10

546168R1

STAND ASSY

1шт.

473865R91

LINCH PIN

PIN, quick attachable cot.

1шт.

11

TUBE ASSY, refer to frame unit

1шт.

12

493990R1

PIN

pointed 3/4 diameter

2шт.

13

351079R1

BOLT,Hex Counter Shank, 1/2" - 20 x 23/32"

conical hd

8шт.

14

463036R1

WHEEL (STEERING)

WHEEL ASSY, 14 x 5 J, recommended tire size 8.50 x 14, 8.00 x 14, 7.50 x 14 or 7.00 x 14

2шт.

15

651815R91

BEARING ASSY,7.508" ID x 17.82" OD x 6"

BEARING ASSY, outer cone

2шт.

15

651815R91GV

BEARING CONE

Value, Cone Bearing

2шт.

16

651818R91

ROLLER BEARING,31.77 mm ID x 16.08 mm

BEARING ASSY, wheel hub inner cone

2шт.

17

651817R1

BEARING CUP

BEARING, inner cup

2шт.

17

651817R1GV

BEARING CUP

Value, Bearing Cup

2шт.

18

651814R1

BEARING CUP

BEARING, outer cup

2шт.

19

651194R1

CAP

wheel brg hub

2шт.

472221R91

SEAL,39.57mm ID x 58.6mm OD x 7.37mm Thk

wheel hub oil

2шт.

472222R1

SLEEVE

oil seal wear

2шт.

Выбрано товаров: 34