Запчасти Case IH 468 (Y-02) - MAIN FRAME

Схема запчастей Case IH 468 - (Y-02) - MAIN FRAME
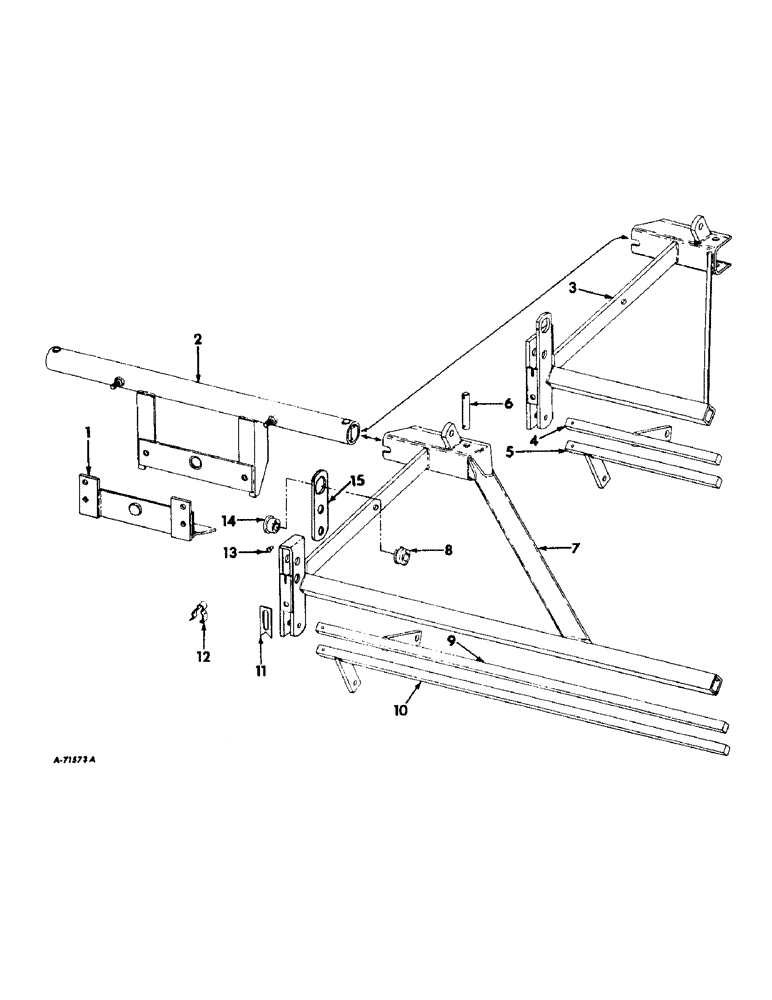
2
1
15
12
8
13
5
11
14
7
4
9
3
10
6
FIT
1:1
100%

Артикул

Название

Примечание

Количество

1

467618R91

PICK-UP, frame

1шт.

88725

BOLT,Hex, 3/4" - 10 x 1 3/4", Gr 5, Full Thd

2шт.

80280173

BOLT,Hex, 3/4" - 10 x 2 3/4", Gr 5

SCREW, 3/4 x 2-3/4 1 no. C-Z pltd cap

2шт.

467750R1

WASHER

25/32 x 1-1/2 in. x 11 ga C-Z pltd

2шт.

2

467600R91

FRAME, attaching

1шт.

280954

NUT,3/4"-10, G5

2шт.

467750R1

WASHER

25/32 x 1-1/2 in. x 11 ga C-Z pltd

2шт.

413-1224

BOLT,Hex, 3/4" - 10 x 1-1/2", Gr 5

SCREW, 3/4 x 1-1/2 cap

2шт.

3

467621R92

FRAME, main LH, for two-row

1шт.

3

467622R92

FRAME, main RH, for two-row

1шт.

4

467631R91

ROCKSHAFT, LH, for two-row w/selective lift

1шт.

NLS

NO LONGER SERVICED

Split (Cotter), 1/4" x 2 3/4"

1шт.

Q3493

WASHER, 2-9/32 x 3 in. x 14 ga

1шт.

4

467632R91

ROCKSHAFT, RH, for two-row w/selective lift

1шт.

103425

PIN,1/4" x 2 3/4"

Split (Cotter), 1/4" x 2 3/4"

1шт.

Q3493

WASHER, 2-9/32 x 3 in. x 14 ga

1шт.

5

467634R91

ROCKSHAFT, LH, for two-row w/simultaneous lift

1шт.

NLS

NO LONGER SERVICED

Split (Cotter), 1/4" x 2 3/4"

1шт.

Q3493

WASHER, 2-9/32 x 3 in. x 14 ga

1шт.

5

467635R91

ROCKSHAFT, RH, for two-row w/simultaneous lift

1шт.

103425

PIN,1/4" x 2 3/4"

Split (Cotter), 1/4" x 2 3/4"

1шт.

Q3493

WASHER, 2-9/32 x 3 in. x 14 ga

1шт.

6

467617R1

PIN

main frame hinge

1шт.

20340R1

COTTER PIN,1/4" x 1 1/2"

Pin, Split (Cotter), 1/4" x 1 1/2"

2шт.

7

467606R92

FRAME ASSY, main LH, for four-row, order frame 477827R91, bar, 477824R1 and attaaching hardware, 1962-63

1шт.

7

477827R91

FRAME ASSY, main LH, for four-row

64шт.

7

467607R92

FRAME ASSY, main RH, for four-row, order frame, 477828R91, bar 477824R1 and attaching hardware, 1962-63

1шт.

7

477828R91

FRAME ASSY, main RH, for four-row

64шт.

8

522496R1

BUSHING

BEARING, rockshaft outer

1шт.

9

467625R91

ROCKSHAFT, LH, for rour-row w/selective lift, simultaneous lift 1963

1шт.

NLS

NO LONGER SERVICED

Split (Cotter), 1/4" x 2 3/4"

1шт.

Q3493

WASHER, 2-9/32 x 3 in. x 14 ga

1шт.

9

467626R91

ROCKSHAFT, RH, for four-row w/selective lift, simultaneous lift 1963

1шт.

103425

PIN,1/4" x 2 3/4"

Split (Cotter), 1/4" x 2 3/4"

1шт.

Q3493

WASHER, 2-9/32 x 3 in. x 14 ga

1шт.

10

467629R91

ROCKSHAFT, LH, for four-row w/simultaneous lift, 1962-63

1шт.

NLS

NO LONGER SERVICED

Split (Cotter), 1/4" x 2 3/4"

1шт.

Q3493

WASHER, 2-9/32 x 3 in. x 14 ga

1шт.

10

467630R91

ROCKSHAFT, RH, for four-row w/simultaneous lift, 1962-63

1шт.

103425

PIN,1/4" x 2 3/4"

Split (Cotter), 1/4" x 2 3/4"

1шт.

Q3493

WASHER, 2-9/32 x 3 in. x 14 ga

1шт.

11

525670R2

BAR

LOCK, frame

1шт.

17476R1

BOLT, 3/4 x 1-1/2 pln type 1

1шт.

425-1012

NUT,3/4"-10, G5

3/4 in.

1шт.

615168R1

WASHER

25/32 x 1-1/2 in. x 11 ga

1шт.

12

467804R1

CLAMP, hydraulic hose

1шт.

13

125617

LUBE NIPPLE,3/16" x .61 lg, Drive

FITTING, 3/16 in. drive type lubrication

1шт.

14

467636R1

HUB

BEARING, rockshaft inner

1шт.

15

477824R1

BAR, head bracket, for four-row (64)

2шт.

102637

NUT,1/2"-13, G5

2шт.

179885

BOLT,Hex, 1/2" - 13 x 1 1/2", Gr 5

2шт.

103323

LOCK WASHER,1/2"

WASHER, LOCK, 1/2"

2шт.

Выбрано товаров: 52