Запчасти Case IH 468 (Y-04) - MAIN FRAME

Схема запчастей Case IH 468 - (Y-04) - MAIN FRAME
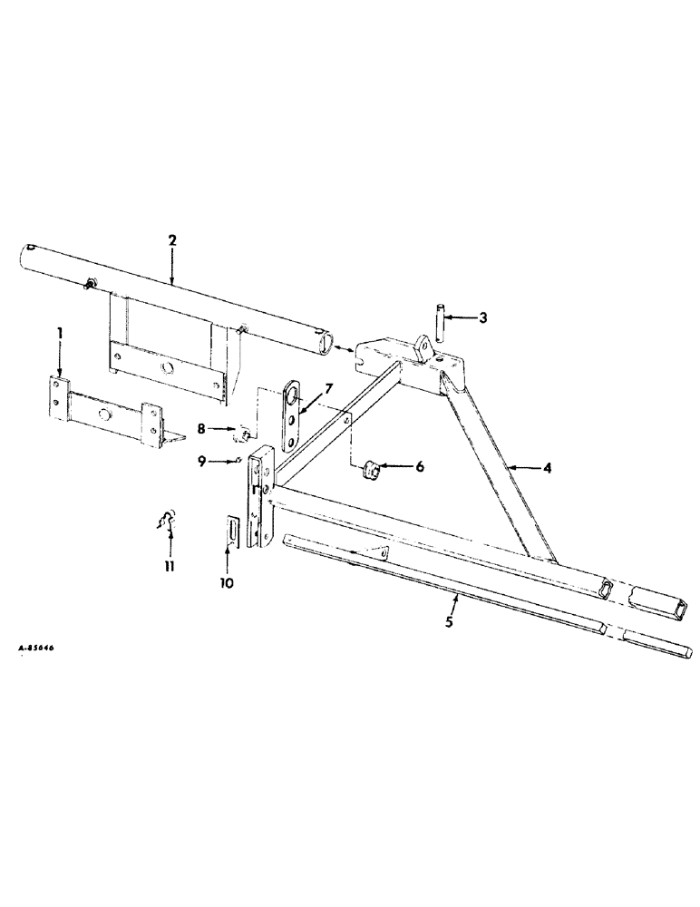
7
5
9
2
11
8
4
6
3
1
10
FIT
1:1
100%

Артикул

Название

Примечание

Количество

1

467618R91

PICKUP ASSY, frame

1шт.

88725

BOLT,Hex, 3/4" - 10 x 1 3/4", Gr 5, Full Thd

2шт.

80280173

BOLT,Hex, 3/4" - 10 x 2 3/4", Gr 5

SCREW, 3/4 x 2-3/4 in. C-Z pltd cap

2шт.

467750R1

WASHER

25/32 x 1-1/2 in. x 11 ga C-Z pltd

2шт.

2

467600R91

FRAME ASSY, attaching

1шт.

280954

NUT,3/4"-10, G5

2шт.

NLS

NO LONGER SERVICED

SCREW, 3/4 x 1-1/2 in. cap

2шт.

467750R1

WASHER

25/32 x 1-1/2 in. x 11 ga C-Z pltd

2шт.

3

467617R1

PIN

main frame hinge

2шт.

20340R1

COTTER PIN,1/4" x 1 1/2"

Pin, Split (Cotter), 1/4" x 1 1/2"

4шт.

4

484212R91

FRAME ASSY, main LH

1шт.

4

484211R91

FRAME ASSY, main RH

1шт.

5

484215R91

ROCKSHAFT ASSY, LH

1шт.

5

484214R91

ROCKSHAFT ASSY, RH

1шт.

NLS

NO LONGER SERVICED

Split (Cotter), 1/4" x 2 3/4"

1шт.

Q3493

WASHER, 2-9/32 x 3 in. x 14 ga

1шт.

6

522496R1

BUSHING

BEARING, rockshaft outer

4шт.

7

477824R1

BAR, head bracket

2шт.

102637

NUT,1/2"-13, G5

4шт.

179885

BOLT,Hex, 1/2" - 13 x 1 1/2", Gr 5

4шт.

103323

LOCK WASHER,1/2"

WASHER, LOCK, 1/2"

4шт.

8

467636R1

HUB

BEARING, rockshaft inner

2шт.

9

125617

LUBE NIPPLE,3/16" x .61 lg, Drive

FITTING, 3/16 in. drive type lubrication

2шт.

10

525670R2

BAR

LOCK, frame

2шт.

17476R1

BOLT, 3/4 x 1-1/2 in. mach

2шт.

220081

NUT

3/4 in.

2шт.

615168R1

WASHER

25/32 x 1-1/2 in. x 11 ga

2шт.

11

467804R1

CLAMP, hydraulic hose, tractor channel

2шт.

Выбрано товаров: 28