Запчасти Case IH ECOLO-TIGER 875 (75.200.AC[24]) - DISK LEVELER DOUBLE EDGE HYDRAULIC REEL13 SHANK 26 FOOT (75) - SOIL PREPARATION

Схема запчастей Case IH ECOLO-TIGER 875 - (75.200.AC[24]) - DISK LEVELER DOUBLE EDGE HYDRAULIC REEL13 SHANK 26 FOOT (75) - SOIL PREPARATION
75.200.ac 05
32
5
28
21
2
9
30
20
13
27
22
24
17
29
33
19
75.200.af 06
12
16
1
6
11
75.200.ac 06
25
26
34
7
75.200.ac 20
4
10
31
75.200.af 05
24
23
3
8
18
15
25
14
FIT
1:1
100%

Артикул

Название

Примечание

Количество

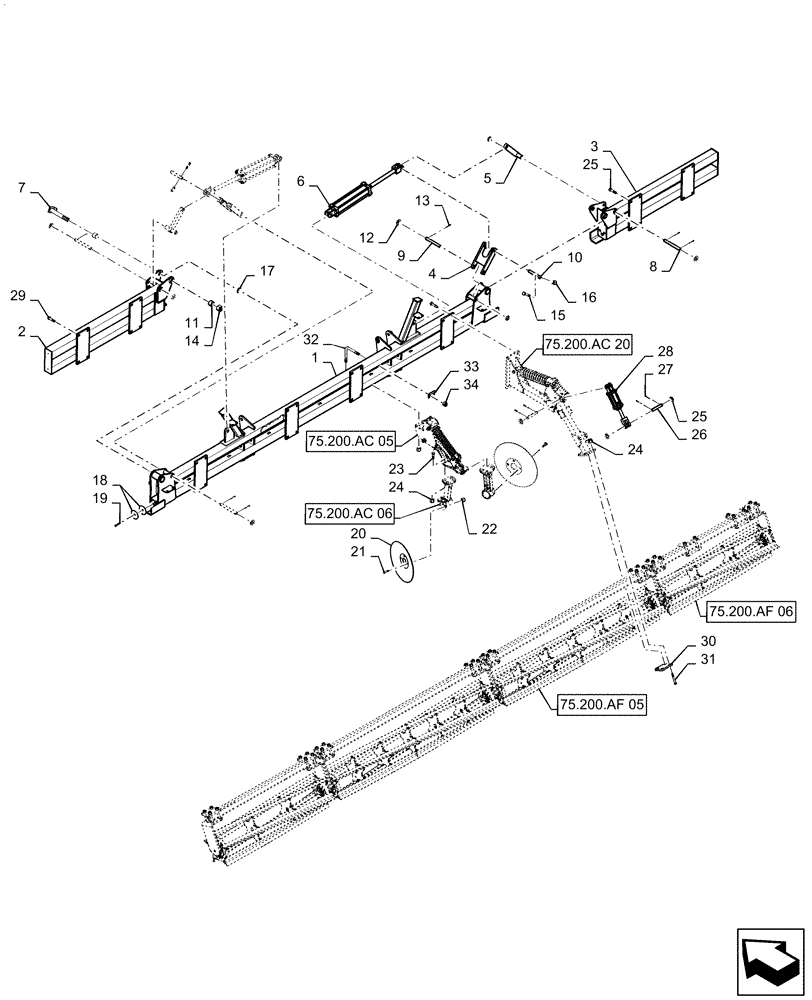
1

47406982

FRAME

Leveler Painted With Decals

1шт.

2

47408692

FRAME

Left Wing

1шт.

3

47408697

FRAME

Right Wing

1шт.

4

47407046

LINK

Wing Hinge

2шт.

5

87755236

LINK

Leveler Hinge

2шт.

6

84220783

HYDRAULIC CYLINDER,Double Acting, 38.1mm Rod, 406.4mm Stroke

3.5 X 16"

2шт.

7

84407881

PIN

1.5" Wing Pivot

2шт.

8

84407853

PIN

Leveler Lift

2шт.

9

47407066

PIN

Wing Lift

2шт.

10

87748424

PIN

Cylinder

2шт.

11

87503066

BUSHING,38.29mm ID x 50.93mm OD x 37.35mm L

2.0 X 1.5"

4шт.

12

87367

WASHER,1.06" ID x 2" OD x 0.13" Thk

8шт.

13

88182

COTTER PIN,1/4" OD x 2" L

8шт.

14

87020431

LOCK NUT

1-1/2"

2шт.

15

87972

BOLT,Hex, 1/2" - 13 x 2 1/2", Gr 5

2шт.

16

88871

NUT,1/2"-13, GC

2шт.

17

17624022

BUSHING

1-1/2"

2шт.

18

47456755

SHIM

Wing

4шт.

19

87689

BOLT,1/2"-13 x 1.813" OAL, Gr 5

2шт.

20

84180366

DISK HARROW

459.74 X 63.5 X 3"

26шт.

21

280486

CARRIAGE BOLT,Sq Nk, 1/2" - 13 x 1", Gr 5, Full Thd

104шт.

22

280431

NUT,1/2"-13, G5

104шт.

23

88556

BOLT,Hex, 5/8" - 11 x 2 1/4", Gr 5

52шт.

24

85700693

NUT,5/8" - 11, Gr C

116шт.

25

86624170

WASHER,1.03" ID x 1.5" OD x 0.12" Thk

48шт.

26

47430196

PIN

Cylinder

16шт.

27

88182

COTTER PIN,1/4" OD x 2" L

32шт.

28

25320040

CYLINDER ASSY.,Double Acting, 28.7mm Rod, 101.6mm Stroke

2.0 X 4"

8шт.

29

87630

BOLT,Hex, 5/8" - 11 x 2 1/2", Gr 5

32шт.

30

47399610

PLATE

Arm Basket

8шт.

31

86529695

BOLT,Hex, 5/8" - 11 x 4 1/2", Gr 8

32шт.

32

87427192

SPECIAL BOLT

0.75 X 5.94"

28шт.

33

84575666

PLATE

L- Bolt Brace

14шт.

34

280375

NUT,3/4"-10, GC

59шт.

Выбрано товаров: 34