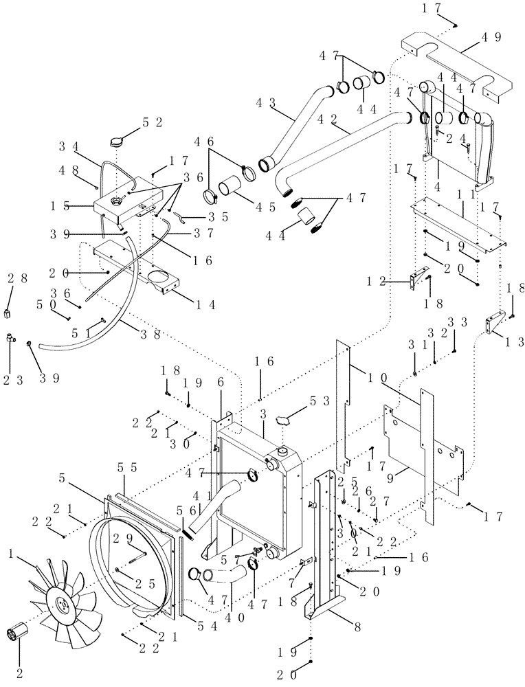
Запчасти Case IH PX140 (02-01) - COOLING SYSTEM (02) - ENGINE

Схема запчастей Case IH PX140 - (02-01) - COOLING SYSTEM (02) - ENGINE
22
19
12
54
33
47
16
32
40
18
25
17
39
38
35
44
45
16
55
31
39
37
20
48
18
6
19
17
34
16
36
7
21
5
43
42
26
44
56
8
19
20
21
13
18
51
52
57
47
22
17
44
25
21
53
20
50
47
17
30
47
24
28
11
47
2
27
1
17
19
3
4
36
30
46
18
22
29
14
17
10
41
22
15
21
47
20
9
47
23
49
FIT
1:1
100%

Артикул

Название

Примечание

Количество

1

437611A1

FAN

12 Blade

1шт.

2

A184549

SPACER

Fan

1шт.

3

244295A1

RADIATOR

1шт.

See Figure 02-02

1шт.

4

82028450

INTERCOOLER

Charge Air Cooler

1шт.

5

187089A2

DEFLECTOR

Fan Shroud

1шт.

6

87444590

SUPPORT

Radiator, Left

1шт.

7

277896A1

BRACKET

2шт.

8

87444591

SUPPORT

Radiator, Right

1шт.

9

87445570

BAFFLE

1шт.

10

87445571

BAFFLE ASSY.

2шт.

11

87441986

BRACKET, SUPPORTING

1шт.

12

87441964

BRACKET

CAC Mount, Left

1шт.

13

87441965

BRACKET

CAC Mount, Right

1шт.

14

87444926

BRACKET, SUPPORTING

Deaeration Tank

1шт.

15

87422438

TANK

1шт.

16

87441708

NUT

4шт.

17

409-7412

BOLT,Hex Flg, 1/4" - 20 x 3/4", Spcl

19шт.

18

413-616

BOLT,Hex, 3/8" - 16 x 1", Gr 5

8шт.

19

492-11038

LOCK WASHER,3/8"

16шт.

20

425-106

NUT,3/8"-16, Cl 5

4шт.

21

492-11031

LOCK WASHER,5/16"

8шт.

22

425-105

NUT,5/16"-18, G5

8шт.

23

217-333

FITTING,90 Degree Elbow, 3/4" Hose Barb x 3/8" Male NPTF

90 degree, 3/4 inch stem end x PT (Replaces Fitting and Elbow)

1шт.

24

413-632

BOLT,Hex, 3/8" - 16 x 2", Gr 5

4шт.

25

896-15010

WASHER,11mm ID x 24mm OD x 3mm Thk

6шт.

26

892-11010

LOCK WASHER,M10

2шт.

27

614-10020

BOLT,Hex, M10 x 1.5 x 20mm, Cl 8.8, Full Thd

2шт.

28

NS

NOT SERVICED

Fitting (Order REF 23)

1шт.

29

814-10130

BOLT,Hex, M10 x 1.5 x 130mm, Cl 8.8

4шт.

30

495-11034

WASHER,5/16", SAE

4шт.

31

895-11008

WASHER,9mm ID x 16mm OD x 1.6mm Thk

2шт.

32

892-11008

LOCK WASHER,8mm ID

2шт.

33

614-8016

BOLT,Hex, M8 x 1.25 x 16mm, Cl 8.8, Full Thd

2шт.

34

87442013

HOSE,80.00 mm

5/16 ID x 36 in

1шт.

Cut From 194881A1

1шт.

35

303950A1

RADIATOR HOSE,7.90 mm ID x 76.20 mm, SAE J20R4

1шт.

36

J923527

CLAMP

Hose, 14 mm

5шт.

37

277644A1

HOSE

5/16 ID x 24 in

1шт.

38

239470A1

HOSE,0.75" ID x 47.00"

1шт.

39

J937613

HOSE CLAMP

2шт.

40

87416817

HOSE,57.50 mm ID, 58.00 mm ID x 310.20 mm, SAE J20, SAE 20R4 CLASS D-1

Lower

1шт.

41

87416816

HOSE,45.00 mm ID, 57.50 mm ID x 328.60 mm, SAE J20, SAE 20R4 CLASS D1

Upper

1шт.

42

87416798

TUBE,2.5" OD

Charge Air Cooler, Right

1шт.

43

87416799

TUBE,63.50 mm OD x 639.2 mm L

Charge Air Cooler, Left

1шт.

44

87416333

HOSE

2-1/2 ID x 3 in

3шт.

45

87405430

HOSE

3 ID x 4 in

1шт.

46

87416749

CLAMP,2.75" - 3.62", Worm Gear

2шт.

47

L115548

CLAMP,57.15mm - 79.38mm

2-1/4 - 3-1/8 inch

11шт.

48

515-22127

CLAMP,1/2", Insul, 5/16" Bolt

P-type

3шт.

49

87445575

BAFFLE

1шт.

50

241173A1

FITTING

1шт.

51

515-23254

CLAMP,1", Insul, 3/8" Bolt

P-type

1шт.

52

A170241

RADIATOR CAP

15 psi

1шт.

53

400586R1

RADIATOR CAP

0 psi

1шт.

54

190561A2

SEAL

Fan

2шт.

55

190562A2

SEALING STRIP,30mm W x 546mm L x 12.7mm Thk

2шт.

56

254026A1

HOSE CLAMP,44.45mm - 66.67mm

1-3/4 - 2-5/8 inch

1шт.

57

81465471

DRAINCOCK/TAP SUPPLY

Radiator

1шт.

Выбрано товаров: 59