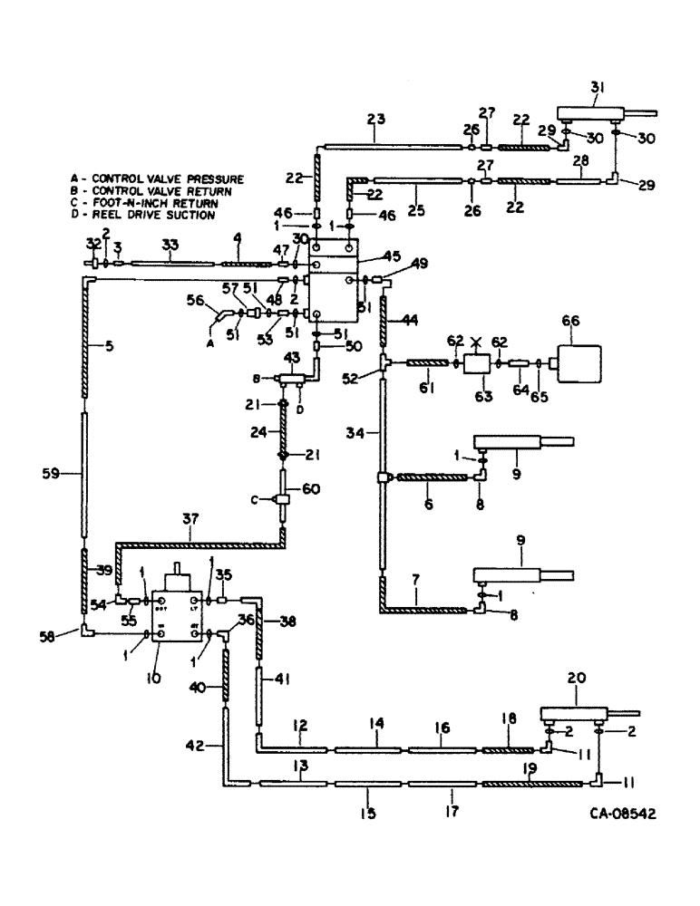
Запчасти Case IH 1420 (10-06) - HYDRAULICS, HEADER LIFT, STEERING AND UNLOADER SWING CYLINDER (07) - HYDRAULICS

Схема запчастей Case IH 1420 - (10-06) - HYDRAULICS, HEADER LIFT, STEERING AND UNLOADER SWING CYLINDER (07) - HYDRAULICS
28
16
57
32
10
9
59
51
44
2
60
21
33
27
5
45
1
12
14
58
21
18
62
11
3
30
35
22
51
64
23
53
46
c
2
50
d
56
11
6
26
24
22
26
19
42
46
1
61
39
1
b
22
7
34
17
2
25
8
54
51
a
4
30
51
13
1
15
65
1
1
41
43
52
1
49
2
55
40
20
51
30
31
63
66
48
47
22
38
29
37
62
27
36
29
9
8
FIT
1:1
100%

Артикул

Название

Примечание

Количество

1

570828R1

O-RING,0.087" Thk x 0.644" ID, -908, Cl 6, 90 Duro

1/2 OD tube

1шт.

2

364839R1

O-RING,0.078" Thk x 0.468" ID, -906, Cl 6, 90 Duro

6-1, 90 Duro, .468" ID x .078" Thk, 3/8 OD tube

1шт.

3

9410202

HYD CONNECTOR,9/16"-18, 37 Degree x 9/16"-18, O-Ring

CONNECTOR, 9/16-18 37 deg flared

1шт.

4

155309C91

HYDRAULIC HOSE,0.31" ID x 20.00", SAE 100R1

Reel Lift 0.31" ID x 20.00", SAE 100R1

1шт.

5

187696C1

HOSE

ASSY, steering pressure, 30 in., 762 mm, (Replaces 183696C1) to 5500

1шт.

5

1310755C1

HOSE ASSY.

HOSE ASSY, steering pressure, 30 in., 762 mm, Start Serial: 5501

1шт.

6

144140C1

HOSE,9.53mm ID x 787.4mm L, SAE 100R1

ASSY, header lift cyl, 31 in., replaces 587582R91

1шт.

7

1310709C1

HOSE

ASSY, header lift cyl, 45 in., replaces 196822C1

1шт.

8

9410977

ELBOW,90 Degree, 3/4"-16, 37 Degree x 3/4"-16, O-Ring

3/4-16 37 deg hyd tube 90 deg

2шт.

9

127779C94

CYLINDER,57.07mm Rod, 520.7mm Stroke

header lift, for details refer to this group under header lift cylinder and cyl-1 section a

1шт.

9

127779C94R

REMAN-HYD CYLINDER

1420 INTERNATIONAL HARVESTER COMBINE (NORTH AMERICA), Header lift (1/80-12/82)

1шт.

9

127779C94C

CORE-HYD CYLINDER

Return Number

1шт.

224718C92

SEAL KIT

KIT, cylinder service

1шт.

10

PUMP, steering hand, for details refer to this group under steering hand pump

1шт.

11

9410976

ELBOW,90 Degree, 9/16"-18, 37 Degree x 9/16"-18, O-Ring

9/16-18 37 deg hyd tube 90 deg

2шт.

12

183889C1

HYD TUBE,0.375" OD, 1037, 506.5 mm Length

TUBE ASSY, steering forward intermediate outside

1шт.

13

187759C1

HYD TUBE

TUBE ASSY, steering forward intermediate inside

1шт.

14

183890C1

HYD TUBE

TUBE ASSY, steering rearward intermediate outside

1шт.

15

187760C1

HYD TUBE

TUBE ASSY, steering rearward intermediate inside

1шт.

16

183891C1

HYD TUBE

TUBE ASSY, steering rearward lower outside

1шт.

17

187761C1

HYD TUBE

TUBE ASSY, steering rearward lower inside

1шт.

18

178962C1

HOSE ASSY.

HOSE ASSY, steering cylinder, 60 in., 1524 mm, not for use with power guide axle

1шт.

18

179202C1

HOSE,7.94mm ID x 1727.2mm L, SAE 100R1

ASSY, steering cylinder, 68 in., 1727.2 mm, for use with power guide axle

1шт.

19

179202C1

HOSE,7.94mm ID x 1727.2mm L, SAE 100R1

ASSY, steering, 68 in., 1727.2 mm, not for use with power guide axle

1шт.

19

183920C1

HOSE ASSY.

HOSE ASSY, steering, 77 in., 1955.8 mm, for use with power guide axle

1шт.

20

548247R91

CYLINDER ASSY.,Double Acting, 22.35mm Rod, 228.6mm Stroke

CYLINDER ASSY, steering, w/o power guide wheels

1шт.

548357R91

SEAL KIT

cylinder service

1шт.

20

127913C91

CYLINDER

ASSY, steering, with power guide wheels

1шт.

73661C92

SEAL KIT

KIT, cylinder service, for details refer to steering cylinder in this group and cyl-1 section b

1шт.

21

183699C1

CLAMP,#6, 0.44/0.78 Type M Worm

hose

2шт.

22

66880C1

HOSE,6.35mm ID x 508mm L, SAE 100R1

Unloader Swing Valve, Replaces 183883C1 0.25" ID x 20.00", SAE 100R1

4шт.

23

187765C1

UNLOADING TUBE

TUBE ASSY, unloader swing cylinder upper

1шт.

24

HOSE, steering return, furnish 26 in. of 3/8 ID hose from 25 foot roll marked S118400 to 5500

1шт.

24

HOSE, steering return, furnish 26 in. of 1/2 ID hose from 25 foot roll marked S118466, Start Serial: 5501

1шт.

25

187766C1

UNLOADING TUBE

TUBE ASSY, unloader swing cylinder lower

1шт.

26

9403291

BHD LOCK NUT,Blkhd, 7/16"-20

NUT, 1/4 znd bulkhead union

2шт.

27

9403252

FITTING,Blkhd, 7/16"-20, 37 Degree x 7/16"-20, 37 Degree

UNION, 1/4 znd bulkhead

2шт.

28

196800C1

HYD TUBE

TUBE ASSY, unloader swing cylinder

1шт.

29

9410974

ELBOW,90 Degree, 7/16"-20, 37 Degree x 7/16"-20, O-Ring

7/16-20 37 deg hyd tube

2шт.

30

369751R1

O-RING,0.072" Thk x 0.351" ID, -904, Cl 6, 90 Duro

4-1, 90 Duro, .351" ID x .072" Thk, 1/4 OD tube

1шт.

31

113960C93

CYLINDER ASSY.,Double Acting, 19.05mm Rod, 381mm Stroke

CYLINDER, unloader swing, for service parts refer to cyl-1 section b

1шт.

137185

COTTER PIN,1/8" x 1"

PIN, SPLIT (COTTER), 1/8" x 1"

1шт.

22754R1

CLEVIS PIN,5/8" x 1.844"

PIN, CLEVIS, 5/8" x 1.844"

1шт.

28196R1

SPLIT PIN/SAFETY PIN

PIN, 5/8 x 2.250 clevis

1шт.

62240C92

SEAL KIT

KIT, cylinder service

1шт.

32

187562C1

QUICK MALE COUPLING

COUPLING ASSY, reel lift hose self-sealing male

1шт.

33

187771C1

HYD TUBE

TUBE ASSY, reel lift

1шт.

34

187757C1

TUBE ASSY.

TUBE ASSY, header lift cylinder

1шт.

35

587639R1

HYD CONNECTOR,9/16"-18, 37 Degree x 3/4"-18, O-Ring

CONNECTOR, 3/4-16 x 9/16-18 hyd tube

1шт.

36

935036R91

ELBOW

3/4-16 x 9/16-18 90 deg

1шт.

37

183693C1

HOSE

ASSY, steering hand pump return, 43.31 in., 1100.1 mm to 5500

1шт.

37

1310761C1

HOSE ASSY.

HOSE ASSY, steering hand pump return, 43.31 in., 1100.1 mm, used with Ross pump, Start Serial: 5501-2000

1шт.

37

1317939C1

HOSE

ASSY, steering hand pump return, 44.29 in., 1125 mm used with Danfoss pump, Start Serial: 20001

1шт.

38

1301418C1

HOSE ASSY.

HOSE ASSY, steering hand pump, LH, 39.37 in., 1000 mm used with Ross pump to 20000

1шт.

38

1317940C1

HOSE

ASSY, steering hand pump, LH, 41.33 in., 1050 mm used with Danfoss pump, Start Serial: 20001

1шт.

39

1327580C1

HOSE

ASSY, steering hand pump pressure, replaces 1279318C1 and 1317941C1, 41 inches, 1040 mm used with Danfoss pump, Includes: fitting and nut, Start Serial: 20001

1шт.

9403399

REDUCER,37 Degree, 1/2" x 1/4" Tube

FITTING, 1/2 x 1/4 C-Z hyd flared tube

1шт.

9403528

TUBE NUT,37 Degree, 3/4"-16, Type B

NUT, 1/2 C-Z hyd fld tube

1шт.

40

183694C1

HOSE ASSY.

HOSE ASSY, steering hand pump, RH, 41.34 in., 1050 mm used with Ross pump to 20000

1шт.

40

1317971C1

HOSE ASSY.

HOSE ASSY, steering hand pump, RH, 43.30 in., 1100 mm used with Danfoss pump 20001 to

1шт.

41

183888C1

HYD TUBE

TUBE ASSY, steering forward upper outside

1шт.

42

187758C1

HYD TUBE

TUBE ASSY, steering forward upper inside

1шт.

43

187888C1

TUBE

ASSY, header lift and steering return to 5500

1шт.

43

1310757C1

TUBE

ASSY, header lift and steering return, Start Serial: 5501

1шт.

44

1272473C91

TUBE ASSY.

TUBE ASSY, header lift

1шт.

45

VALVE ASSY, control, for details refer to this group under control valve, Includes: bolt and washer

1шт.

88574

BOLT,Hex, 5/16" - 18 x 1/2", Gr 5, Full Thd

1шт.

80681

LOCK WASHER,5/16"

WASHER, LOCK, 5/16"

1шт.

46

629349R1

HYD CONNECTOR,7/16"-20, 37 Degree x 3/4"-16, O-Ring

UNION, 7/16-20 x 3/4-16 37 deg

2шт.

47

394955R1

HYD CONNECTOR,9/16"-18, 37 Degree x 7/16"-20, O-Ring

UNION, 9/16-18 x 7/16-20 37 deg hyd tube

1шт.

48

324273R1

HYD CONNECTOR,3/4"-16, 37 Degree x 9/16"-18, O-Ring

CONNECTOR, 1/2 x 3/8 sht hyd fld

1шт.

49

9410204

HYD CONNECTOR,7/8"-14, 37 Degree x 7/8"-14, O-Ring

CONNECTOR, 5/8 C-Z hyd fld sht swivel

1шт.

50

574479R1

HYD CONNECTOR,1 1/16"-12, 37 Degree x 7/8"-14, O-Ring

UNION, 7/8-14 deg hyd

1шт.

51

364885R1

O-RING,0.097" Thk x 0.755" ID, -910, Cl 6, 90 Duro

5/8 OD tube

1шт.

52

TEE, accumulator hose, note

1шт.

53

1267158C1

CONNECTOR, ELEC

UNION, 7/8-14 o-ring

1шт.

54

9410281

ELBOW,90 Degree, 3/4"-16, 37 Degree x 3/4"-16, 37 Degree Fem Sw

1/2 hyd fld 90 deg swivel

1шт.

55

9410203

HYD CONNECTOR,3/4"-16, 37 Degree x 3/4"-16, O-Ring

CONNECTOR, 3/4-16 37 deg hyd flared

1шт.

56

9411106

ELBOW

5/8 C-Z hyd flared adj 45 deg

1шт.

57

1267150C91

FILTER ASSY

valve line pressure, Start Serial: 5501

1шт.

58

9410977

ELBOW,90 Degree, 3/4"-16, 37 Degree x 3/4"-16, O-Ring

1/2 C-Z hyd flared adj 90 deg

1шт.

58

1272100C1

ELBOW

inlet to hand pump orifice reducer, for correction of steering chatter to 5500

1шт.

58

1272098C1

ELBOW

inlet to hand pump orifice reducer, for correction of steering chatter, Start Serial: 5501

1шт.

59

183894C1

HYD TUBE

TUBE ASSY, steering pressure to 5500

1шт.

59

1310939C1

HYD TUBE

TUBE ASSY, steering pressure, Start Serial: 5501

1шт.

60

187754C1

TUBE

ASSY, steering return to 5500

1шт.

60

1310938C1

HYD TUBE

TUBE ASSY, steering return, Start Serial: 5501

1шт.

61

HOSE ASSY, ccumulator, note

1шт.

62

O-RING, note

2шт.

63

VALVE, needle, note

1шт.

64

UNION, note

1шт.

65

O-RING, note

1шт.

66

TANK, accumulator, note

1шт.

1272043C1

KIT

pressure line filter service consists of bronze element (NSS), spring (NSS), o-ring (NSS), gasket (NSS)

1шт.

Выбрано товаров: 94