Запчасти Case IH 1460 (07-025) - DRIVE TRAIN (04) - Drive Train

Схема запчастей Case IH 1460 - (07-025) - DRIVE TRAIN (04) - Drive Train
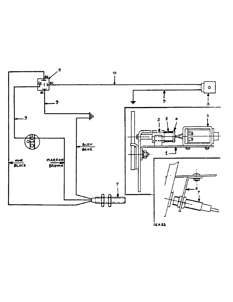
10
9
3
2
1
4
9
8
5
6
3
9
7
7
FIT
1:1
100%

Артикул

Название

Примечание

Количество

1

1312312C91

SUPPORT ASSY.

SPEED REDUCTION CONTROL - MAGNET - BRACKET, WITH 2

1шт.

628-8020

BOLT,Hex, M8 x 20, 10.9, Full Thd

2шт.

934310R1

NUT,M8, Cl 8

2шт.

3176200R1

WASHER

8.25 X 18 X 1.5 MM

2шт.

934309R1

LOCK WASHER,M8

2шт.

2

1312325C1

SPACER

MAGNET - BUSHING

1шт.

3

1312323C91

MAGNET ASSY, SPEED REDUCTION CONTROL

1шт.

931581R1

BOLT

M4 X 10 HEX HD

2шт.

30289R1

WASHER,M4

4.3 X 9 X .8 MM

4шт.

933832R1

LOCK WASHER,M4

2шт.

4

1312315R1

PIN, MAGNET STOP

1шт.

5

1312322R1

SPRING, MAGNET STOP

1шт.

6

1312316R1

SUPPORT, SPEED DETECTOR

1шт.

3177081R1

SCREW

M6 X 12 SLT-TRUSS-HD

2шт.

3174964R1

LOCK NUT

M6 FLANGE LOCK

2шт.

7

1312318C91

DETECTOR

GAUGE ASSY, SPEED

1шт.

8

3178859R1

RELAY

SPEED CONTROL 12V/15A

1шт.

9

1407470R1

CABLE ASSY.

BLACK, 2 - RELAY TO SOLENOID AND GROUND, 1 - MAGNET GROUND

3шт.

10

3157441R1

CABLE ASSY.

MAGNET TO RELAY

1шт.

Выбрано товаров: 0