Запчасти Case IH 1460 (10-027) - FEEDER AND SEPARATOR CLUTCH CYLINDER DIAGRAM "B" (07) - HYDRAULICS

Схема запчастей Case IH 1460 - (10-027) - FEEDER AND SEPARATOR CLUTCH CYLINDER DIAGRAM "B" (07) - HYDRAULICS
12
2
15
4
2
14
3
10
11
8
8
6
11
3
1
18
4
17
9
3
3
2
2
3
13
12
16
12
10
3
7
6
5
FIT
1:1
100%

Артикул

Название

Примечание

Количество

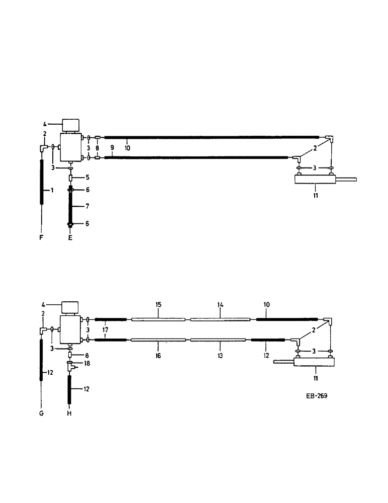
1

178961C1

HOSE,7.9 mm ID x 1270.00 mm, SAE 100R1

Seperator Clutch Pressure

1шт.

2

9410976

ELBOW,90 Degree, 9/16"-18, 37 Degree x 9/16"-18, O-Ring

6шт.

3

364839R1

O-RING,0.078" Thk x 0.468" ID, -906, Cl 6, 90 Duro

3/8 OD tube

12шт.

4

VALVE ASSY, FEEDER AND SEPARATOR CLUTCH - SEE FEEDER AND SEPARATOR CLUTCH VALVE

2шт.

5

178036C1

CONNECTOR, ELEC

CONNECTOR 9/16-18 X 3/8

1шт.

6

244713R1

HOSE CLAMP,#4, 0.25/0.62 Type M Worm

CLUTCH RETURN HOSE

2шт.

7

HOSE, SEPARATOR CLUTCH RETURN - 22 IN. OF 3/8 ID HOSE - FROM BULK LENGTH

1шт.

180730C1

HOSE

BULK LENGTH 50 FT

1шт.

8

9410202

HYD CONNECTOR,9/16"-18, 37 Degree x 9/16"-18, O-Ring

CONNECTOR, 3/8 IN.

3шт.

9

598931R91

HYDRAULIC HOSE,9.65 mm ID x 431.80 mm, SAE 100R1

SEPARATOR CLUTCH - 17 IN.

1шт.

10

155309C91

HYDRAULIC HOSE,0.31" ID x 20.00", SAE 100R1

Feeder and Separator Clutch

2шт.

11

CYLINDER ASSY, FEEDER AND SEPARATOR CLUTCH - SEE FEEDER AND SEPARATOR CLUTCH CYLINDER

2шт.

12

632455R91

HOSE

FEEDER CLUTCH PRESSURE - 14 IN.

3шт.

13

196823C1

LINE

TUBE ASSY, FEEDER CLUTCH LOWER FORWARD

1шт.

14

196793C1

HYD TUBE

FEEDER CLUTCH LOWER REARWARD

1шт.

15

196748C1

HYD TUBE

TUBE ASSY, FEEDER CLUTCH UPPER REARWARD

1шт.

16

196792C1

HYD TUBE

FEEDER CLUTCH UPPER FORWARD

1шт.

17

548745R1

HYDRAULIC HOSE,0.38" ID x 12.00", SAE 100R1

Feeder Clutch to Cylinder Upper

2шт.

18

9410332

TEE,37 Degree, 9/16"-18, x 9/16"-18, Fem Sw Run

SWIVEL 37 DEG FLARED

1шт.

Выбрано товаров: 19