Запчасти Case IH 1480 (10-13) - HYDRAULICS, FEEDER CLUTCH CYLINDER DIAGRAM, CONCEPT CONTROL (07) - HYDRAULICS

Схема запчастей Case IH 1480 - (10-13) - HYDRAULICS, FEEDER CLUTCH CYLINDER DIAGRAM, CONCEPT CONTROL (07) - HYDRAULICS
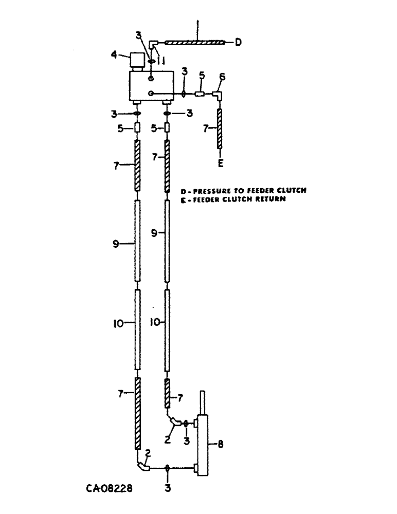
11
7
3
7
7
4
3
10
3
7
5
1
3
3
9
3
5
5
2
7
10
8
2
9
6
FIT
1:1
100%

Артикул

Название

Примечание

Количество

1

632455R91

HOSE

ASSY, feeder clutch pressure

1шт.

2

9411104

ELBOW,45 Degree, 9/16"-18, 37 Degree x 9/16"-18, O-Ring

9/16-18 45 deg hyd flr

2шт.

3

364839R1

O-RING,0.078" Thk x 0.468" ID, -906, Cl 6, 90 Duro

6-1, 90 Duro, .468" ID x .078" Thk, 3/8 OD tube

6шт.

4

VALVE, feeder clutch, refer to this group under feeder and separator clutch valve

1шт.

5

9410202

HYD CONNECTOR,9/16"-18, 37 Degree x 9/16"-18, O-Ring

CONNECTOR, 3/8 hyd fld sht swivel

3шт.

6

9410280

ELBOW,90 Degree, 9/16"-18, 37 Degree x 9/16"-18, 37 Degree Fem Sw

3/8 hyd fld 90 deg swivel

1шт.

7

155309C91

HYDRAULIC HOSE,0.31" ID x 20.00", SAE 100R1

Feeder Clutch 0.31" ID x 20.00", SAE 100R1

5шт.

8

133405C92

CYLINDER

feeder clutch

1шт.

8

87337239R

REMAN-HYD CYLINDER

1480 CASE IH AXIAL-FLOW COMBINE, Feeder Clutch (1/78-12/84), Reman for New PN 133405C92

1шт.

8

87337239C

CORE-HYD CYLINDER

Return Number

1шт.

63884C92

SEAL KIT

KIT, cylinder service, for service parts refer to cyl-1 section B3

1шт.

9

187815C1

HYD TUBE

TUBE ASSY, feeder clutch upper

2шт.

10

187816C1

HYD TUBE

TUBE ASSY, feeder clutch lower

2шт.

11

9410976

ELBOW,90 Degree, 9/16"-18, 37 Degree x 9/16"-18, O-Ring

3/8 hyd fld 90 deg

1шт.

Выбрано товаров: 14