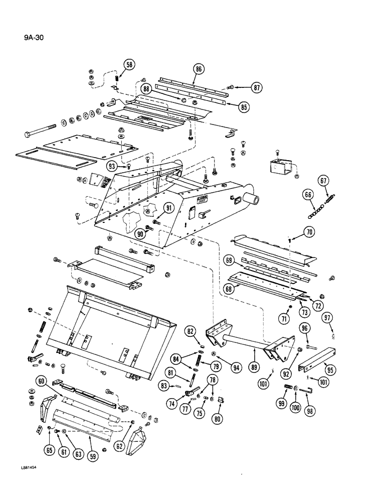
Запчасти Case IH 1640 (9A-30) - FEEDER, (CONT) (13) - FEEDER

Схема запчастей Case IH 1640 - (9A-30) - FEEDER, (CONT) (13) - FEEDER
87
89
66
99
81
59
79
68
78
96
92
84
85
75
83
98
88
77
58
70
73
63
93
101
97
91
100
94
69
74
65
95
61
60
71
80
86
67
72
82
90
101
62
FIT
1:1
100%

Артикул

Название

Примечание

Количество

58

7422T

SPRING

- latch, door

1шт.

59

1319479C1

COVER

- adapter, feeder

1шт.

60

1319474C1

BAND

COVER - top, feeder

1шт.

61

155807C1

BOLT,Hex Serr, 5/16" - 18 x 1"

12шт.

62

131-1215

LOCK NUT,5/16"-18, GC

NUT, LOCK, 5/16"-18, GC

12шт.

63

28588R1

WASHER

- flat, 11/32 x 11/16 x 3/64 inch

12шт.

65

1321640C1

GROMMET

- cover, adapter

2шт.

66

167570C1

CHAIN,203.2mm L

- latch, lower door

2шт.

67

635503R1

SPRING,148.8mm Free Length

- latch, lower door

2шт.

68

1319961C1

SUPPORT

- bottom, feeder rear

1шт.

69

1319965C1

BAR

- spacing, support

1шт.

70

155945

SCREW,Cross Flat Hd, #10 - 24 x 3/4"

6шт.

71

196922C1

LOCK NUT

- hex lock, No. 10

6шт.

72

1319963C1

SEAL

SEAL - rear, feeder

1шт.

73

197429C1

SEALING STRIP

- seal, door

1шт.

74

179024C1

HINGE

HANDLE - lock, latch

2шт.

75

177141C1

PIN,15.88mm OD x 41mm L

- pivot, handle

2шт.

77

617057R1

PIN,1/4" x 1", Coiled

2шт.

78

21471R1

WASHER

- flat, 21/32 x 1 x 7/64 inch

4шт.

79

367833R1

SPRING

- rod, latch

2шт.

80

1338021C1

PIN,7.94mm OD

- lock, latch (Replaces 407171R1)

2шт.

81

177138C1

ROD

- latch

2шт.

82

25077R1

LOCK NUT,5/16"-18, GB

NUT, LOCK, 5/16"-18, GB

2шт.

83

18518R1

LOCK PIN,1/8" x 1", Slotted

PIN, 1/8" x 1", Slotted

2шт.

84

28588R1

WASHER

- flat, 11/32 x 11/16 x 3/64 inch

4шт.

85

634204R1

SEAL

- feeder, top

1шт.

86

197418C1

SUPPORT

ANGLE - support, seal

1шт.

87

477-73816

SERRATED SCREW,Sl Truss Hd, 3/8" x 1"

BOLT - slotted truss head, 3/8 NC x 1 inch

7шт.

88

482256R1

BEARING LOCK NUT,Flg, USR, 3/8"-16

- hex flange lock, 3/8 inch NC

7шт.

89

197382C2

SUPPORT ASSY.

BRACKET - support, lift (47 inch feeder)

1шт.

89

187102C2

BRACKET

- support, lift (54-1/2 inch feeder)

1шт.

90

111-541

CARRIAGE BOLT,Short NK, 1/2"-13 x 1 1/4", G5, Full Thd

BOLT, CARRIAGE, (54-1/2 inch feeder) Short NK, 1/2"-13 x 1 1/4", G5, Full Thd

1шт.

91

465567R1

CARRIAGE BOLT,Sht Sq Nk, 1/2" - 13 x 1 1/2", Gr 5

BOLT - round head square neck, 1/2 NC x 1-1/2 inch (8 used on 47 inch and 7 used on 54 inch feeder)

8шт.

92

186852C1

FLANGE NUT,Hex, 1/2"-13, Lock

- hex flange lock, 1/2 inch NC (8 used on 47 inch and 10 used on 54-1/2 inch feeder)

10шт.

93

477-73816

SERRATED SCREW,Sl Truss Hd, 3/8" x 1"

BOLT - slotted truss head, 3/8 NC x 1 inch

8шт.

94

482256R1

BEARING LOCK NUT,Flg, USR, 3/8"-16

- hex flange lock, 3/8 inch NC

8шт.

95

197554C3

CHANNEL

- lock, lift cylinder

1шт.

96

23948R1

HEADED PIN,3/8" x 3 1/4"

PIN - clevis, 3/8 x 3-1/4 inch

1шт.

97

586591R1

COTTER PIN

PIN - hair type cotter, 1/8 inch

1шт.

98

197849C1

ROD

- lock, cylinder

1шт.

99

M296

SPRING

- rod, lock

1шт.

100

28588R1

WASHER

- flat, 11/32 x 11/16 x 3/64 inch

1шт.

101

648002

KNIFE

PIN SPLIT (COTTER), 1/8" x 3/4"

2шт.

Выбрано товаров: 43