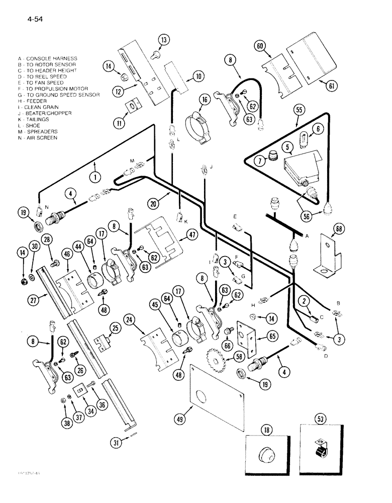
Запчасти Case IH 1640 (4-54) - SHAFT SPEED MONITOR CONTROL, COMBINE W/O STRAW CHOPPER, PRIOR TO SERIAL NO. JJC0097190 (06) - ELECTRICAL

Схема запчастей Case IH 1640 - (4-54) - SHAFT SPEED MONITOR CONTROL, COMBINE W/O STRAW CHOPPER, PRIOR TO SERIAL NO. JJC0097190 (06) - ELECTRICAL
14
62
25
62
20
63
53
19
47
18
34
61
37
63
56
8
63
62
65
64
45
62
4
14
11
12
55
30
48
13
10
17
4
46
6
2
14
19
3
44
68
3
17
48
49
36
63
31
66
24
58
27
26
8
60
8
7
28
5
64
38
16
6
1
FIT
1:1
100%

Артикул

Название

Примечание

Количество

1

1983535C1

HARNESS

- shaft speed rear (P.I.N. JJC0035161 through JJC0097190), Includes: Ref. 2, 3

1шт.

1

245238C1

HARNESS

- shaft speed rear (Prior to P.I.N. JJC0035161), Includes: Ref. 2, 3

1шт.

2

225161C1

ADAPTER

CONNECTOR - harness

11шт.

3

245482C1

ELEC CONNECTOR,2 Pin

CONNECTOR - harness

1шт.

4

245193C2

SENSOR

TRANSMITTER - transducer (For straw spreader, feeder, ground speed, rotor and fan)

5шт.

5

245275C91

CASE ASSY.

MONITOR ASSEMBLY - shaft speed, with decal, Includes: Ref. 6, 7

1шт.

5

1935072C1

REMAN-ELECT MONITOR

1640 (S/N JJC0034705 & AFTER) , shaft speed, with decal, COMBINE W/O STRAW CHOPPER, PRIOR TO SERIAL NO. JJC0097190 (1/86-12/92)

1шт.

5

1935071C1

CORE-MONITOR

Return Number

1шт.

6

28628R1

BULB,C2F, #73, 14V

LAMP - trade No. 73, 14 volt

1шт.

7

178876C1

SUPPRESSOR

- audible alarm

1шт.

8

245365C1

TRANSMITTER

- monitor control (For rotary air screen, tailings auger, clean grain sensor, beater)

4шт.

10

245364C1

SWITCH

- monitor control (For shoe)

1шт.

11

187996C1

MAGNET

ASSEMBLY - sensor (For shoe)

1шт.

12

187998C2

ANGLE

SUPPORT - shoe transmitter

1шт.

13

111-229

CARRIAGE BOLT,Short NK, 5/16"-18 x 1/2", G2

BOLT - round head square neck, 5/16 NC x 1/2 inch

2шт.

14

938017R1

FLANGE NUT,Flg, USR, 5/16"-18

- hex flange lock, 5/16 inch NC

1шт.

17

178800C1

CLAMP

- sensor (For clean grain, tailings auger, beater)

3шт.

18

195803C1

GROMMET

- tube, 3/8 inch OD

1шт.

19

84116C1

NUT

- hex jam, 3/4 inch NC

2шт.

20

92151C1

HARNESS

ASSEMBLY - monitor (Used without straw spreader)

1шт.

24

183869C3

SUPPORT

BRACKET - clean grain sensor

1шт.

25

196987C1

MAGNET

ASSEMBLY - sensor (For rotary air screen)

1шт.

26

125932

SELF-TAP SCREW,Sl Pan Hd, #8 x 1/2"

SCREW, SELF TAPPING, Slotted Pan Hd, #8 x 1/2"

2шт.

27

1329865C1

CHANNEL

- rotary air screen sensor mounting

1шт.

28

135270

SERRATED SCREW,5/16" - 18 x 3/4"

BOLT - slotted truss head, 5/16 NC x 3/4 inch

3шт.

30

179454C1

RUBBER WASHER

- rubber

1шт.

31

28588R1

WASHER

- flat, 11/32 x 11/16 x 3/64 inch

1шт.

34

1301560C1

SUPPORT

ANGLE - rotary air screen sensor adjustment

1шт.

36

113-102

BOLT,Hex, 5/16" - 18 x 3/4", Gr 5

Hex, 5/16"-18 x 3/4", G5, Full Thd

1шт.

37

192-20

LOCK WASHER,Helical Spring, 0.318" ID, CST, ZND

WASHER, LOCK, 5/16"

1шт.

38

425-105

NUT,5/16"-18, G5

- hex, 5/16 inch NC

1шт.

44

178801C1

COLLAR

- tailing elevator shaft

1шт.

45

1319397C1

COLLAR,31.88mm ID x 44.45mm OD x 23.24mm L

ASSEMBLY - clean grain auger locking

1шт.

46

183869C3

SUPPORT

BRACKET - tailings sensor

1шт.

47

181208C3

SUPPORT

COVER - sensor

1шт.

48

23986R1

SELF-TAP SCREW,Hex Wash Hd, 1/4" x 1/2"

SCREW, SELF TAPPING, Hex Wash Hd, 1/4" x 1/2"

6шт.

49

1979323C1

SHIELD

COVER - clean grain auger sensor

1шт.

53

362120R1

CLAMP,9.53mm ID, 10.32mm Bolt Hole, P Type

CLIP - harness

1шт.

55

245242C1

HARNESS

ASSEMBLY - shaft speed front, Includes: Ref. 56

1шт.

56

131498C1

ELEC CONNECTOR

CONNECTOR - harness

2шт.

58

1317973C2

SPROCKET ASSY.

SPROCKET - feeder sensor (Without rock trap or feeder reverser)

1шт.

60

187629C1

SUPPORT

- beater shaft sensor

1шт.

61

187630C1

SUPPORT

COVER - beater shaft sensor

1шт.

62

436693

SCREW,Slotted Pan Hd, #8-32 x 3/8"

- slotted machine, No. 8-32 x 3/8 inch

4шт.

63

121841

LOCK WASHER,#8

WASHER, LOCK, #8

4шт.

64

125735

SET SCREW,Hex Skt, 1/4"-20 x 3/8"

2шт.

65

1330063C1

SUPPORT

- feeder sensor (Without rock trap or feeder reverser)

1шт.

66

256873

BOLT,Hex Serr, 5/16" - 18 x 1/2", 5SPL, Full Thd

2шт.

68

1317950C1

SUPPORT

- feeder sensor (With rock trap or feeder reverser)

1шт.

Выбрано товаров: 49