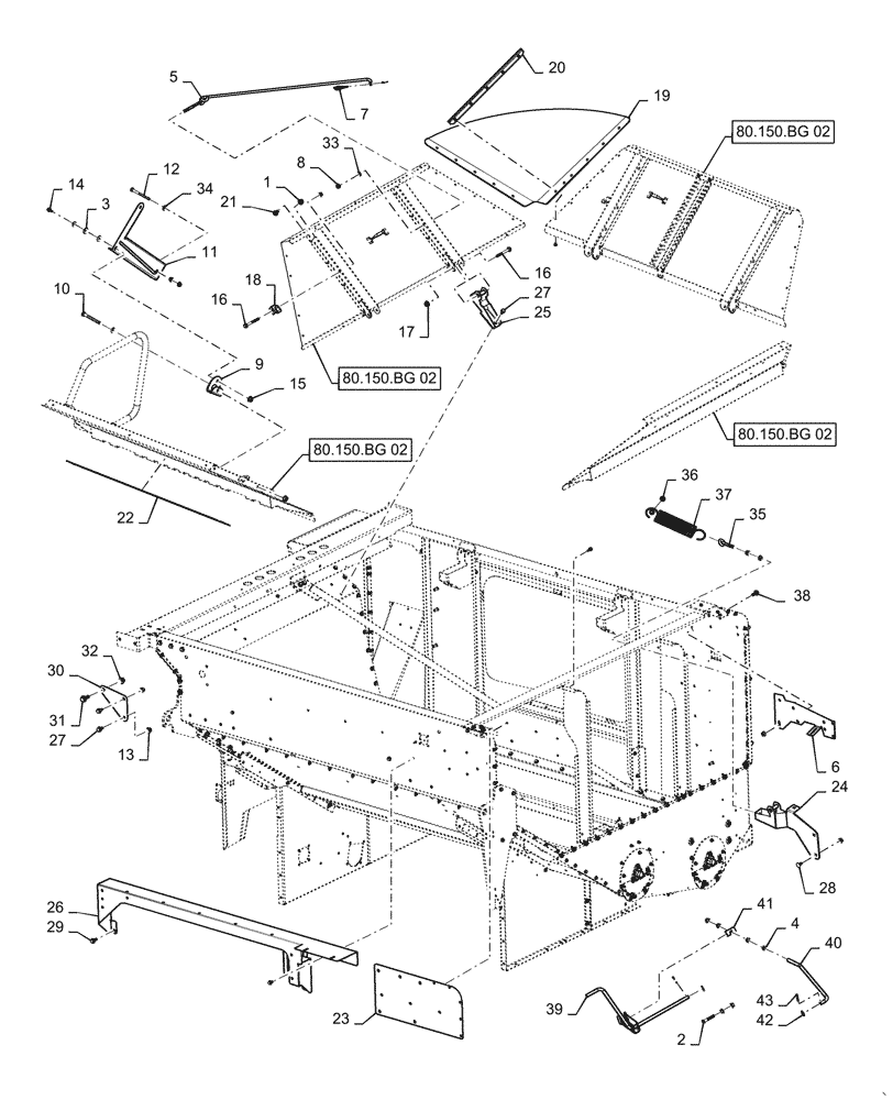
Запчасти Case IH 5088 (80.150.BG[01]) - GRAIN BIN EXTENSION, 250 BU (80) - CROP STORAGE/UNLOADING

Схема запчастей Case IH 5088 - (80.150.BG[01]) - GRAIN BIN EXTENSION, 250 BU (80) - CROP STORAGE/UNLOADING
80.150.bg 02
12
24
39
30
16
13
18
28
26
14
5
3
42
8
4
40
36
37
23
27
25
15
35
10
9
6
34
43
29
17
32
11
33
16
31
38
41
19
2
7
22
27
21
20
1
80.150.bg 02
80.150.bg 02
80.150.bg 02
FIT
1:1
100%

Артикул

Название

Примечание

Количество

1

86507066

FLANGE NUT,M8 x 1.25, Cl 10

1шт.

2

9706693

BOLT,M12 x 60mm, Cl 8.8

1шт.

3

86511315

WASHER,8.4mm ID x 16mm OD x 1.8mm Thk

2шт.

4

100020

NUT,M16 x 2.0, Cl 8

4шт.

5

87553944

ROD

Prop

2шт.

6

84555626

PLATE

Tank Support

1шт.

7

87106279

PIN,6.4mm OD

Linch, Quick Connect

2шт.

8

86512497

FLANGE NUT,M12 x 1.75, Cl 10

15шт.

9

87107781

BRACKET

Panel Support

1шт.

10

86508622

BOLT,Hex, M12 x 1.75 x 100mm, Cl 10.9

1шт.

11

87608564

BRACKET

Latch, Panel Extension

1шт.

12

120117

BOLT,Hex, M10 x 1.5 x 110mm, Cl 8.8, Full Thd

1шт.

13

86050279

FLANGE NUT,M10 x 1.5, Cl 10

28шт.

14

87656137

BOLT,Flange Hex, M8 x 20mm, Cl 10.9

7шт.

15

86619801

FLANGE NUT,M8 x 1.25, Cl 8

1шт.

16

87032825

BOLT,Hvy Hex, M12 x 100mm, Cl 10.9

10шт.

17

87681209

FLANGE NUT,Hex, M12 x 1.75, Cl 10

8шт.

18

86976901

CLIP

Prop Rod

2шт.

19

87734459

CANVAS

Extension, 24"

4шт.

20

84194670

ANGLE

Extension, 24"

8шт.

21

86975890

SCREW,Torx, Pan HD, M8 x 1.25 x 20mm, Cl 8.8

50шт.

22

86995792

PAD,125mm W x 1270mm L

Non- Slip Grip

4шт.

23

87603123

SUPPORT

Grain Tank

1шт.

24

87474228

HINGE

RH

2шт.

25

87606500

HINGE

LH

2шт.

26

84300515

ACCESS COVER

Linkage Access

1шт.

27

87698835

FLANGE BOLT,M10 x 20mm, Full Thd, Cl 10.9

13шт.

28

120041

CARRIAGE BOLT,M10 x 20mm, Cl 8.8

6шт.

29

87030508

BOLT,Hvy Hex, M12 x 30mm, Full Thd, Cl 10.9

10шт.

30

87614100

COVER

Tank Extension, LH

1шт.

31

86978772

FLANGE BOLT,Hex, M16 x 40mm, Cl 10.9, Full Thd

1шт.

32

86512498

FLANGE NUT,M16 x 2, Cl 10

1шт.

33

140046

BELLEVILLE WASHER,M12 Bolt Size x 27mm OD x 1.8mm Thk

3шт.

34

378244

WASHER,10.5mm ID x 24mm OD x 2mm Thk

2шт.

35

86599359

EYEBOLT

M10 x 75mm

1шт.

36

87698841

BOLT,Hex, M10 x 70mm, Cl 10.9

Flange, M10 x 75mm

1шт.

37

86975571

SPRING,Extension, 72.4mm OD x 356mm L

356mm

1шт.

38

86705429

BOLT,M10 x 34.2mm OAL, Full Thd, Cl 10.9

Flange, M10 x 25mm, Full Thread, 10.9

10шт.

39

87571909

ASSEMBLY

Bubbler Latch

1шт.

40

87656571

ROD

Latch, Bubbler Auger

1шт.

41

87571967

BUSHING

Latch, Bubbler Auger

1шт.

42

140048

BELLEVILLE WASHER,M16 Bolt Size x 32mm OD x 2.8mm Thk

2шт.

43

80754

COTTER PIN,3/16" OD x 1-1/2" OAL

2шт.

Выбрано товаров: 43