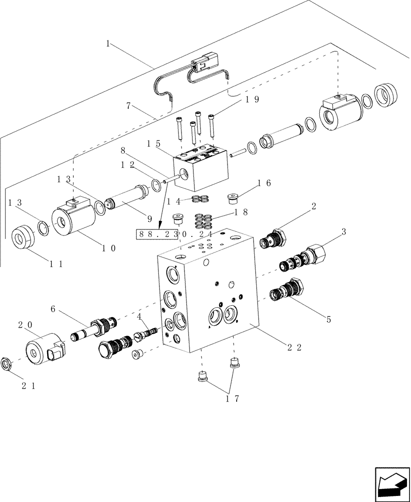
Запчасти Case IH 7130 (88.430.12) - VALVE ASSEMBLY, AUTO GUIDANCE WITH STEER ENABLE (88) - ACCESSORIES

Схема запчастей Case IH 7130 - (88.430.12) - VALVE ASSEMBLY, AUTO GUIDANCE WITH STEER ENABLE (88) - ACCESSORIES
18
19
8
5
17
11
10
4
6
12
88.230.24
16
9
7
14
22
2
13
15
1
3
20
13
21
FIT
1:1
100%

Артикул

Название

Примечание

Количество

1

87673657

VALVE

Auto Guidance With Steer Enable, Incl 2 - 22

1шт.

2

87591594

VALVE

Check Cartridge

1шт.

3

87590351

VALVE

Pilot To Shift Cartridge

1шт.

4

87591593

VALVE

Shuttle Cartridge

1шт.

5

87591596

VALVE

P.O. Check Cartridge

2шт.

6

NSS

NOT SOLD SEPARAT

VALVE, 2W2P Solenoid Cartridge

1шт.

7

87673659

VALVE

Proportional, Incl 8 - 15

1шт.

8

196737A1

SPLIT PIN/SAFETY PIN

Proportional Valve

2шт.

9

87439633

TUBE,17.5mm OD x 72.81mm OAL

Proportional Valve

2шт.

10

87662365

COIL

12 VDC, Proportional Valve

2шт.

11

188106A1

NUT

Retaining, Proportional Valve

2шт.

12

14457280

O-RING,0.103" Thk x 0.612" ID, -114, Cl 5, 75 Duro

Proportional Valve

2шт.

13

122056

O-RING,0.07" Thk x 0.676" ID, -17, Cl 5, 75 Duro

Proportional Valve

4шт.

14

86629543

O-RING,0.07" Thk x 0.364" ID, -12, Cl 5, 75 Duro

Proportional Valve

4шт.

15

NSS

NOT SOLD SEPARAT

BODY, Proportional Valve

1шт.

16

87035062

PLUG,Hex, 1/2"-20 ORB

2шт.

17

278548

PLUG,Hex, 7/16"-20 ORB

3шт.

18

238-6012

O-RING,0.07" Thk x 0.364" ID, -12, Cl 6, 90 Duro

4шт.

19

281060

HEX SOC SCREW,HSH, #10 - 24 x 1-1/4"

4шт.

20

87623908

COIL ASSY.

Solenoid

1шт.

21

195683A1

JAM NUT,1/2"-20

1шт.

22

NSS

NOT SOLD SEPARAT

BODY, Auto Guidance Valve

1шт.

Выбрано товаров: 22