Запчасти Case IH 7240 (90.110.AU[03]) - TRIM, BODY, LH (90) - PLATFORM, CAB, BODYWORK AND DECALS

Схема запчастей Case IH 7240 - (90.110.AU[03]) - TRIM, BODY, LH (90) - PLATFORM, CAB, BODYWORK AND DECALS
90.110.au 04
16
3
23
10
13
11
6
15
20
16
22
4
14
7
18
14
16
23
2
19
7
5
8
12
21
16
17
1
9
9
19
6
11
90.110.au 04
90.110.au 04
90.110.au 04
90.110.au 04
FIT
1:1
100%

Артикул

Название

Примечание

Количество

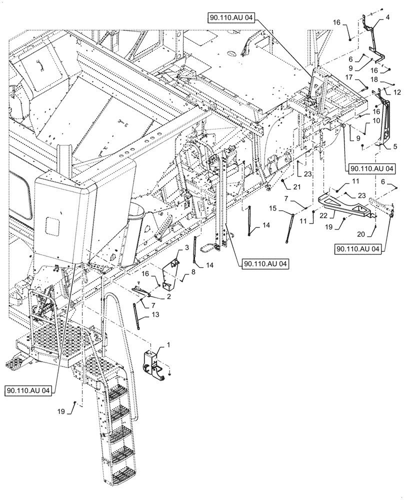
1

87711604

BRACKET

Front Transport Lock, LH

1шт.

2

84337457

BRACKET

Stop Lock

1шт.

3

87659014

SUPPORT ASSY.

Strut

1шт.

4

84183860

BRACKET

Inner Trim Strap

1шт.

5

84211637

BRACKET

Outer Panel Support, LH

1шт.

6

87698833

BOLT,M8 x 33.1mm, Cl 10.9

4шт.

7

83952214

BALL STUD,M8 x 29.5mm OAL

2шт.

8

87656137

BOLT,Flange Hex, M8 x 20mm, Cl 10.9

5шт.

9

322358

BELLEVILLE WASHER,M8 Bolt Size x 18mm OD x 1.4mm Thk

5шт.

10

87681207

BOLT,M8 x 24.1mm, Cl 10.9

1шт.

11

86050279

FLANGE NUT,M10 x 1.5, Cl 10

3шт.

12

140045

BELLEVILLE WASHER,M10 Bolt Size x 22mm OD x 1.6mm Thk

4шт.

13

87728305

STRUT

Gas Spring

1шт.

14

87108532

STRUT

Gas Spring

2шт.

15

47806658

GAS STRUT

Strut

1шт.

16

87681210

FLANGE NUT,M8 x 1.25, Cl 10

10шт.

17

47616478

BOLT,M16 x 105.4mm OAL, Cl 10.9

6шт.

18

87698836

BOLT,M10 x 25mm, Full Thd, Cl 10.9

4шт.

19

86507066

FLANGE NUT,M8 x 1.25, Cl 10

7шт.

20

87030775

BOLT,M8 x 38.1mm, Cl 10.9

2шт.

21

87016581

FLANGE NUT,M16 x 2, CI 10

6шт.

22

47479906

BRACKET

Rear Support

1шт.

23

120041

CARRIAGE BOLT,M10 x 20mm, Cl 8.8

3шт.

Выбрано товаров: 23