Запчасти Case IH 8010 (10.414.01[01]) - FRAME & COOLERS - 7010 (10) - ENGINE

Схема запчастей Case IH 8010 - (10.414.01[01]) - FRAME & COOLERS - 7010 (10) - ENGINE
12
23
11
6
8
12
21
19
21
23
16
2
1
9
12
20
4
14
4
20
15
6
8
14
14
7
8
13
11
17
8
11
3
5
12
10
18
14
12
22
16
FIT
1:1
100%

Артикул

Название

Примечание

Количество

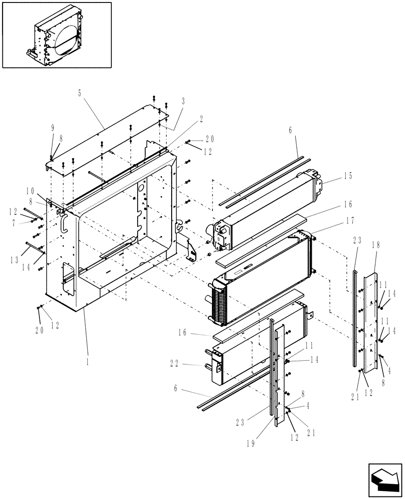
1

87584329

FRAME ASSY

1шт.

2

87510717

SEALING STRIP,10mm W x 1459mm L x 3.174mm Thk

1шт.

3

87284531

NUT,Rivnut, M8 x 1.25, 0.5mm - 3mm Grip Range

4шт.

4

43127

BOLT,Hex, M8 x 1.25 x 25mm, Cl 8.8

2шт.

5

87380303

COVER ASSY

1шт.

6

PL

PROCURE LOCALLY

Tape, Seal; 1/4" x 3/4" Acrylic

1шт.

7

120069

BOLT,M10 x 1.5 x 56.58mm OAL, Cl 8.8

2шт.

8

322358

BELLEVILLE WASHER,M8 Bolt Size x 18mm OD x 1.4mm Thk

14шт.

9

120104

BOLT,Hex, M8 x 1.25 x 20mm, Cl 8.8

8шт.

10

9706690

NUT,M8 x 1.25, Cl 8

4шт.

11

100038

NUT,M12 x 1.75, Cl 8

4шт.

12

140045

BELLEVILLE WASHER,M10 Bolt Size x 22mm OD x 1.6mm Thk

20шт.

13

364053

BOLT,Hex, M12 x 1.75 x 220mm, Cl 8.8

4шт.

14

86511324

WASHER,13mm ID x 24mm OD x 2.5mm Thk

8шт.

15

87578692

INTERCOOLER,Charge Air

1шт.

16

87584962

SEALING STRIP

2шт.

17

87378361

RADIATOR

1шт.

18

87388370

PLATE

1шт.

19

87388375

PLATE

1шт.

20

43138

BOLT,Hex, M10 x 1.5 x 20mm, Cl 8.8

19шт.

21

100016

NUT,M10 x 1.5, Cl 8

19шт.

22

87378363

COOLER, OIL

1шт.

23

87710390

SEALING STRIP,25.4mm W x 1190mm L x 25.4mm Thk

Sealing Element

2шт.

Выбрано товаров: 23