Запчасти Case IH 8230 (90.118.AC[05]) - VAR - 830028, 830153 - PLATFORM, LADDER, EXTENSION (90) - PLATFORM, CAB, BODYWORK AND DECALS

Схема запчастей Case IH 8230 - (90.118.AC[05]) - VAR - 830028, 830153 - PLATFORM, LADDER, EXTENSION (90) - PLATFORM, CAB, BODYWORK AND DECALS
7
3
5
5
90.118.ac 02
90.118.ac 01
1
2
6
6
4
FIT
1:1
100%

Артикул

Название

Примечание

Количество

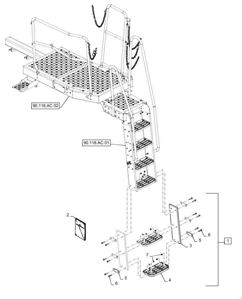
1

47437204

KIT

Ladder Extension, Step, Incl 2 - 7

1шт.

2

47448241

INSTRUCTION

Kit, Ladder Assy, Extended Step

1шт.

3

47371376

HANGER

Bottom, Step, Extension, 594.9mm OAL x 150mm W

2шт.

4

87301185

STEP

Aluminum, Ladder

1шт.

5

87281588

PLATE

Supoort, 126mm OAL x 38mm W

2шт.

6

87698840

FLANGE BOLT,M10 x 50mm, Cl 10.9

4шт.

7

87547587

LOCK NUT,Hex, M10 x 1.5, Cl 10

4шт.

Выбрано товаров: 7