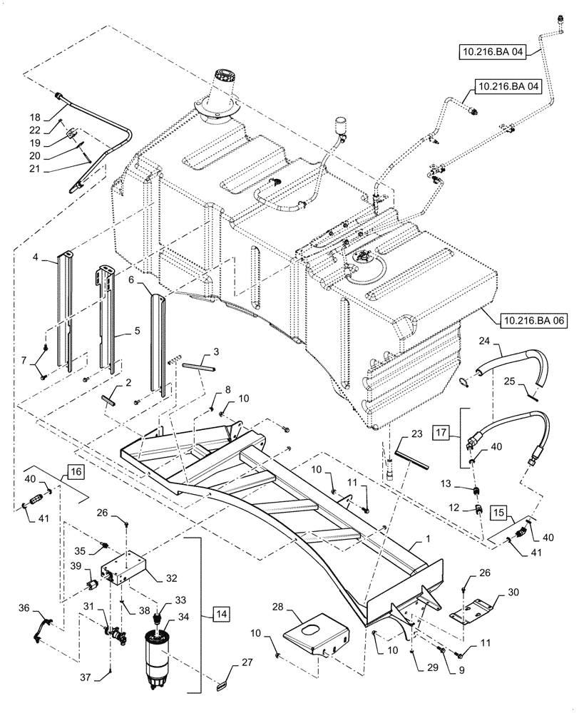
Запчасти Case IH 8240 (10.216.BA[05]) - FUEL LINE, FUEL FILTER (10) - ENGINE

Схема запчастей Case IH 8240 - (10.216.BA[05]) - FUEL LINE, FUEL FILTER (10) - ENGINE
10.216.ba 06
20
8
18
26
19
2
37
27
31
16
34
12
32
1
36
22
10
33
15
10
5
41
11
9
10
10
38
28
35
40
14
13
40
4
40
7
29
39
21
25
6
30
11
3
17
24
41
23
10.216.ba 04
10.216.ba 04
26
FIT
1:1
100%

Артикул

Название

Примечание

Количество

1

47639599

SUPPORT

Fuel Tank

1шт.

2

228634A1

PROTECTION STRIP

Edge Trim

3шт.

3

121574A1

SEAL PROTECTION

Edge Trim

5шт.

4

84156717

SUPPORT

Tank Rear

1шт.

5

84162005

SUPPORT

Tank Middle

1шт.

6

84157960

SUPPORT

Tank Front

1шт.

7

87698836

BOLT,M10 x 25mm, Full Thd, Cl 10.9

8шт.

8

86050279

FLANGE NUT,M10 x 1.5, Cl 10

3шт.

9

87695414

BOLT,M12 x 1.25 x 46.8mm, Cl 10.9

3шт.

10

86512497

FLANGE NUT,M12 x 1.75, Cl 10

12шт.

11

87030508

BOLT,Hvy Hex, M12 x 30mm, Full Thd, Cl 10.9

9шт.

12

435446A1

SHUT-OFF VALVE,1/2"-14 NPTF, Ball Type

1шт.

13

84319917

HYD CONNECTOR,1/2"-14 NPTF x 1"-14 ORFS

1шт.

14

47552002

FUEL PUMP

Filter Assy, Incl 31 - 39

1шт.

15

86639053

ELBOW,45 Degree, 1"-14 ORFS x M22 x 1.5 ORB

Incl 40, 41

1шт.

16

86579694

ELBOW,90 Degree, 1"-14 ORFS x M22 x 1.5 ORB

Incl 40, 41

1шт.

17

84160727

FUEL HOSE

Tank to Filter, Incl 40

1шт.

18

47698014

TUBE

Fuel, Pump to Tube

1шт.

19

117395A1

COLLAR CLAMP,M15.87mm ID, 50mm x 35mm x 30mm

1шт.

20

86900727

COVER

Plate

1шт.

21

87698761

BOLT,Hex, M6 x 60mm, Cl 10.9

2шт.

22

86050300

FLANGE NUT,M6 x 1.0, Cl 10

2шт.

23

448606A1

SEAL ASSY.,12.7mm W x 203.2mm OAL x 17mm Thk

Trim

1шт.

24

47581965

SLEEVE

Protective

1шт.

25

86566989

CABLE TIE,208mm L

2шт.

26

87656137

BOLT,Flange Hex, M8 x 20mm, Cl 10.9

6шт.

27

87679098

DECAL,37mm x 70mm

Filter

1шт.

28

47600161

BRACKET

Sump

1шт.

29

86507066

FLANGE NUT,M8 x 1.25, Cl 10

2шт.

30

47742616

SUPPORT

Fuel Manifold

1шт.

31

47635952

FUEL PUMP

Filter

1шт.

32

47638747

MANIFOLD

Fuel

1шт.

33

47545596

ADAPTER,1-1/4"-12 RH x 1-1/4"-12 LH

Fuel Filter

1шт.

34

47635958

FUEL FILTER

Tank

1шт.

35

47638916

COUPLING,M16 x 1.5 ORB x 3/8" Quick Connect

1шт.

36

47638906

HOSE

Pump to Manifold

1шт.

37

86512134

HEX SOC SCREW,M6 x 16mm, Cl 12.9

4шт.

38

47643473

O-RING,12.37mm ID x 17.6mm OD x 2.62mm Thk

1шт.

39

47773394

REDUCER

Manifold

1шт.

40

9992069

O-RING,0.07" Thk x 0.614" ID, -16, Cl 6, 90 Duro

3шт.

41

86598102

O-RING,2.2mm Thk x 19.3mm ID, Cl 6, 90 Duro

2шт.

Выбрано товаров: 41