Запчасти Case IH 9010 (55.100.42[02]) - WIRE HARNESS, REAR, LOWER FRAME - 9010 (55) - ELECTRICAL SYSTEMS

Схема запчастей Case IH 9010 - (55.100.42[02]) - WIRE HARNESS, REAR, LOWER FRAME - 9010 (55) - ELECTRICAL SYSTEMS
6
55.100.34(01)
4
19
22
13
24
21
17
16
55.100.34(03)
10
14
18
6
25
5
18
2
6
6
9
7
15
11
13
20
1
55.100.34(02)
12
23
9
8
3
26
FIT
1:1
100%

Артикул

Название

Примечание

Количество

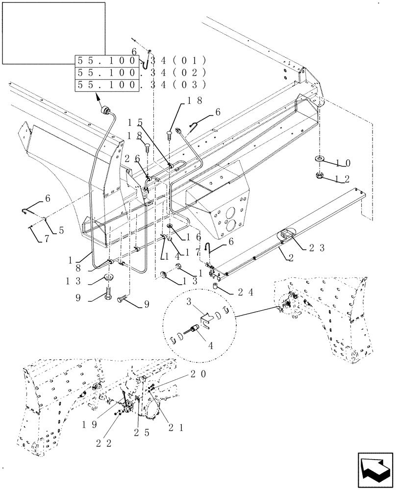
1

86900862

WIRE HARNESS

Shoe

1шт.

2

86579534

DETECTOR

Shoe - 1634mm Long, Includes Refs 23 & 24

1шт.

3

86997800

BRACKET

1шт.

4

84058862

SENSOR

Shaker Speed

1шт.

5

86590413

BASE,15.87mm W x 22.22mm OAL x 9.9mm Thk

Base, Tie Wrap

3шт.

6

86566989

CABLE TIE,208mm L

CABLE STRAP

7шт.

7

445394

RIVET,Pop, 3/16" x 1/2" OAL

3шт.

8

619284

CLAMP,23.8mm, Coat, 10.3mm Bolt Hole, P Type

1шт.

9

120100

BOLT,M6 x 20mm, Cl 8.8

5шт.

10

412649

BELLEVILLE WASHER,M6 Bolt Size x 18mm OD x 1.4mm Thk

4шт.

11

9706755

NUT,M6, Cl 8

1шт.

12

353308

NUT,M6 x 1.0, Cl 8

4шт.

13

322357

BELLEVILLE WASHER,M6 Bolt Size x 14mm OD x 1.3mm Thk

5шт.

14

89837692

CLAMP

4шт.

15

86010402

CLAMP,12.7mm, Coat, 10.3mm Bolt Hole, P Type

4шт.

16

322358

BELLEVILLE WASHER,M8 Bolt Size x 18mm OD x 1.4mm Thk

4шт.

17

9706690

NUT,M8 x 1.25, Cl 8

4шт.

18

86619060

CARRIAGE BOLT,M8 x 1.25 x 16mm, Cl 8.8

4шт.

19

87630204

SENSOR

Tailings Volume

1шт.

20

43128

BOLT,M8 x 1.25 x 30mm, Cl 8.8

2шт.

21

140016

WASHER,M8 x 16mm OD x 1.6mm Thk

4шт.

22

832-46408

NUT,M8 x 1.25, Cl 8

2шт.

23

NSS

NOT SOLD SEPARAT

Sensor

1шт.

24

9513734

SILENTBLOC

4шт.

Выбрано товаров: 24