Запчасти Case IH 1400 (5-04) - STEERING SYSTEM (04) - STEERING

Схема запчастей Case IH 1400 - (5-04) - STEERING SYSTEM (04) - STEERING
4
12a
3
4
7
7a
19a
16
6
2
4
2
19a
3
13
3
18
12
3
12
12a
8
20
4
1
7a
19
11
7
20
14
3
17
19
10
17
21
15
4
FIT
1:1
100%

Артикул

Название

Примечание

Количество

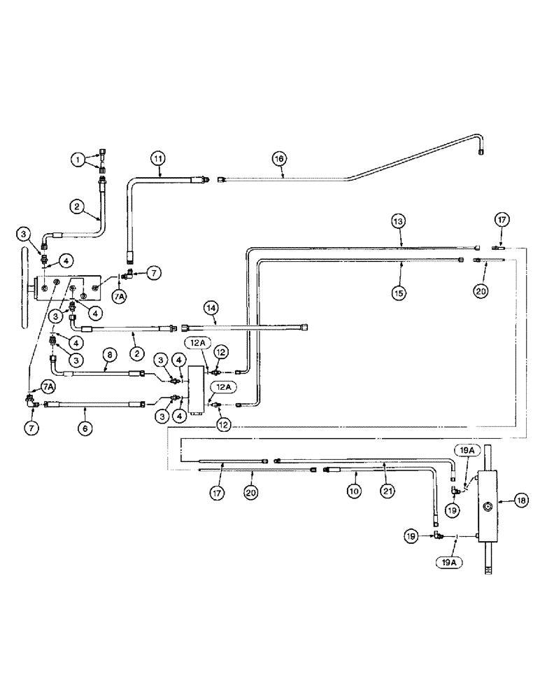
1

222120C1

TUBE

- steering, power-body to compactor valve

1шт.

2

216241C2

HOSE

- steering pump, 90 degree

2шт.

3

218-5351

HYD CONNECTOR,3/4"-16, 37 Degree x 9/16"-18, O-Ring

ADAPTER - straight, 3/4-16 flare x 9/16-18 inch O-ring boss (Replaces union 382449R1)

5шт.

5

126893C91

DRIVE

PUMP ASSEMBLY - steering, parts list page 5-7

1шт.

413-58

BOLT,Hex, 5/16" - 18 x 1/2", Gr 5

- hex, 5/16 NC x 1/2 inch (Replaces bolt 180073)

4шт.

492-11031

LOCK WASHER,5/16"

WASHER, LOCK, (Replaces washer 120214) 5/16"

4шт.

6

31-1228

HYDRAULIC HOSE

HOSE - steering, right-hand to check valve, 44 inch (1118 mm) long (Replaces hoses 222317C1 and 141817C1)

1шт.

7

218-5280

ELBOW,90 Degree, 3/4"-16, 37 Degree x 9/16"-18, O-Ring

- 90 degree, 3/4-16 flare x 9/16-18 inch adjustable O-ring boss (Replaces elbow 615667C1)

2шт.

8

222316C1

HOSE

- steering, left-hand to check valve

1шт.

9

673293R92

VALVE

- steering, double acting check, parts list page 5-11

1шт.

10

673581R1

HOSE

- steering, cylinder

2шт.

11

216240C2

HOSE

- steering, pump

1шт.

12

218-5057

HYD CONNECTOR,9/16" - 18 JIC x 9/16" - 18 ORB

ADAPTER - straight, 9/16-18 inch flare x O-ring boss (Replaces connector 9410202)

2шт.

13

219562C2

TUBE

- left-hand turn steering pump cylinder

1шт.

14

222119C1

HYD TUBE

TUBE - steering, pump return

1шт.

15

219563C2

TUBE - right-hand turn steering pump cylinder

1шт.

16

222114C1

TUBE

- steering, pump supply

1шт.

17

1251180C1

TUBE

- steering, cylinder rear top

1шт.

18

149812C91

CYLINDER

ASSEMBLY - steering, parts list page 5-9

1шт.

19

218-5128

ELBOW,90° Elbow, 9/16" - 18 Male JIC x 3/4" - 16 Male ORB

- 90 degree, 9/16-18 flare x 3/4-16 inch adjustable O-ring boss (Replaces elbow 935036R91)

2шт.

20

1251181C1

TUBE

- steering, cylinder rear bottom

1шт.

A62209

CLAMP,5/16", Insul, 1/4" Bolt

- steering tube (Replaces clamp 299401C1)

2шт.

21

673448R1

HOSE ASSY.

HOSE - steering, cylinder bottom (Replaces hose 1260434C1)

1шт.

4

237-6006

O-RING,0.078" Thk x 0.468" ID, -906, Cl 6, 90 Duro

6-1, 90 Duro, .468" ID x .078" Thk (Replaces O-ring 364839R1)

7шт.

7a

237-6006

O-RING,0.078" Thk x 0.468" ID, -906, Cl 6, 90 Duro

6-1, 90 Duro, .468" ID x .078" Thk

2шт.

12a

237-6006

O-RING,0.078" Thk x 0.468" ID, -906, Cl 6, 90 Duro

6-1, 90 Duro, .468" ID x .078" Thk

2шт.

19a

237-6006

O-RING,0.078" Thk x 0.468" ID, -906, Cl 6, 90 Duro

6-1, 90 Duro, .468" ID x .078" Thk

2шт.

Выбрано товаров: 27