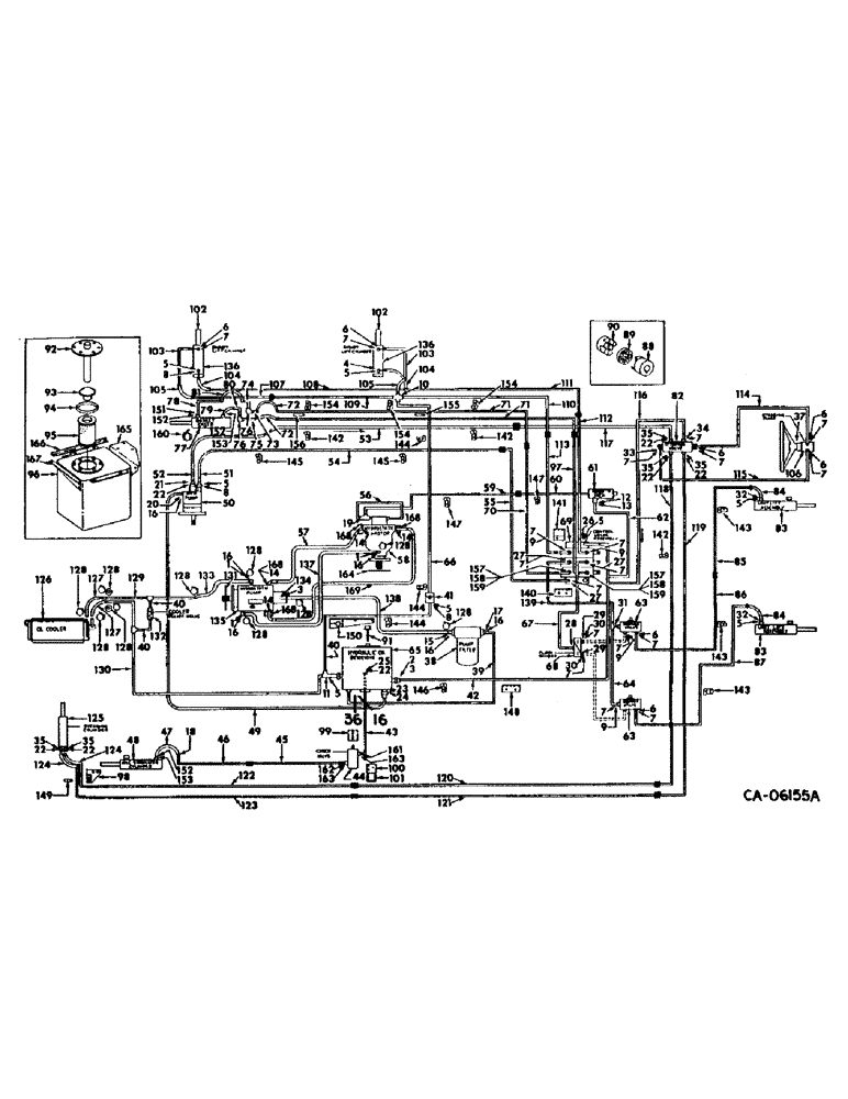
Запчасти Case IH 95 (10-06) - HYDRAULICS, HYDRAULIC DIAGRAM, EATON, SERIAL NUMBER 1012 AND ABOVE (07) - HYDRAULICS

Схема запчастей Case IH 95 - (10-06) - HYDRAULICS, HYDRAULIC DIAGRAM, EATON, SERIAL NUMBER 1012 AND ABOVE (07) - HYDRAULICS
40
164
9
147
7
152
18
94
107
109
102
30
114
125
130
72
93
117
36
115
5
136
39
168
21
28
19
22
167
44
91
152
20
163
29
127
15
46
90
17
7
102
92
7
32
163
153
128
7
60
144
160
139
116
42
104
3
101
49
97
16
1
89
8
75
7
76
5
22
145
165
168
124
133
52
157
16
142
30
98
7
6
128
118
22
103
96
161
111
169
87
76
3
119
34
157
16
159
22
7
22
37
38
22
62
6
112
132
5
7
140
84
71
47
67
86
128
136
6
106
33
141
128
6
41
71
28
8
9
14
7
110
24
40
95
35
143
134
147
25
154
29
84
9
7
5
127
5
66
64
168
78
123
12
126
7
131
74
26
61
27
45
70
53
79
32
128
82
35
7
4
55
166
148
7
149
121
33
146
6
68
105
10
88
128
7
153
14
16
105
58
16
7
99
57
22
124
31
138
143
128
73
128
122
128
8
5
40
128
7
6
154
155
51
154
81
113
150
63
35
103
168
23
83
137
59
108
152
144
100
158
85
7
77
13
35
54
156
56
43
104
16
6
151
63
159
69
27
72
120
50
35
129
142
5
5
143
35
9
147
144
16
7
65
145
27
50
162
FIT
1:1
100%

Артикул

Название

Примечание

Количество

1

171949C1

ELBOW

1-1/16-12 x 90 deg tube, for 5/8 in. ID hose

3шт.

2

9410207

HYD CONNECTOR,1 5/16"-12, 37 Degree x 1 5/16"-12, O-Ring

CONNECTOR, 1-5/16-12 37 deg hyd flared tube short swivel, Note A

1шт.

3

296247R1

O-RING,16-1, 90 Duro, 1.171" ID x .116" Thk

1-11/64 x 1-13/32 x 1/16, Note A

2шт.

4

9410978

ELBOW,90 Degree, 7/8"-14, 37 Degree x 7/8"-14, O-Ring

7/8-14 C-Z 37 deg hyd flared tube adj str thd 90 deg, NOTE A

1шт.

5

364885R1

O-RING,0.097" Thk x 0.755" ID, -910, Cl 6, 90 Duro

5/8 OD tube, Note A

7шт.

6

9410203

HYD CONNECTOR,3/4"-16, 37 Degree x 3/4"-16, O-Ring

CONNECTOR, 3/4-16 hyd 37 deg flared, tube short swivel, Note A

7шт.

7

570828R1

O-RING,0.087" Thk x 0.644" ID, -908, Cl 6, 90 Duro

1/2 OD tube, Note A

18шт.

8

9410204

HYD CONNECTOR,7/8"-14, 37 Degree x 7/8"-14, O-Ring

CONNECTOR, 7/8-14 hyd 37 deg flared tube short swivel, Note A

2шт.

9

384539R1

HYD CONNECTOR,7/8"-14, 37 Degree x 3/4"-16, O-Ring

CONNECTOR, 7/8-14 hyd 37 deg flared tube short reducer, Note A

4шт.

10

9403178

CROSS, 7/8-14 hyd 37 deg flared tube

1шт.

11

9411132

TEE,7/8"-14, 37 Degree x 7/8"-14, O-Ring Run

7/8-14 hyd 37 deg flared tube adj str thd 90 deg

1шт.

12

674681R1

HYD CONNECTOR,9/16"-18, 37 Degree x 1/2"-20, O-Ring

CONNECTOR, 9/16-18 to 1/2-20 37 deg flared tube short reducer, Note A

1шт.

14

343906R1

O-RING,0.139" Thk x 1.296" ID, -219, Cl 6, 90 Duro

1-5/16 x 1-9/16 x 1/8, Note A

4шт.

15

180444C1

ELBOW

1-5/16-12 x 90 deg tube, hose at filter, Note A

1шт.

16

368269R1

O-RING,0.116" Thk x 0.924" ID, -912, Cl 6, 90 Duro

3/4 OD tube, Note A

7шт.

17

9410207

HYD CONNECTOR,1 5/16"-12, 37 Degree x 1 5/16"-12, O-Ring

CONNECTOR, 1-5/16-12 C-Z 37 deg hyd flared tube short swivel, Note A

1шт.

18

304393R1

CLAMP, 3/8 phc open, For basket distributor att, Note A

1шт.

113-206

BOLT,Hex, 3/8" - 16 x 3/4", Gr 5, Full Thd

3/8-16 x 3/4 znd hex-hd cap

2шт.

482256R1

BEARING LOCK NUT,Flg, USR, 3/8"-16

3/8-16 znd hex. lock

2шт.

19

9410330

TEE,37 Degree, 7/16"-20 x 7/16"-20, Fem Sw Run

7/16-20 hyd 37 deg flared tube swivel

1шт.

20

674635R1

ELBOW, 1-1/16-12 hyd 37 deg flared 45 deg swivel short reducing, Note A

1шт.

21

9410202

HYD CONNECTOR,9/16"-18, 37 Degree x 9/16"-18, O-Ring

CONNECTOR, 9/16-18 hyd 37 deg flared tube short swivel, Note A

1шт.

22

364839R1

O-RING,0.078" Thk x 0.468" ID, -906, Cl 6, 90 Duro

6-1, 90 Duro, .468" ID x .078" Thk, 3/8 OD tube, note A

7шт.

23

84530

ELBOW,90 Degree, 1 5/8"-12, 37 Degree x 1 5/8"-12, O-Ring

1-5/8-12 hyd 37 deg flared tube adj str thd 90 deg, Note A

1шт.

24

307915R1

O-RING,0.118" Thk x 1.475" ID, -920, Cl 6, 90 Duro

1-1/4 OD tube, Note A

1шт.

25

9410358

PLUG

9/16-18 str-thd o-ring boss, Note A

1шт.

26

3002774R1

CONNECTOR, ELEC,1 5/16"-12, 37 Degree x7/8"-14, O-Ring

CONNECTOR, 1-5/16-12 hyd 37 deg flared tube short reducer, Note A

1шт.

27

587577R1

CONNECTION,1 1/16"-12, 37 Degree x 3/4"-16, O-Ring

CONNECTOR, 1-1/16-12 hyd 37 deg flared tube short reducer, Note A

3шт.

28

343804R1

HYD CONNECTOR,1 1/16"-12, 37 Degree x 1/2"-14, NPTF

CONNECTOR, 1-1/16-12 hyd 37 deg flared tube reducer, Note A

1шт.

29

203930C1

ADAPTER, 1/2 NPTF to 1/2 NPSM hyd str, Note A

2шт.

30

203931C1

ELBOW, 3/4-16 o-ring boss to 1/2 NPSM 90 deg swivel, Note A

2шт.

31

9410334

TEE,37 Degree, 7/8"-14 x 7/8"-14, Fem Sw Run

7/8-14 hyd 37 deg flared tube

1шт.

32

481352R1

HYD CONNECTOR,3/4"-16, 37 Degree x 7/8"-14, O-Ring

CONNECTOR, 3/4-16 hyd 37 deg flared tube short reducer, Note A

2шт.

33

9410977

ELBOW,90 Degree, 3/4"-16, 37 Degree x 3/4"-16, O-Ring

3/4-16 hyd 37 deg flared tube adj str thd 90 deg, Note A

1шт.

34

935036R91

ELBOW

9/16-18 hyd 37 deg flared tube adj str thd 90 deg reducer, Note A

1шт.

35

9410976

ELBOW,90 Degree, 9/16"-18, 37 Degree x 9/16"-18, O-Ring

9/16-18 hyd 37 deg flared tube adj str thd 90 deg, Note A

5шт.

36

153619C91

ELBOW,90 Degree, 1 5/16"-12, 37 Degree x 1 1/16"-12, O-Ring

1-5/16-12 37 deg hyd flared tube adj str thd 90 deg reducer, Note A

1шт.

37

226032R1

SEAL

steering hand pump, Note A

1шт.

38

123008C91

FILTER

ASSY, charge pump, For components see list of parts under charge pump filter for hydrostatic drive

1шт.

541313R1

BOLT,Hex Serr Flg, 3/8" - 16 x 3/4"

SCREW, 3/8-16 x 3/4 znd hex-hd lock

3шт.

39

212224C1

TUBE ASSY, suction, Serial Range: tank-filter

1шт.

40

203889C1

TUBE ASSY, check valve

3шт.

41

202858C91

VALVE

ASSY, basket check

1шт.

42

203901C1

TUBE ASSY, stack valve to tank return

1шт.

43

204098C1

TUBE ASSY, valve to reservoir, For basket distributor att

1шт.

44

399923R92

VALVE

ASSY, actuating check, For basket distributor att, See detail list

1шт.

436740

SCREW,Slotted Pan Hd, #10-24 x 2"

10-24 x 2 cad pan-hd sltmach

3шт.

120361

NUT,Hex Mach Screw, #10 - 24

3шт.

120217

LOCK WASHER,#10

WASHER, LOCK, #10

3шт.

45

204097C1

TUBE ASSY, valve to hose, For basket distributor att

1шт.

46

209026C1

TUBE ASSY, crossover line to cylinder, For basket distributor att

1шт.

47

607005R91

HOSE

ASSY, For basket distributor att

1шт.

48

381853R93

CYLINDER BLOCK

CYLINDER ASSY, hydraulic, For basket distributor att, For components see list of parts under details of hyd cylinder

1шт.

49

674640R1

HOSE ASSY.

HOSE ASSY, main suction

1шт.

50

674677R92

PUMP

ASSY, hydraulic

1шт.

180124

BOLT,Hex, 3/8" - 16 x 1 1/4", Gr 5

SCREW, 3/8-16 x 1-1/4 znd hex-hd cap

2шт.

469668R1

WASHER

13/32 x 3/4 x 16 ga znd

2шт.

120382

LOCK WASHER,Helical Spring, 3/8"

WASHER, LOCK, 3/8"

2шт.

674976R92

KIT, back plate repair

1шт.

673754R92

SEAL KIT

KIT, major seal repair, Consists of

1шт.

NSS

NOT SOLD SEPARAT

DIAPHRAGM

1шт.

NSS

NOT SOLD SEPARAT

GASKET

1шт.

NSS

NOT SOLD SEPARAT

GASKET

1шт.

NSS

NOT SOLD SEPARAT

SEAL

1шт.

636628R91

SEAL

1шт.

24496R1

O-RING,-041, 70 Duro, 2.989" ID x .070" Thk

1шт.

350429R1

O-RING,0.103" Thk x 0.612" ID, -114, Cl 5, 75 Duro

1шт.

355966R1

O-RING,0.424" ID x 0.103" Width

1шт.

364879R1

O-RING,0.103" Thk x 0.862" ID, -118, Cl 5, 75 Duro

1шт.

383024R1

O-RING,0.07" Thk x 0.676" ID, -17, Cl 6, 90 Duro

3шт.

51

203925C1

HOSE

ASSY, hyd supply

1шт.

52

203926C1

HOSE ASSY.

HOSE ASSY, steering supply

1шт.

53

203906C1

TUBE ASSY, steering supply rear

1шт.

54

203888C1

TUBE ASSY, main supply rear

1шт.

55

203887C1

TUBE ASSY, main supply front

1шт.

55

204045C1

TUBE ASSY, main supply front, For basket distributor attach.

1шт.

56

219649C1

TUBE ASSY, motor relief

1шт.

57

219625C1

HOSE

ASSY, hydrostatic pressure long, 50.31 in. long

1шт.

58

1252349C91

MOTOR, ELECTRIC

MOTOR ASSY, hydrostatic drive, renewed, For components see list of parts under details of hydrostatic motor assy, group 7

1шт.

413-828

BOLT,Hex, 1/2" - 13 x 1-3/4", Gr 5

2шт.

180181

BOLT,Hex, 1/2" - 13 x 2", Gr 5

SCREW, 1/2-13 x 2 znd hex-hd cap

2шт.

103323

LOCK WASHER,1/2"

WASHER, LOCK, 1/2"

4шт.

674652R1

WASHER, 17/32 x 1-1/4 x 1/4 znd

4шт.

1286305C93

MOTOR, HYDRAULIC

HYDRAULIC MOTOR

1шт.

58

1286306C92

REMAN-HYDROSTAT MOTO

Remanufactured, For N.A. Only

1шт.

1978049C1

CORE-HYDROSTAT MOTOR

Return Number, For N.A. Only

1шт.

13

369384R1

O-RING,0.072" Thk x 0.414" ID, -905, Cl 6, 90 Duro

5-1, 90 Duro, .414" ID x .072" Thk, 5/16 OD tube, Note A

1шт.

59

219650C2

TUBE ASSY, foot-inch supply rear

1шт.

60

203903C1

TUBE ASSY, foot-inch supply front

1шт.

61

403347R91

LOCK VALVE

VALVE ASY, foot-n-inch, For components see list of parts under details of foot-n-inch valve controls

1шт.

124920

JAM NUT,Jam, 5/16"-24, G5

2шт.

180130

BOLT,Hex, 3/8" - 16 x 2", Gr 5

SCREW, 3/8-16 x 2 znd hex-hd cap

2шт.

482256R1

BEARING LOCK NUT,Flg, USR, 3/8"-16

3/8-16 znd hex lock

2шт.

62

203902C1

TUBE ASSY, foot-inch valve return

1шт.

63

202067C91

VALVE

ASSY, sensor, unit control, For components see list of parts under details of unit control valve

2шт.

18775R1

BOLT,Hex, 5/16"-18 x 5", G2

5/16 x 5 znd hex-hd mach

2шт.

21496R1

WASHER

11/32 x 3/4 x 11 ga znd

2шт.

938017R1

FLANGE NUT,Flg, USR, 5/16"-18

5/16-18 znd hex lock

2шт.

64

203890C1

TUBE ASSY, sensing valve return crossover

1шт.

65

RESERVOIR ASSY, hyd oil, Not for service, For service order ref. no. 92 thru 96

1шт.

180077

BOLT,Hex, 5/16" - 18 x 3/4", Gr 5

5/16 x 3/4 type 5

4шт.

475852R1

LOCK NUT

NUT, 5/16-18 flange lock

4шт.

66

203898C1

TUBE ASSY, Serial Range: tee-tank

1шт.

67

203900C1

TUBE ASSY, stack valve frt port to flow divider

1шт.

68

669074R91

DIVIDER ASSY, flow, For components see list of parts under details of flow divider

1шт.

413-540

BOLT,Hex, 5/16" - 18 x 2-1/2", Gr 5

SCREW, 5/16-18 x 2-1/2 znd hex-hd cap

2шт.

938017R1

FLANGE NUT,Flg, USR, 5/16"-18

5/16-18 znd hex. lock

2шт.

69

203833C92

VALVE ASSY, basket & header control, For components see list of parts under details of control valve

1шт.

541313R1

BOLT,Hex Serr Flg, 3/8" - 16 x 3/4"

SCREW, 3/8-16 x 3/4 znd hex-hd lock

3шт.

70

204047C1

TUBE ASSY, valve rear port to inside line, For basket distributor att

1шт.

71

204048C1

TUBE ASSY, basket distributor pivot frame, For basket distributor att

2шт.

113-206

BOLT,Hex, 3/8" - 16 x 3/4", Gr 5, Full Thd

3/8-16 x 3/4 znd hex-hd cap

2шт.

180122

BOLT,Hex, 3/8" - 16 x 1", Gr 5

3/8-16 x 1 znd hex-hd cap

4шт.

482256R1

BEARING LOCK NUT,Flg, USR, 3/8"-16

3/8-16 znd hex. lock

6шт.

72

673578R1

HOSE

ASSY, distributor connector, For basket distributor att

2шт.

73

673580R21

TUBE

HOSE ASSY, basket lower, For basket distributor att

1шт.

74

673789R11

TUBE

ASSY, cylinder return, For basket distributor att

1шт.

75

673579R21

TUBE ASSY, basket raise, For basket distributor att

1шт.

76

673821R1

ELBOW UNION

ELBOW, bulkhead tube, For basket distributor att

2шт.

77

669423R94

CYLINDER ASSY, hydraulic, For basket distributor att, For components see list of parts under details of basket distributor hydraulic cylinder

1шт.

23289R1

PIN, 1 x 2-3/4 znd std-hd 1" x 2 3/4"

1шт.

23290R1

HEADED PIN,1" x 3 1/2"

PIN, 1 x 3-1/2 znd std-hd

1шт.

20340R1

COTTER PIN,1/4" x 1 1/2"

Pin, Split (Cotter), 1/4" x 1 1/2"

2шт.

78

673582R11

TUBE,0.375" OD, 17, 1.2" Length

ASSY, distributor cylinder, For basket distributor att

1шт.

79

673581R1

HOSE

ASSY, cylinder, For basket distributor att

1шт.

80

673790R11

TUBE ASSY, cylinder, For basket distributor att

1шт.

81

673820R1

HOSE ASSY, cyl return, For basket distributor att

1шт.

82

171920C91

VALVE ASSY, steering, For components see list of parts under details of steering valve

1шт.

180122

BOLT,Hex, 3/8" - 16 x 1", Gr 5

3/8-16 x 1 znd hex-hd cap

1шт.

482256R1

BEARING LOCK NUT,Flg, USR, 3/8"-16

3/8-16 znd hex. lock

1шт.

83

59897C92

CYLINDER ASSY, unit lift, For components see list of parts under details of unit lift hyd cylinder

2шт.

23289R1

PIN, 1 x 2-3/4 znd std-hd 1" x 2 3/4"

2шт.

20340R1

COTTER PIN,1/4" x 1 1/2"

Pin, Split (Cotter), 1/4" x 1 1/2"

2шт.

21814R1

HEADED PIN,1/2" x 3"

PIN, 1/2 x 3 znd std-hd

2шт.

18481R1

COTTER PIN,3/16" x 1"

PIN, SPLIT (COTTER), 3/16" x 1"

2шт.

84

321322R91

HOSE ASSY, unit lift

2шт.

85

203923C1

TUBE ASSY, sensing valve to unit cyl LH rear

1шт.

86

203922C1

TUBE ASSY, sensing valve to unit cyl LH front

1шт.

87

203924C1

TUBE ASSY, sensing valve to unit cyl RH

1шт.

88

202848C1

HUB

drive coupling engine shaft

1шт.

89

202849C1

DIFF. SPIDER

SPIDER, drive coupling

1шт.

90

202847C1

HUB

drive coupling pump shaft

1шт.

91

674911R1

CAP

& DIPSTICK, oil reservoir

1шт.

92

674995R1

BRACKET

COVER, reservoir

1шт.

142745

NUT, WING

NUT, 5/16-18 znd wing

6шт.

93

386121R92

VALVE

ASSY, by-pass

1шт.

94

963460R1

O-RING,0.275" Thk x 5.475" ID, -433, Cl 5, 75 Duro

5-1/2 x 6 x 1/4

1шт.

95

386120R91

FILTER CARTRIDGE

FILTER ASSY, oil

1шт.

96

674994R1

TANK

RESERVOIR, hydraulic

1шт.

97

204046C1

TUBE ASSY, valve front port to outside line, For basket distributor att

1шт.

98

204074C1

BRACKET ASSY, cylinder anchor, For basket distributor att

1шт.

19873R1

HARDWARE,Hex, 3/4"-10 x 5 1/2", G5

SCREW, 3/4-10 x 5-1/2 znd hex-hd cap

2шт.

87340

LOCK WASHER,Helical Spring, 0.759" ID, CST, ZND

WASHER, LOCK, 3/4"

2шт.

280954

NUT,3/4"-10, G5

2шт.

99

204078C1

ANGLE, stop, For basket distributor att

1шт.

113-206

BOLT,Hex, 3/8" - 16 x 3/4", Gr 5, Full Thd

3/8-16 x 3/4 znd hex-hd cap

2шт.

482256R1

BEARING LOCK NUT,Flg, USR, 3/8"-16

3/8-16 znd hex. lock

2шт.

100

204080C1

ANGLE, valve support, For basket distributor att

1шт.

101

204079C1

U-BOLT, valve support angle, For basket distributor att

2шт.

482256R1

BEARING LOCK NUT,Flg, USR, 3/8"-16

3/8-16 znd hex. lock

4шт.

102

59898C92

CYLINDER ASSY, lift, For components see list of parts under details of hydraulic lift cylinder

2шт.

103

203921C1

TUBE ASSY, basket cyl rear

2шт.

104

203927C1

HOSE ASSY, basket cyl raise

2шт.

105

203928C1

HOSE ASSY, basket cyl lower

2шт.

106

382579R96

PUMP

ASSY, steering hand, For components see list of parts under details of hydrostatic power steering hand pump

1шт.

202107C1

BOLT,Hex Serr Flg, 5/16" - 18 x 3/4"

SCREW, 5/16-18 x 3/4 znd hex-hd lock

4шт.

107

203920C1

TUBE ASSY, rear port, down basket rear

1шт.

108

203916C1

TUBE ASSY, front port, raise basket rear

1шт.

109

203919C1

TUBE ASSY, rear port, down basket center cross

1шт.

110

203918C1

TUBE ASSY, front port, down basket front cross

1шт.

111

203915C1

TUBE ASSY, front port, raise basket center

1шт.

112

203917C1

TUBE ASSY, front port, raise basket front

1шт.

113

203914C1

TUBE ASSY, rear port, down basket front

1шт.

114

939254R11

TUBE ASSY, steering valve front

1шт.

115

939252R11

TUBE ASSY, steering valve rear

1шт.

116

203907C1

TUBE ASSY, steering valve return

1шт.

117

203905C1

TUBE ASSY, steering supply front

1шт.

118

203908C1

TUBE ASSY, steering valve rear port to bottom tube

1шт.

119

203909C1

TUBE ASSY, steering valve front port to top tube

1шт.

120

203910C1

TUBE ASSY, steering bottom center

1шт.

121

203911C1

TUBE ASSY, steering top center

1шт.

122

203912C1

TUBE ASSY, steering bottom tube to front cyl hose

1шт.

123

203913C1

TUBE ASSY, steering top tube to rear cylinder hose

1шт.

124

155309C91

HYDRAULIC HOSE,0.31" ID x 20.00", SAE 100R1

Steering Cylinder 0.31" ID x 20.00", SAE 100R1

2шт.

125

548247R91

CYLINDER ASSY.,Double Acting, 22.35mm Rod, 228.6mm Stroke

CYLINDER ASSY, steering, For components see list of parts under details of steering cylinder

1шт.

126

OIL COOLER, see group 6 oil cooler

1шт.

127

HOSE, oil cooler, Use 24.5 in. from bulk roll, 73200C1

2шт.

128

333710R91

HOSE CLAMP,#16, 0.81/1.50 Type F Worm

SWITCH MOUNTING, no. 16 hose

10шт.

129

203892C1

TUBE ASSY, pump to cooler rear

1шт.

130

203896C1

TUBE ASSY, Serial Range: cooler-tank

1шт.

117965

GROMMET,5/8" ID x 1 11/64" x .062"

rubber

2шт.

131

674653R1

GASKET

pump mount

1шт.

132

203834C1

VALVE

ASSY, cooler relief

1шт.

133

68867C1

HOSE

pump drain to cooler, 5/8 ID x 38 in. long

1шт.

134

217822C1

ELBOW

1-5/16-12 x 90 deg tube, hose at pump

1шт.

135

1252340C91

PUMP

ASSY, hydrostatic drive, renewed, For components see list of parts under details of hydrostatic drive pump, group 7

1шт.

179894

BOLT,Hex, 1/2" - 13 x 3 1/4", Gr 5

4шт.

103323

LOCK WASHER,1/2"

WASHER, LOCK, 1/2"

4шт.

674652R1

WASHER, 17/32 x 1-1/4 x 1/4 znd

4шт.

136

203261C1

SPACER, basket cylinder, Note A

2шт.

23349R1

SCREW, 1-14 x 5-1/4 znd hex-hd cap

2шт.

23261R1

LOCK NUT,1"-14, GC

NUT, 1-14 znd hex. lock

2шт.

137

HOSE, hydrostatic motor drain, Use 24.5 in. from bulk roll, 73200C1

1шт.

138

219664C1

HOSE, hydrostatic suction, Serial Range: pump-filter

1шт.

139

203899C1

TUBE ASSY, rear port stack, Serial Range: valve-tee

1шт.

140

627411R2

BRACKET, hyd RH

1шт.

113-206

BOLT,Hex, 3/8" - 16 x 3/4", Gr 5, Full Thd

3/8-16 x 3/4 znd hex-hd cap

2шт.

482256R1

BEARING LOCK NUT,Flg, USR, 3/8"-16

3/8-16 znd hex. lock

2шт.

141

217465C1

SUPPORT, hydraulic control valve left

1шт.

113-206

BOLT,Hex, 3/8" - 16 x 3/4", Gr 5, Full Thd

3/8-16 x 3/4 znd hex-hd cap

1шт.

482256R1

BEARING LOCK NUT,Flg, USR, 3/8"-16

3/8-16 znd hex. lock

1шт.

142

299404C1

CLAMP

3/8 closed

18шт.

143

299407C1

CLAMP

1/2 closed

8шт.

144

129083R1

CLAMP

5/8 closed

14шт.

145

299566C1

CLAMP

3/4 closed

4шт.

146

HL3551

CLAMP,1", 3/8" Bolt

1 in. closed

1шт.

113-206

BOLT,Hex, 3/8" - 16 x 3/4", Gr 5, Full Thd

3/8-16 x 3/4 znd hex-hd cap

29шт.

482256R1

BEARING LOCK NUT,Flg, USR, 3/8"-16

3/8-16 znd hex. lock

29шт.

147

299400C1

CLAMP

1/4 closed

4шт.

148

203933C1

ANGLE, stack valve return line support

1шт.

180126

BOLT,Hex, 3/8" - 16 x 1 1/2", Gr 5

SCREW, 3/8-16 x 1-1/2 znd hex-hd cap

1шт.

482256R1

BEARING LOCK NUT,Flg, USR, 3/8"-16

3/8-16 znd hex. lock

1шт.

149

364002R1

SPACER,3/8" Pipe x 1"

steering cyl line

1шт.

150

203787C2

CHANNEL, filter support

1шт.

151

671796R1

ELBOW,90 Degree, 9/16"-18, 37 Degree x 9/16"-18, O-Ring

w/locknut & washer, 7/8-14 x 9/16-18 90 deg, For basket distributor att, Note A

1шт.

152

364885R1

O-RING,0.097" Thk x 0.755" ID, -910, Cl 6, 90 Duro

3/4 x 15/16 x 3/32, For basket distributor att, Note A

3шт.

153

935433R1

HYD CONNECTOR,9/16"-18, 37 Degree x 7/8"-14, O-Ring

CONNECTOR, 7/8-14 x 9/16-18 37 deg tube, For basket distributor att, Note A

2шт.

154

299404C1

CLAMP

CLIP, no. 6 3/8 x 19/32 closed, For basket distributor att

19шт.

155

655543R1

SPACER

tube mounting short, For basket distributor att

1шт.

156

580883R1

SPACER,3/8" Pipe x 3 1/4"

tube mounting long, For basket distributor att

1шт.

113-233

BOLT,Hex, 3/8" - 16 x 1-3/4", Gr 5

3/8-16 x 1-3/4 znd hex-hd cap

1шт.

191163

BOLT,Hex, 3/8" - 16 x 4", Gr 5

SCREW, 3/8-16 x 4 znd hex-hd cap

1шт.

482256R1

BEARING LOCK NUT,Flg, USR, 3/8"-16

3/8-16 znd hex. lock

2шт.

157

204054C1

PORT

ORIFICE, For basket distributor att, Note A

2шт.

158

587639R1

HYD CONNECTOR,9/16"-18, 37 Degree x 3/4"-18, O-Ring

CONNECTOR, 3/4-16 to 9/16-18 37 deg hyd flared tube short reducer For basket distributor att, Note A

2шт.

159

570828R1

O-RING,0.087" Thk x 0.644" ID, -908, Cl 6, 90 Duro

.644 x .818 x .087, For basket distributor att, Note A

2шт.

160

279026R91

HOSE CLAMP,#36, 1.81/2.75 Type F Worm

CLAMP, tube, For basket distributor att

1шт.

161

9410976

ELBOW,90 Degree, 9/16"-18, 37 Degree x 9/16"-18, O-Ring

9/16-18 hyd 37 deg flared adj str thd, For basket distributor att, Note A

2шт.

162

9410202

HYD CONNECTOR,9/16"-18, 37 Degree x 9/16"-18, O-Ring

CONNECTOR, 9/16-18 37 deg hyd flared tube short swivel, For basket distributor att, Note A

1шт.

163

364839R1

O-RING,0.078" Thk x 0.468" ID, -906, Cl 6, 90 Duro

6-1, 90 Duro, .468" ID x .078" Thk, 3/8 OD tube, for basket distributor att, note A

3шт.

164

166506C1

GASKET,0.81mm Thk

hydrostatic motor

1шт.

165

209142C1

SUPPORT, hydraulic reservoir front

1шт.

166

209144C1

ANGLE, reservoir support

1шт.

180077

BOLT,Hex, 5/16" - 18 x 3/4", Gr 5

5/16 x 3/4 type 5

2шт.

938017R1

FLANGE NUT,Flg, USR, 5/16"-18

5/16 flange lock

2шт.

167

209143C1

SUPPORT, hydraulic reservoir rear

1шт.

113-206

BOLT,Hex, 3/8" - 16 x 3/4", Gr 5, Full Thd

3/8 x 3/4 type 5

2шт.

482256R1

BEARING LOCK NUT,Flg, USR, 3/8"-16

3/8 flange lock

2шт.

168

877949C2

CLAMP

split flange

8шт.

180124

BOLT,Hex, 3/8" - 16 x 1 1/4", Gr 5

SCREW, 3/8-16 x 1-1/4 znd hex-hd cap

16шт.

120382

LOCK WASHER,Helical Spring, 3/8"

WASHER, LOCK, 3/8"

16шт.

169

219626C1

HOSE

ASSY, hydrostatic pressure short, 33.27 in. long

1шт.

VALVE ASSY, main hydraulic, For basket distributor att, For service 1 203833C92 and 1 173569C92

1шт.

173569C92

VALVE

ASSY, distributor, See valve assy, 203833C92 for components of 173569C92, For basket distributor att

1шт.

20484R1

BOLT,Hex, 5/16" - 18 x 6 1/2", Gr 5

SCREW, 5/16-18 x 6-1/2 znd hex-hd cap

3шт.

80681

LOCK WASHER,5/16"

WASHER, LOCK, 5/16"

3шт.

384943R1

O-RING,0.739" ID x 0.07" Width

-018, 90 Duro, .739" ID x .070" Thk, For Valve, 173569C92

3шт.

Выбрано товаров: 257