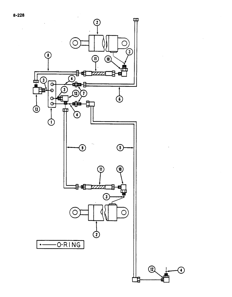
Запчасти Case IH 782 (8-228) - DRUM CONTROL VALVE, CYLINDERS AND CONNECTIONS, LOW DRUM P.I.N. 507 -681 HIGH DRUM P.I.N. 507-2124 (07) - HYDRAULICS

Схема запчастей Case IH 782 - (8-228) - DRUM CONTROL VALVE, CYLINDERS AND CONNECTIONS, LOW DRUM P.I.N. 507 -681 HIGH DRUM P.I.N. 507-2124 (07) - HYDRAULICS
2
5
13
2
9
13
4
7
3
8
6
11
4
4
3
3
1
12
11
10
10
3
FIT
1:1
100%

Артикул

Название

Примечание

Количество

1

673196R92

VALVE

ASSEMBLY - drum control (See Page 8-251)

1шт.

180091

SPRING

- hex, 5/16 NC x 2-1/2 inch

2шт.

80681

LOCK WASHER,5/16"

WASHER, LOCK, 5/16"

2шт.

120376

NUT,5/16"-18, G5

2шт.

2

133563C93

CYLINDER ASSY.

CYLINDER ASSEMBLY - drum lift

2шт.

404219R93

SEAL KIT

- O-ring and seal

1шт.

216312C1

ROD - lynch (Note A)

2шт.

221681C1

ROD

- lynch (Note B)

2шт.

216313C1

PIN (Note A)

2шт.

221680C1

PIN

(Note B)

2шт.

19471R1

PIN, SPLIT (COTTER),1/4" x 1 3/4"

2шт.

3

570828R1

O-RING,0.087" Thk x 0.644" ID, -908, Cl 6, 90 Duro

- 1/2 inch OD tube

4шт.

4

364885R1

O-RING,0.097" Thk x 0.755" ID, -910, Cl 6, 90 Duro

- 3/4 ID x 3/32 inch width (19 ID x 2 mm width)

3шт.

5

215781C1

TUBE - drum valve supply

1шт.

6

215792C1

TUBE - drum valve drain

1шт.

7

9410204

HYD CONNECTOR,7/8"-14, 37 Degree x 7/8"-14, O-Ring

CONNECTOR - hydraulic tube short swivel, 7/8-14 inch thread

2шт.

8

215794C1

TUBE - drum valve to cylinder right

1шт.

9

215795C1

TUBE - drum valve to cylinder left

1шт.

10

935036R91

ELBOW

- 90 degree adjustable straight thread hydraulic tube, 9/16-18 inch thread

2шт.

11

673448R1

HOSE ASSY.

HOSE - drum lift cylinder

2шт.

12

9410978

ELBOW,90 Degree, 7/8"-14, 37 Degree x 7/8"-14, O-Ring

- 90 degree adjustable straight thread hydraulic tube, 7/8-14 inch thread

1шт.

13

673447R2

ELBOW - 90 degree hydraulic tube, 9/16-18 inch thread

2шт.

Выбрано товаров: 22