Запчасти Case IH 2612XR (58.208.260) - CHOPPER SHIELDINGS (58) - ATTACHMENTS/HEADERS

Схема запчастей Case IH 2612XR - (58.208.260) - CHOPPER SHIELDINGS (58) - ATTACHMENTS/HEADERS
3
10
9
5
2
home
7
6
58.208.270
9
11
6
7
4
4
11
9
11
1
8
8
11
9
3
5
8
FIT
1:1
100%

Артикул

Название

Примечание

Количество

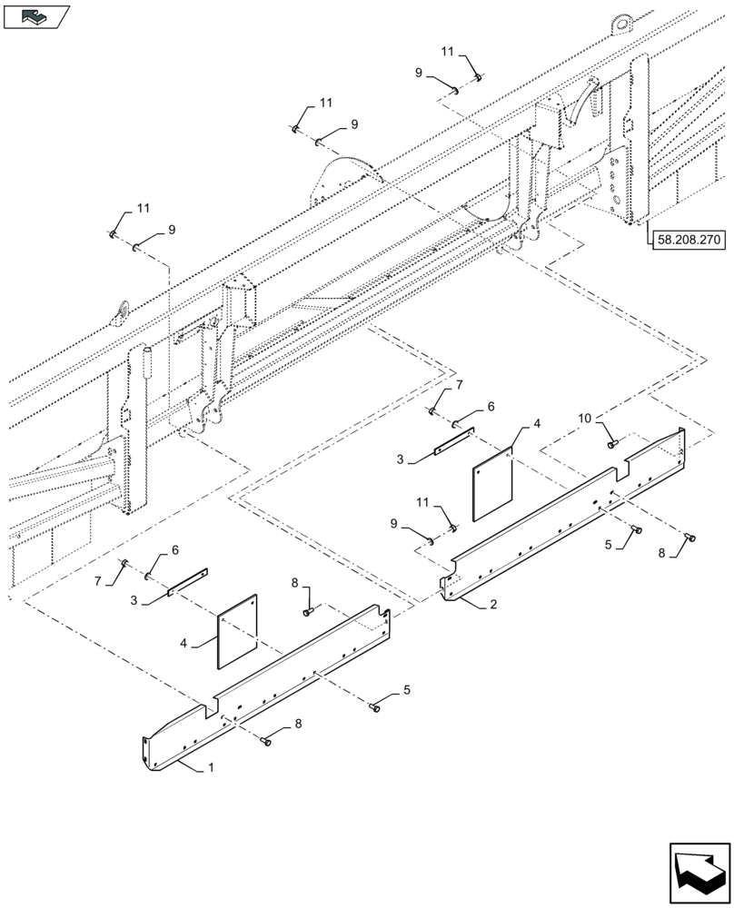
1

87518704

PLATE

,, Serial Range: -C583

1шт.

1

84251003

PLATE

,, Start Serial: D584

1шт.

FOR 2608XR ONLY

1шт.

1

84476402

SHEET

, Start Serial: D584

1шт.

FOR 2612XR ONLY

1шт.

2

87518714

PLATE

,, Serial Range: -C583

1шт.

2

84251028

PLATE

,, Start Serial: D584

1шт.

FOR 2608XR ONLY

1шт.

2

84476405

SHEET

, Start Serial: D584

1шт.

FOR 2612XR ONLY

1шт.

3

84977660

FIXING PLATE

12шт.

4

84977584

CANVAS

12шт.

5

308761

CARRIAGE BOLT,M8 x 1.25 x 25mm, Cl 8.8

24шт.

6

140016

WASHER,M8 x 16mm OD x 1.6mm Thk

24шт.

7

86629542

NUT,M8 x 1.25, Cl 8.8

24шт.

8

86507486

CARRIAGE BOLT,M8 x 1.25 x 20mm, Cl 8.8

5шт.

9

322358

BELLEVILLE WASHER,M8 Bolt Size x 18mm OD x 1.4mm Thk

9шт.

10

308761

CARRIAGE BOLT,M8 x 1.25 x 25mm, Cl 8.8

,, Serial Range: -C579

4шт.

11

9706690

NUT,M8 x 1.25, Cl 8

9шт.

Выбрано товаров: 19