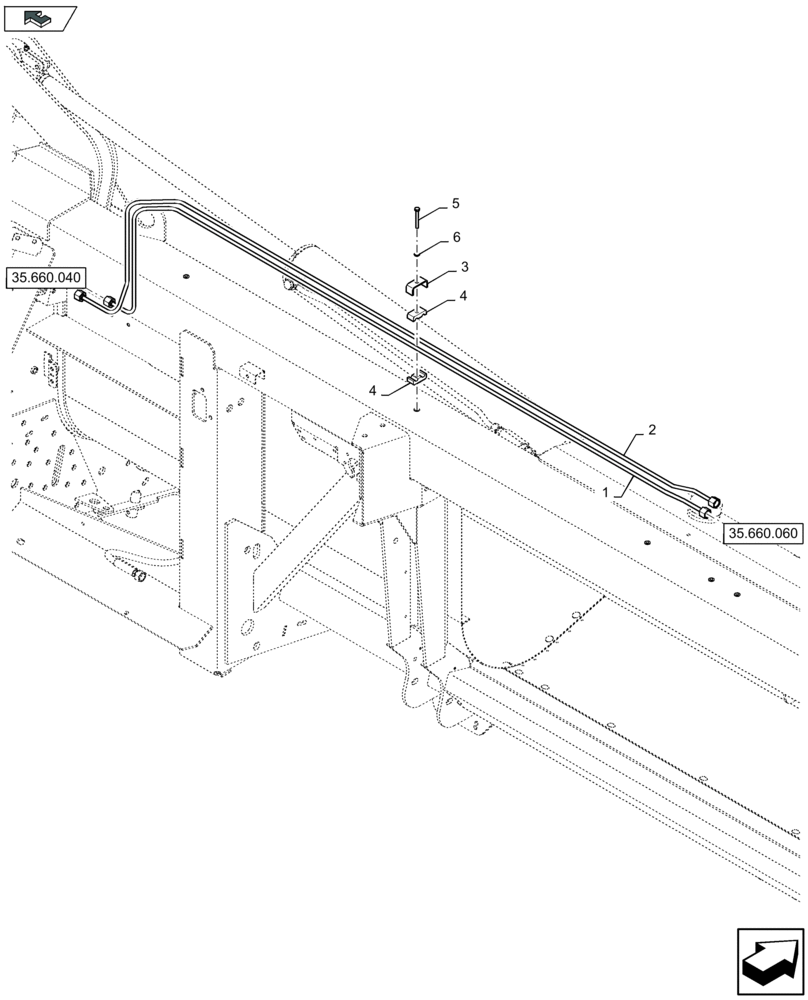
Запчасти Case IH 4412F-30 (35.660.050) - HYDRAULIC FLIP UP TUBES FROM LH VALVE TO MANIFOLD (35) - HYDRAULIC SYSTEMS

Схема запчастей Case IH 4412F-30 - (35.660.050) - HYDRAULIC FLIP UP TUBES FROM LH VALVE TO MANIFOLD (35) - HYDRAULIC SYSTEMS
4
35.660.040
4
1
3
2
6
home
35.660.060
5
FIT
1:1
100%

Артикул

Название

Примечание

Количество

1

47380823

HYD TUBE

1шт.

FOR 4412F-30 ONLY

1шт.

1

47625079

HYD TUBE

1шт.

FOR 4406F-75, 4406F-80, 4408F-75, 4408F-80 AND 4408F-30 ONLY

1шт.

2

47380825

HYD TUBE

1шт.

FOR 4412F-30 ONLY

1шт.

2

47625082

HYD TUBE

1шт.

FOR 4406F-75, 4406F-80, 4408F-75, 4408F-80 AND 4408F-30 ONLY

1шт.

3

431941

SUPPORT

3шт.

4

430357

CLAMP

6шт.

5

120056

BOLT,M6 x 1.0 x 54.15mm, Cl 8.8

3шт.

6

86588450

WASHER,6.6mm ID x 12mm OD x 1.6mm Thk

3шт.

Выбрано товаров: 12