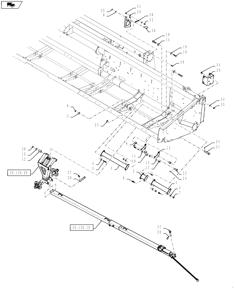
Запчасти Case IH 3162 (58.130.07) - HEADER TRANSPORT, FRONT, 30 FOOT HEADER (58) - ATTACHMENTS/HEADERS

Схема запчастей Case IH 3162 - (58.130.07) - HEADER TRANSPORT, FRONT, 30 FOOT HEADER (58) - ATTACHMENTS/HEADERS
4
15
11
12
24
28
7
18
home
23
3
21
5
14
39
27
58.130.09
3
10
30
29
24
6
20
36
26
14
32
22
38
2
1
6
25
58.130.10
19
9
13
33
35
37
8
34
4
31
17
16
FIT
1:1
100%

Артикул

Название

Примечание

Количество

1

84421041

TUBE

1шт.

2

84421044

TUBE

1шт.

3

84482397

TUBE

1шт.

4

140046

BELLEVILLE WASHER,M12 Bolt Size x 27mm OD x 1.8mm Thk

8шт.

5

86629541

BOLT,Hex, M12 x 1.75 x 40mm, Cl 8.8

4шт.

6

120080

BOLT,Hex, M12 x 45, 8.8

M12 x 45

4шт.

7

9706685

NUT,M12 x 1.75, Cl 8

6шт.

8

322358

BELLEVILLE WASHER,M8 Bolt Size x 18mm OD x 1.4mm Thk

4шт.

9

84420215

BUSHING,17mm ID x 38mm OD x 50mm L

2шт.

10

84422047

LINK

1шт.

11

84420765

BUSHING,17mm ID x 31.75mm OD x 13mm L

2шт.

12

84476406

BUSHING,16.5mm ID x 32mm OD x 63mm L

2шт.

13

84421031

PLATE

2шт.

14

140048

BELLEVILLE WASHER,M16 Bolt Size x 32mm OD x 2.8mm Thk

4шт.

15

86592702

WASHER,17mm ID x 45mm OD x 6mm Thk

2шт.

16

86577946

BOLT,Hex, M16 x 80mm x 10.9

2шт.

17

374835

BOLT,Hex, M16 x 2 x 40mm, Cl 10.9, Full Thd

2шт.

18

374889

BOLT,Hex, M16 x 100mm, Cl 8.8

2шт.

19

14496931

WASHER,17mm ID x 30mm OD x 3mm Thk

2шт.

20

86000441

NUT,M16 x 2.0, Cl 8

2шт.

21

84420770

PIN,25.15mm OD x 217mm L

1шт.

22

84420754

PIN,25.15mm OD x 95.5mm L

2шт.

23

87016608

WASHER,25.8mm ID x 44.5mm OD x 5mm Thk

3шт.

24

412687

COTTER PIN,6.3mm OD x 32mm OAL

3шт.

25

9706690

NUT,M8 x 1.25, Cl 8

4шт.

26

84423856

PIN,25mm OD x 159mm L

1шт.

27

270184

LINCH PIN,6.35mm OD

1шт.

28

84604135

PLATE

1шт.

29

84603750

HANGER

1шт.

30

425885A1

HITCH PIN

1шт.

31

132757

LINCH PIN,11.11mm OD x 44.45mm L

1шт.

32

43127

BOLT,Hex, M8 x 1.25 x 25mm, Cl 8.8

4шт.

33

86633356

CARRIAGE BOLT,M10 x 34.8mm, Cl 8.8

3шт.

33

86633356

CARRIAGE BOLT,M10 x 34.8mm, Cl 8.8

3шт.

34

140045

BELLEVILLE WASHER,M10 Bolt Size x 22mm OD x 1.6mm Thk

3шт.

35

100016

NUT,M10 x 1.5, Cl 8

3шт.

Выбрано товаров: 36