Запчасти Case IH 8830 (66) - REEL ARM ASSEMBLY, RIGHT AND LEFT (58) - ATTACHMENTS/HEADERS

Схема запчастей Case IH 8830 - (66) - REEL ARM ASSEMBLY, RIGHT AND LEFT (58) - ATTACHMENTS/HEADERS
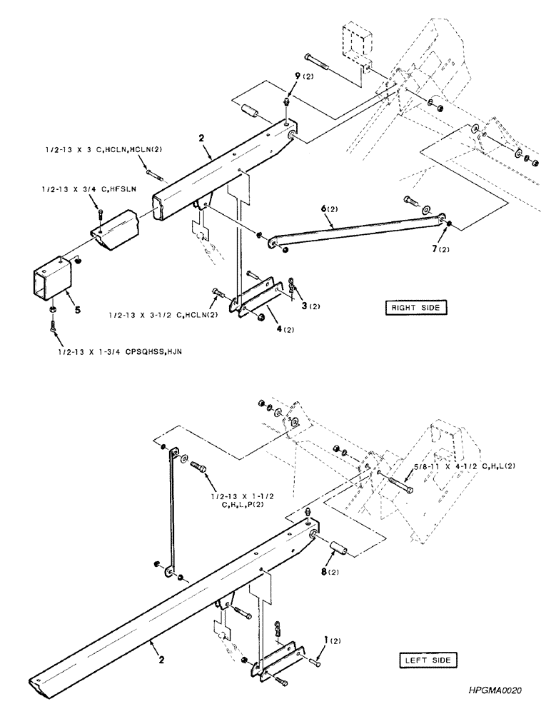
6
4
9
5
3
7
8
1
2
2
FIT
1:1
100%

Артикул

Название

Примечание

Количество

1

063883

1/2 X 3 CLEVIS PIN

2шт.

2

700116338

ARM

- reel

2шт.

3

062521

.125 X 2-1/2 HAIRPIN COTTER

2шт.

4

700116333

STOP

- safety

2шт.

5

700116317

CHANNEL

- mounting, reel

1шт.

6

700116345

SUPPORT

BRACE - corner, reel arm

2шт.

7

6214639

SPACER

BUSHING

2шт.

8

700116331

SPACER

BUSHING - reel arm

2шт.

9

077016

1/4-28 ZERK

2шт.

10

052928

3/4 X 14 GAUGE MACHINERY BUSHING

4шт.

7771769

BOLT

1/2-13 X 3/4 C

1шт.

701235

BOLT,1/2" - 13 x 1 1/2", Gr 5

1/2-13 X 1-1/2 C

2шт.

7702038

SCREW,Hex, 1/2" - 13 x 3", Gr 5

1/2-13 X 3 C

2шт.

773374

BOLT,Hex, 1/2" x 3 1/2", Gr 5

1/2-13 X 3-1/2 C

2шт.

873745

BOLT,Hex, 5/8" - 11 x 4 1/2", Gr 5

5/8-11 X 4-1/2 C

2шт.

708537

CONE

1/2-13 X 1-3/4 CPSQHSS

1шт.

704858

LOCK NUT

1/2-13 HTLN

6шт.

Выбрано товаров: 17