Качественные детали и логистика
Оригинальные и аналоговые запчасти с доставкой по России, Казахстану и Беларуси
©2022 PartSell ООО "Система" ИНН 2463123282 ОГРН 1212400004838
Центральный офис: г. Красноярск, Академика Киренского, д.87, пом.4
Телефон: 8 (800) 777-65-74 Email: zakaz@partsell.ru
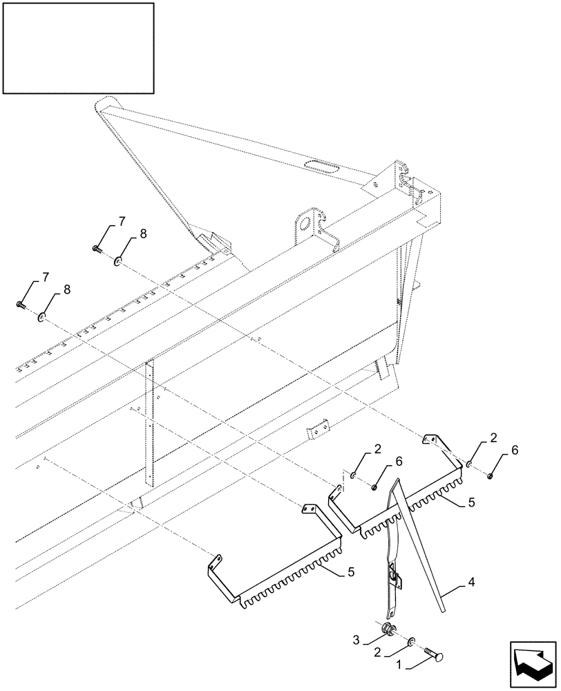
(18.84095978[01]) - DIA : CROPLIFTER SET
№
Артикул
Название
Примечание
Количество
84095978
DIA KIT, HARVESTER
1шт.
1
374892
CARRIAGE BOLT,M10 x 1.5 x 40mm, Cl 8.8
23шт.
2
140045
BELLEVILLE WASHER,M10 Bolt Size x 22mm OD x 1.6mm Thk
31шт.
3
89514326
NUT
4
84814554
CROP LIFTER
5
84441549
SUPPORT
2шт.
6
100016
NUT,M10 x 1.5, Cl 8
8шт.
7
43138
BOLT,Hex, M10 x 1.5 x 20mm, Cl 8.8
8
140042
WASHER,11mm ID x 34mm OD x 3mm Thk
Выбрано товаров: 0