Качественные детали и логистика
Оригинальные и аналоговые запчасти с доставкой по России, Казахстану и Беларуси
©2022 PartSell ООО "Система" ИНН 2463123282 ОГРН 1212400004838
Центральный офис: г. Красноярск, Академика Киренского, д.87, пом.4
Телефон: 8 (800) 777-65-74 Email: zakaz@partsell.ru
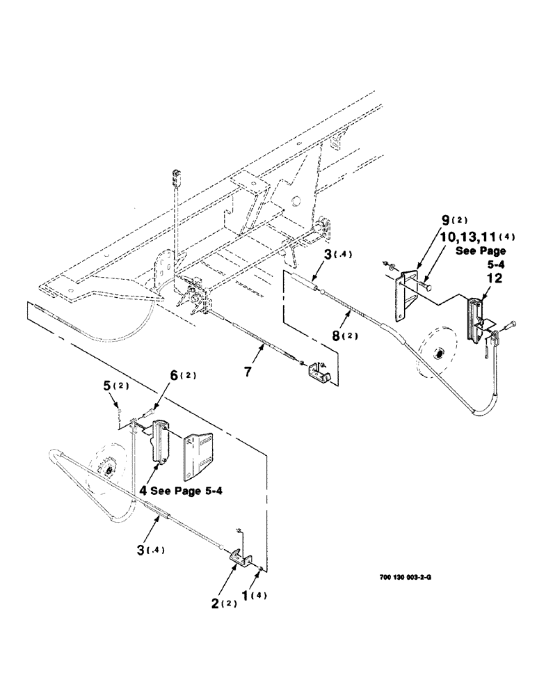
(05-02) - BRAKE CABLE ASSEMBLY
№
Артикул
Название
Примечание
Количество
1
425-115
NUT,5/16"-24, G5
4шт.
2
6827745
BRACKET
2шт.
3
700712508
TUBE
TUBING - shrink
8шт.
4
7720337
BRAKE ASSY.
BRAKE ASSEMBLY - right
1шт.
5
432-1012
COTTER PIN,5/32" x 3/4"
5/32" x 3/4"
6
427-6106
CLEVIS PIN,9.53mm OD x 26.92mm L
3/8 X 1 CLEVIS PIN
7
700707017
FLEXIBLE CONTROL
CABLE - brake
8
7720360
CABLE
- brake
9
6829741
BRAKE BRACKET
10
433-816
CARRIAGE BOLT,Sq Nk, 1/2" - 13 x 1", Gr 5
1/2-13 X 1 RHSNB
11
425-108
NUT,1/2" - 13, Gr 5
NUT, , Hex 1/2"-13, G5
12
7720329
BRAKE ASSEMBLY - left
13
495-21056
WASHER,1/2"
1/2 HARDENED PLAIN WASHER
Выбрано товаров: 0