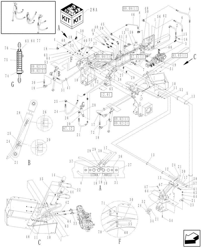
Запчасти Case IH WD1203 (09.05[1]) - HEADER LIFT HYDRAULICS (09) - HEADER LIFT LINKAGE

Схема запчастей Case IH WD1203 - (09.05[1]) - HEADER LIFT HYDRAULICS (09) - HEADER LIFT LINKAGE
ld
64
18
64
18
29
12
34
5
24
19
60
2
63
8
lac
52
53
35
55
1
21
t1
60
6
63
21
30
55
23
31
18
18
70
21
30
46
72
a
rac
2
36
2sp
27
16
63
20
59
28
09.02(1)
3
03.05(1)
07.01(1)
09.06(1)
09.08(1)
09.02(2)
09.02(1)
09.02(2)
5
6
29
4
27
33
55
25
52
54
acc
4
24
1
66
65
7
12.01
07.12
g
6
14
5
44
13
18
p4
49
28a
25
b
48
58
43
15
37
47
9
39
13
20
11
41
3
11
75
62
t2
11
41
18
13
36
38
26
37
32
40
b
21
26
18
10
28
10
17
10
f
24
63
rd
77
57
45
64
a
7
0
24
f
42
51
g
50
31
61
74
13
22
30
67
21
64
c
8
17
30
17
56
64
76
4
71
p3
29
41
60
c
FIT
1:1
100%

Артикул

Название

Примечание

Количество

1

87628438

SUPPORT

1шт.

2

86979923

HOSE ASSY.

Attach to "P5" Port of Ref. 50

1шт.

3

182977

90 ELBOW,90 Degree, 7/8"-14, 37 Degree x 7/8"-14, 37 Degree Fem Sw

1шт.

4

86979929

HOSE,12.70 mm ID x 1955.80 mm, SAE 100R16

Attach to "LHL" Port of Ref. 50

1шт.

5

87046143

SLEEVE

3шт.

6

86979920

HOSE ASSY.

Attach to "P1" Port of Ref. 50 & Front Header Lift Pump

1шт.

7

87027892

HOSE,1.00" ID x 20.50", SAE 100R4

1шт.

8

219603

90 ELBOW,1-1/16" - 12 JIC x 1-1/16" - 12, 37 Degree Fem Sw

Attach to "T1" Port of Ref. 50

1шт.

9

87045897

HOSE,9.65 mm ID x 1346.2 mm, SAE 100R16

Attach to "RAC" Port of Ref. 50

1шт.

10

86563609

CLAMP

1шт.

11

87053042

PLATE

2шт.

12

87679334

SUPPORT

1шт.

13

529070

CABLE TIE,368.3mm L

CABLE STRAP

11шт.

14

87383612

ACCUMULATOR

2шт.

15

No Longer Serviced

1шт.

16

No Longer Serviced

1шт.

17

87738255

HOSE

1/2" ID x 3/4" OD x 122" Long

1шт.

18

128830

90 ELBOW,3/4" - 16 JIC x 3/4" - 16 ORB

Incl. Ref. 68

6шт.

19

600427

CLAMP,25.4mm, Coat, 8.7mm Bolt Hole, P Type

1шт.

Use Existing Hardware from Reservoir

1шт.

20

261066

ORIFICE,9/16" - 18, 0.813" Orifice

1шт.

21

87017790

HOSE ASSY.

Attach to "P3" Port of Ref. 50

1шт.

22

129172

CLAMP

4шт.

23

9706748

CLAMP,15.9mm, Coat, 8.7mm Bolt Hole, P Type

2шт.

24

87017791

HOSE ASSY.,9.53mm ID x 2667mm L

Attach to "TLT" Port of Ref. 50

1шт.

25

76344

90 ELBOW,9/16" - 18 JIC x 9/16" - 18 ORB

Incl. Ref. 69

2шт.

26

87029579

ORIFICE

1шт.

27

87011598

PLATE

1шт.

28

87593870

HYDRAULIC CYLINDER,Double Acting, 28.7mm Rod, 152.4mm Stroke

Header Tilt, 2" x 6"

1шт.

28

87593870R

REMAN-HYD CYLINDER

WD1203, WD1903, WD2303, All CASE IH SELF-PROPELLED WINDROWER, Header Tilt, 2" x 6" (9/07-)

1шт.

28

87593870C

CORE-HYD CYLINDER

Return Number

1шт.

28

84316389

HYDRAULIC CYLINDER,Double Acting, 28.57mm Rod, 203.2mm Stroke

Header Tilt, 2" x 8"

1шт.

From PIN YAG663501

1шт.

28a

84316352

KIT

Tilt Cylinder Mount Rework Kit, See Fig. 18.34

1шт.

29

216797

45 ELBOW,45 Degree, 3/4"-16, 37 Degree x 3/4"-16, O-Ring

Includes: Ref. 68

2шт.

30

86979930

HOSE,0.50" ID x 118.00", SAE 100R16

Attach to "RHL" Port of Ref. 50

1шт.

31

87612415

HOSE

13/16" OD x 1/2" ID x 43" Long

1шт.

32

87000150

CLAMP,15.869mm ID

1шт.

33

86511870

TEE,3/4" - 16 JIC x 3/4" - 16 JIC x 3/4" - 16 JIC

2шт.

34

87583054

MTLG PLATE

1шт.

35

128818

UNION,3/4" - 16 ORB x 3/4" - 16 JIC

Includes: Ref. 68

1шт.

36

87011596

MANIFOLD

1шт.

37

214389

PLUG,3/4" - 16 ORB

1шт.

38

87017544

HOSE ASSY.

Attach to "T2" Port of Ref. 50

1шт.

39

87329794

FITTING

Includes: Ref. 59

2шт.

40

86979927

HOSE ASSY.

Attach to "LAC" Port of Ref. 50

1шт.

41

86566989

CABLE TIE,208mm L

CABLE STRAP

13шт.

42

87519225

HOSE ASSY.

2шт.

43

248992

45 ELBOW,45 Degree, 3/4"-16, 37 Degree x 3/4"-16, 37 Degree Fem Sw

1шт.

44

87583345

ORIFICE

2шт.

45

87021824

90 ELBOW,90 Degree, 1 1/16"-12, 37 Degree x 1 5/16"-12, O-Ring

Includes: Ref. 73

1шт.

46

87379966

HYD TUBE,15.75 mm ID x 19.05 mm OD x 363.2, 105.4 mm L

3/4" OD x 5/8" ID x 2" Long

1шт.

47

9707515

BOLT,Hex, 5/16 - 18" x 1 3/4", Gr 5

1шт.

48

88346

BOLT,Hex, 5/16" - 18 x 2 1/2", Gr 5

1шт.

49

0C

ORDER COMPONENTS

Draper Independent Manifold

1шт.

For Breakdown, See Fig. 09.08(2)

1шт.

50

0C

ORDER COMPONENTS

Manifold, Independent, Non-Draper Option

1шт.

For Breakdown, See Fig. 09.08(1)

1шт.

51

513309

HOSE CLAMP,1-1/16” - 2”, Worm Gear

2шт.

52

87626

BOLT,Hex, 5/16" - 18 x 2 3/4", Gr 5

2шт.

52

248992

45 ELBOW,45 Degree, 3/4"-16, 37 Degree x 3/4"-16, 37 Degree Fem Sw

1шт.

53

80664

WASHER,0.38" ID x 0.88" OD x 0.08" Thk

3шт.

54

86521552

BOLT,Hex, 5/16" - 18 x 3/4", Gr 5

2шт.

55

140045

BELLEVILLE WASHER,M10 Bolt Size x 22mm OD x 1.6mm Thk

5шт.

56

86513238

LOCK WASHER,.515” ID x 1.070” OD x .120” TK

Belleville, 1/2"

4шт.

57

322357

BELLEVILLE WASHER,M6 Bolt Size x 14mm OD x 1.3mm Thk

2шт.

58

80701

WASHER,0.31" ID x 0.73" OD x 0.07" Thk

2шт.

59

167266

O-RING,0.116" Thk x 0.924" ID, -912, Cl 6, 90 Duro

2шт.

Not Illustrated

1шт.

60

86521606

FLANGE NUT,Hex, 3/8" - 16, Gr 5

5шт.

61

86624020

FLANGE NUT,Flg, 1/4"-20.G5

2шт.

62

86521607

FLANGE NUT,Flg, 1/2"-13, G5

4шт.

63

86521605

FLANGE NUT,5/16"-18, Cl 5

4шт.

64

322358

BELLEVILLE WASHER,M8 Bolt Size x 18mm OD x 1.4mm Thk

6шт.

65

9637240

BOLT,Hex, 3/8" - 16 x 3 1/4", Gr 5

2шт.

66

86521614

BOLT,Hex, 1/2" - 13 x 1 1/4", Gr 5

4шт.

67

86521550

BOLT,Hex, 1/4" - 20 x 3/4", Gr 5

2шт.

68

128825

O-RING,0.087" Thk x 0.644" ID, -908, Cl 6, 90 Duro

6шт.

Not Illustrated

1шт.

69

9617873

O-RING,0.078" Thk x 0.468" ID, -906, Cl 6, 90 Duro

2шт.

Not Illustrated

1шт.

70

86512388

CLAMP,19.05mm ID, 10.41mm Bolt Hole, P Type

"P"

1шт.

71

86521613

BOLT,Hex, 3/8" - 16 x 1", Gr 5

1шт.

72

86979915

HOSE,12.70 mm ID x 3378.20 mm, SAE 100R16

1шт.

73

167268

O-RING,0.116" Thk x 1.171" ID, -916, Cl 6, 90 Duro

1шт.

Not Illustrated

1шт.

74

84221213

DECAL

Tilt Indicator, 0-8

1шт.

For Use With 2 x 8 Tilt Cylinder Only

1шт.

75

84221124

ROD

1шт.

For Use With 2 x 8 Tilt Cylinder Only

1шт.

76

772028

CLIP

1шт.

For Use With 2 x 8 Tilt Cylinder Only

1шт.

77

86508771

CARRIAGE BOLT,Sq Nk, 5/16" - 18 x 1 3/4", Gr 5

1шт.

For Use With 2 x 8 Tilt Cylinder Only

1шт.

Выбрано товаров: 94