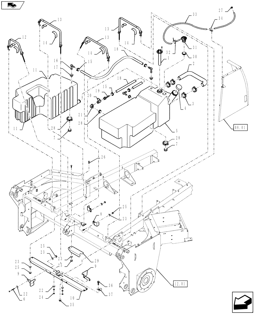
Запчасти Case IH WD1203 (02.06) - FUEL TANKS (02) - ENGINE EQUIPMENT

Схема запчастей Case IH WD1203 - (02.06) - FUEL TANKS (02) - ENGINE EQUIPMENT
16
13
3
25
08.01
12.01
24
1
37
18
14
14
7
11
33
23
11
25
30
32
34
2
21
26
25
13
9
12
6
5
15
10
31
28
22
36
home
7
27
9
18
29
23
14
35
23
20
22
23
8
13
25
28
19
15
4
28
17
FIT
1:1
100%

Артикул

Название

Примечание

Количество

1

85999229

FLOAT

Includes: Cap Screws (5) & Gasket (1)

1шт.

E602142S72

SCREW

Cap, HH, CL 8.8, M5 .8 x 8

5шт.

83904043

GASKET

Not Illustrated

1шт.

2

87020532

FLEXIBLE HOSE,413.10 mm, SAE 30R6

1шт.

3

45014

HOSE CLAMP,2.06” - 3” , Worm Gear

4шт.

4

86558080

FILLER CAP

If using Non-Vented cap, must alos get Ref. 27

1шт.

5

86623320

FUEL TANK

1шт.

6

280523

BOLT,Hex, 3/8" - 16 x 1 1/4", Gr 5

4шт.

7

236622

PLUG,3/8" - 18 NPT

2шт.

8

87020457

ANGLE

2шт.

9

87020456

ANGLE

2шт.

10

84513832

CHANNEL

1шт.

11

86623321

FUEL TANK

1шт.

12

86974530

STRAP

1шт.

13

86974529

STRAP

3шт.

14

275053

SEALING STRIP

1шт.

15

574518

HOSE CLAMP,6.3mm - 15.7mm, SAE # 4

4шт.

16

87019211

ELBOW

3шт.

17

86537556

BUSHING

3шт.

18

86561591

FLEXIBLE HOSE

96" Long, Cut To Length

1шт.

19

217-380

FITTING,3/8" Hose Barb x 3/8" Male NPTF

1шт.

20

86599520

RESTRICTOR VALVE

1шт.

21

86521965

ELBOW,90 Degree, 3/8"-18 Female x 3/8"-18 Male

1шт.

22

80702

WASHER,0.44" ID x 1" OD x 0.08" Thk

8шт.

23

140045

BELLEVILLE WASHER,M10 Bolt Size x 22mm OD x 1.6mm Thk

16шт.

24

9628503

NUT,3/8"-16, G5

8шт.

25

86521606

FLANGE NUT,Hex, 3/8" - 16, Gr 5

16шт.

26

88682

CARRIAGE BOLT,Short Nk, 3/8"-16 x 1", Gr 5

8шт.

27

86999949

FUEL FILTER

1шт.

28

9706921

HOSE CLAMP,12.7mm - 35mm

3шт.

29

87052503

CHANNEL

1шт.

30

86999947

GROMMET,25mm ID x 33mm OD, 46mm Shoulder

1шт.

31

86999948

SAFETY VALVE

1шт.

32

86637701

HOSE CLAMP,12.45mm - 12.95mm

2шт.

33

87280926

FUEL HOSE

1шт.

34

86010402

CLAMP,12.7mm, Coat, 10.3mm Bolt Hole, P Type

WD1903, WD2303

1шт.

34

84484346

STRAP,328mm L

WD1203

1шт.

35

86521605

FLANGE NUT,5/16"-18, Cl 5

WD1903, WD2303

1шт.

36

86521552

BOLT,Hex, 5/16" - 18 x 3/4", Gr 5

WD1903, WD 2303

1шт.

37

9706748

CLAMP,15.9mm, Coat, 8.7mm Bolt Hole, P Type

1шт.

38

87477926

FUEL HOSE,9.53 mm ID x 96.00 mm, SAE 30R9

1шт.

Выбрано товаров: 41