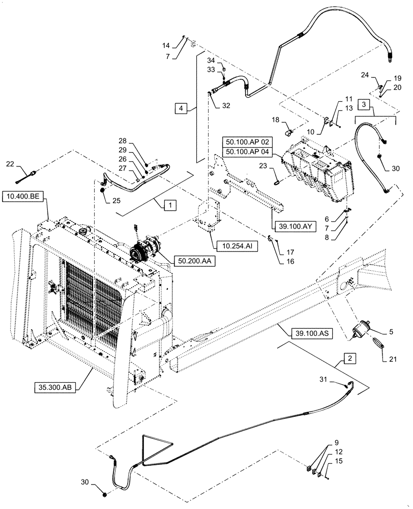
Запчасти Case IH WD1204 (50.200.BY) - A/C & HEATER HOSES (50) - CAB CLIMATE CONTROL

Схема запчастей Case IH WD1204 - (50.200.BY) - A/C & HEATER HOSES (50) - CAB CLIMATE CONTROL
33
1
39.100.ay
23
5
50.100.ap 04
7
19
26
3
17
13
10.254.ai
31
12
4
10
28
32
30
20
25
29
34
50.200.aa
39.100.as
16
50.100.ap 02
14
30
9
8
2
22
24
6
27
35.300.ab
11
7
15
18
10.400.be
21
FIT
1:1
100%

Артикул

Название

Примечание

Количество

1

47557120

HOSE

Compressor to Condenser, Incl 25 - 29

1шт.

2

47546249

HOSE

Condenser to Dryer, Incl 30 - 31

1шт.

3

47546259

HOSE

Dryer to Cab, Incl 30

1шт.

4

47557127

HOSE

Cab to Compressor, Incl 32 - 34

1шт.

5

87105840

RECEIVER-DRYER

A/C System

1шт.

6

87754245

MOUNTING PLATE

Hose

1шт.

7

322357

BELLEVILLE WASHER,M6 Bolt Size x 14mm OD x 1.3mm Thk

5шт.

8

14305221

HEX SOC SCREW,M6 x 16mm, Full Thd, Cl 8.8

1шт.

9

87603907

CLAMP

Plastic, Hose

3шт.

10

86900723

CLAMP

Plastic, Hose

2шт.

11

86900727

COVER

Plate

2шт.

12

87022336

PLATE

Cover

3шт.

13

87405

BOLT,Hex, 1/4" - 20 x 2 1/4", Gr 5

4шт.

14

86624020

FLANGE NUT,Flg, 1/4"-20.G5

4шт.

15

280112

BOLT,Hex, 1/4" - 20 x 1-1/2", Gr 5

6шт.

16

86637977

CLAMP,25.4mm, Coat, 8.7mm Bolt Hole, P Type

1шт.

17

87695418

FLANGE BOLT,M6 x 1.0 x 16mm, Cl 10.9

1шт.

18

86628564

CLAMP,31.7mm, Coat, 10.3mm Bolt Hole, P Type

1шт.

19

322358

BELLEVILLE WASHER,M8 Bolt Size x 18mm OD x 1.4mm Thk

2шт.

20

86521605

FLANGE NUT,5/16"-18, Cl 5

2шт.

21

381144

HOSE CLAMP,84.1mm - 107.9mm, Worm Gear

1шт.

22

87000227

SWITCH, A/C HIGH PRE

4 Cylinder

1шт.

23

86566989

CABLE TIE,208mm L

1шт.

24

86594406

CLAMP,15.9mm, Coat, 10.3mm Bolt Hole, P Type

1шт.

25

10398580

GROMMET,22mm ID x 30mm GRV ø x 38mm OD x 13mm Thk

Incl with 1

1шт.

26

86511147

CONTROL VALVE

High Pressure, Incl with 1

1шт.

27

86511148

CAP

Pressure Valve, Incl with 1

1шт.

28

128483A1

O-RING,1.78mm Thk x 7.65mm ID, 70 Duro

Incl with 1

1шт.

29

9827058

O-RING,0.07" Thk x 0.426" ID, -13, Cl 5, 70 Duro

Incl with 1

2шт.

30

10398480

GROMMET,18mm ID x 25mm Groove D x 33mm OD

Incl with 2

1шт.

31

9827060

O-RING,1.78mm Thk x 7.65mm ID, -11, 70 Duro

Incl with 2, 3

3шт.

32

87533612

O-RING,1.93mm Thk x 15.67mm ID, Cl 5, 75 Duro

Incl with 4

2шт.

33

86511146

VALVE,Shrader

Low Pressure, Incl with 4

1шт.

34

86511149

CAP

Valve, Incl with 4

1шт.

Выбрано товаров: 0